Leafy top-floor living a short walk from Crystal Palace Triangle.
Penthouse two-bedroom apartment with vaulted ceilings and private balcony
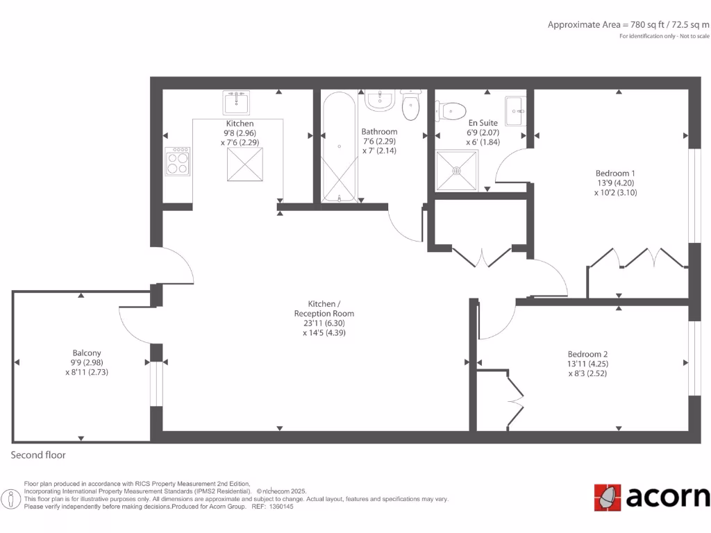
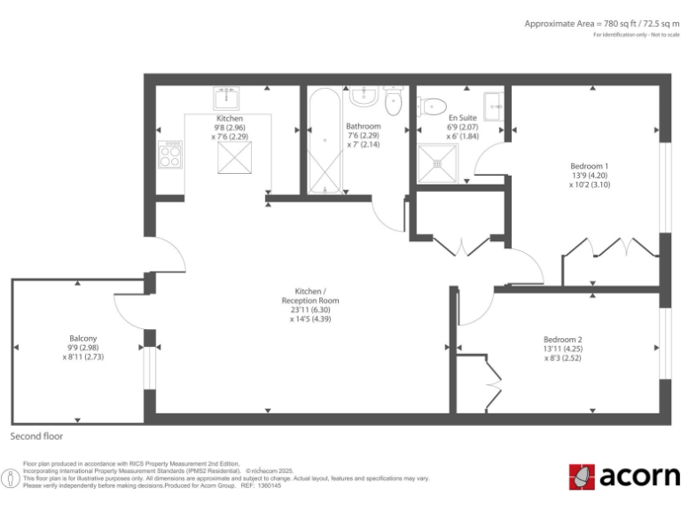
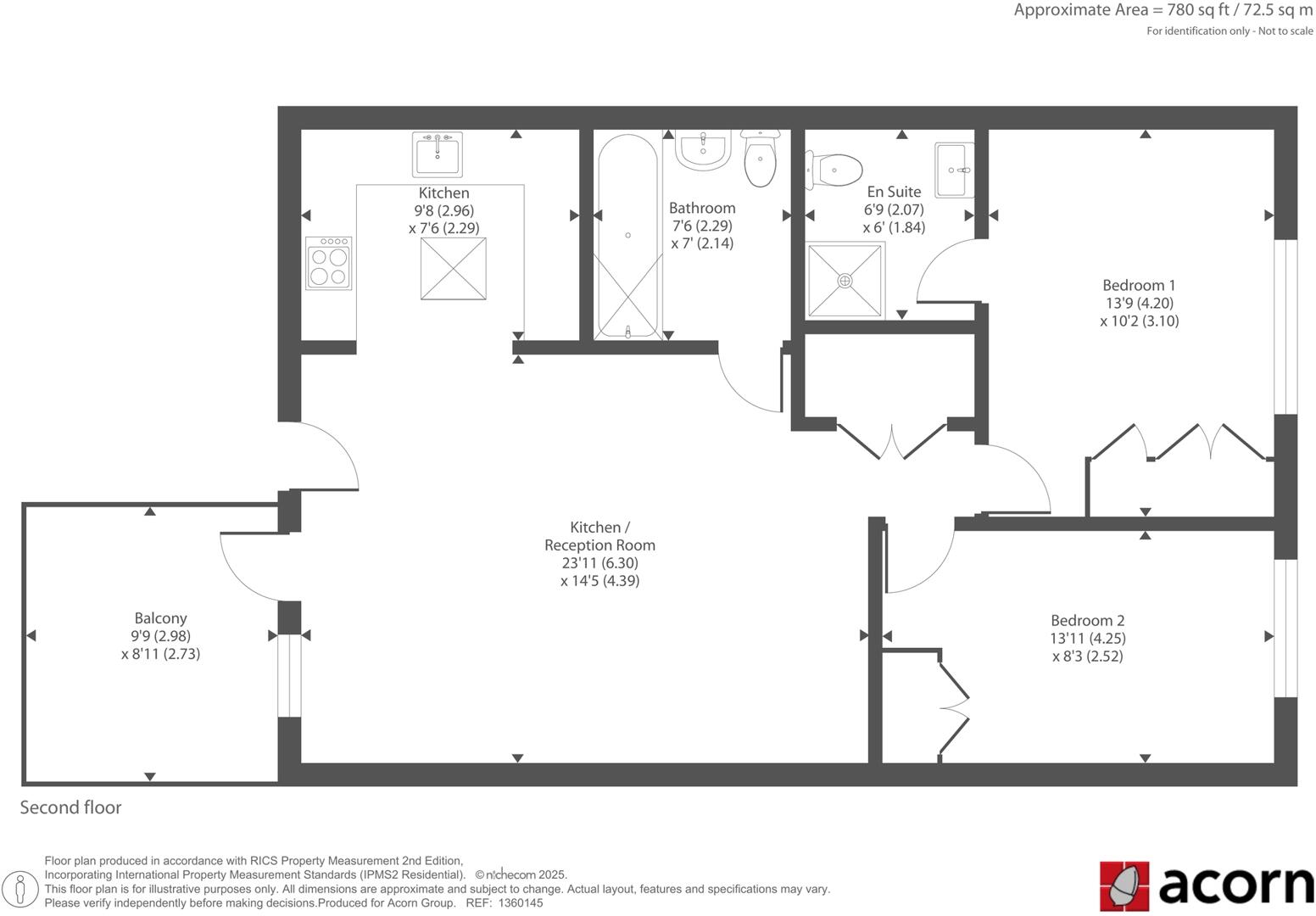
Approximately 780 sq ft of modern open-plan living space
Principal bedroom with en-suite; good integrated storage throughout
Allocated off-street parking plus secure bike storage
Built 2015, EPC B, underfloor heating and gas boiler
Leasehold: 114 years remaining; service charge c. £1,500/year
Ground rent £300/year; council tax band moderate
Local crime above average; surrounding area shows some deprivation
This penthouse apartment occupies the top floor of a secure, gated mews built in 2015 and offers bright, modern living across approximately 780 sq ft. Vaulted ceilings and large windows create a spacious feel, while an open-plan living/kitchen spills onto a private balcony with far-reaching leafy views — ideal for relaxed evenings or entertaining.
The layout includes two double bedrooms, the principal with an en-suite, plus a contemporary main bathroom and generous storage throughout. Warmth comes from a gas boiler and underfloor heating; the property has an EPC B rating and allocated off-street parking with secure bike storage.
Practical points are clear: the lease has 114 years remaining, service charge averages £1,500 per year and ground rent is £300. Council tax is moderate. The immediate area can feel deprived in parts and local crime rates are above average, though the development itself is gated and secure.
Positioned steps from Crystal Palace Triangle, the flat suits professionals, buyers seeking a long-term home or investors targeting strong rental demand nearby. Excellent mobile and broadband connectivity, good local schools and handy transport links make this a convenient city base with leafy outlooks.
2 bedroom apartment for sale in Sylvan Hill, London, SE19 — £550,000 • 2 bed • 1 bath • 800 ft²
2 bedroom flat for sale in Auckland Road, Crystal Palace, London, SE19 — £465,000 • 2 bed • 2 bath • 887 ft²
2 bedroom apartment for sale in Apple Yard, London, SE20 — £435,000 • 2 bed • 1 bath • 764 ft²
2 bedroom apartment for sale in Harold Road, London, SE19 — £475,000 • 2 bed • 2 bath • 838 ft²
2 bedroom flat for sale in Sylvan Hill, Crystal Palace, London, SE19 — £560,000 • 2 bed • 2 bath • 866 ft²
2 bedroom apartment for sale in Sylvan Hill, London, SE19 — £450,000 • 2 bed • 1 bath • 722 ft²


























































































