Chain free property with garage, garden and easy commuter links to London.
Chain free and vacant on completion
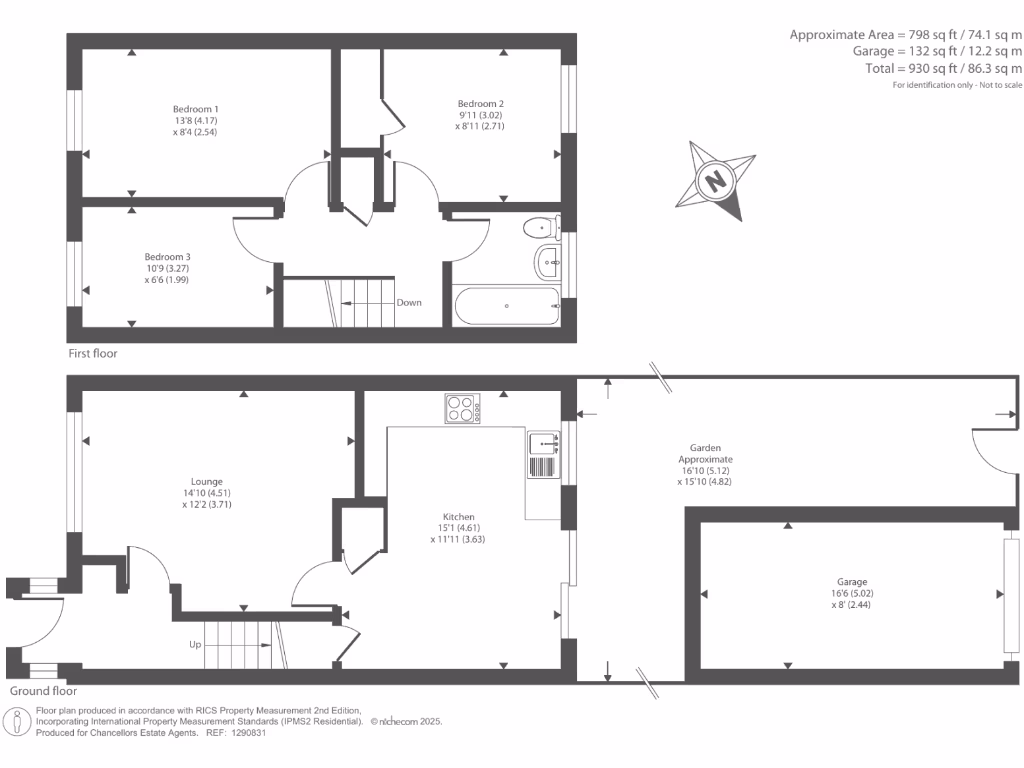
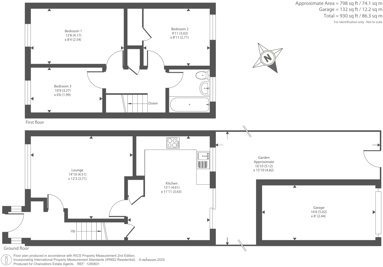
Available with no onward chain and vacant, this three-bedroom mid-terrace in Upper Arncott offers straightforward living for families or first-time buyers seeking commuter convenience. The layout is traditional and practical, with a living room, kitchen, three bedrooms and one bathroom across approximately 930 sq ft. A private enclosed rear garden, single garage and allocated off-street parking are useful everyday assets.
The property is solidly constructed (late 1970s/early 1980s) with mains gas central heating, a modern boiler with radiators and double glazing fitted after 2002. Commuters benefit from good road links to the M40 and nearby rail services from Bicester to London Marylebone, Oxford and Birmingham. Local amenities include a village shop, recreation ground, village hall and regular bus services to Bicester and Oxford.
Internally the home shows its age in fixtures and decor and will suit buyers prepared to update kitchens, bathrooms and cosmetic finishes to their taste. Broadband speeds are slow locally, and the plot is small, so outdoor space is modest despite being enclosed and private. The area records higher-than-average crime, so buyers should consider security improvements as part of any refurbishment plans.
Overall this is a practical, chain-free opportunity to create a comfortable family home or a buy-to-let with straightforward rental appeal, given the commuter links. The property’s compact plot and need for modernisation keep the price accessible for buyers willing to invest time and budget into improvements.
3 bedroom semi-detached house for sale in Hopcraft Close, Upper Arncott, Bicester, OX25 — £365,000 • 3 bed • 1 bath • 840 ft²
2 bedroom bungalow for sale in Norris Road, Upper Arncott, Bicester, Oxfordshire, OX25 — £335,000 • 2 bed • 1 bath • 1067 ft²
3 bedroom terraced house for sale in Buchanan Road, Upper Arncott, OX25 — £350,000 • 3 bed • 2 bath • 996 ft²
4 bedroom detached house for sale in Constable Croft, Upper Arncott, OX25 — £500,000 • 4 bed • 2 bath • 1329 ft²
4 bedroom detached house for sale in 4 Mill Lane, Upper Arncott, OX25 — £650,000 • 4 bed • 3 bath • 2410 ft²
3 bedroom detached house for sale in Bicester, Oxfordshire, OX26 — £380,000 • 3 bed • 1 bath • 1045 ft²










































































