CF82 7SW - Land for sale in Land East of West Rd, Penallta Industrial…

View on Property Piper

Land for sale in Land East of West Rd, Penallta Industrial Estate, Hengoed, CF82

Summary - THE LODGE, STABLES COMPOUND, WEST ROAD, HENGOED, PENALLTA INDUSTRIAL ESTATE, PENALLTA CF82 7SW

1 bed 1 bath Land

**Standout Features:**

- **Location:** Situated in the popular Penallta region, adjacent to a newly developed housing estate.
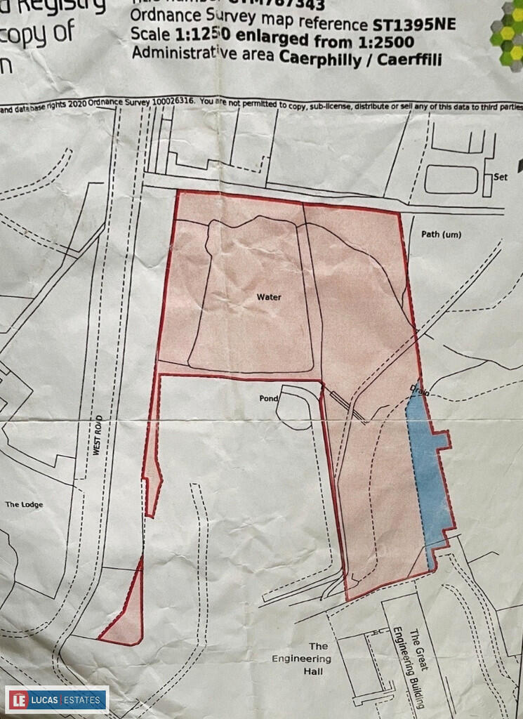
- **Land Type:** Freehold section of land with excellent potential for development.
- **Natural Setting:** Features a serene pond with abundant wildlife, providing a scenic backdrop for any future construction.
- **Development Potential:** Blank canvas for builders or investors looking to capitalize on property value increases.
- **Covenant Notice:** Future sale will incur a 40% fee on any increased value, applicable for the next 17 years from May 2022.

This unique piece of land in Penallta offers an exciting opportunity for developers and investors. Nestled in a tranquil natural setting, it’s a stones' throw from a bustling new housing estate, providing a perfect foundation for property development. The presence of an inviting pond teeming with life enhances the land's appeal, inviting future homeowners to enjoy a peaceful, nature-filled environment.

While the developer's covenant necessitates future planning considerations—caution should be taken regarding the 40% value increase payout upon sale—it promises a lucrative venture for those with vision. Given its affordable price point of £30,000 and promising potential, this land presents an exclusive chance that savvy investors should seize without delay. Explore the possibilities this exceptional land has to offer and envision it as the site of your future development success!

Property Details

Image Descriptions

Textual Property Features

Detected Visual Features

Nearest Bars And Restaurants

,,,,}

Nearest General Shops

,,}

Nearest Grocery shops

,,}

Nearest Supermarkets

,,}

Nearest Religious buildings

,,}

Nearest Medical buildings

,,,}

Nearest Airports

}

Nearest Leisure Facilities

,,,,}

Nearest Tourist attractions

,,}

Nearest Train stations

,,,,}

Nearest Bus stations and stops

,,,,}

Nearest Hotels

,,}

Tags

Local Market Stats

Similar Properties

Meta

High Res Images

Compatible Images

Low res Images

Thumbnails

Raw Images