Commuter-friendly plot with income potential and parking.
Three double bedrooms plus small upstairs office
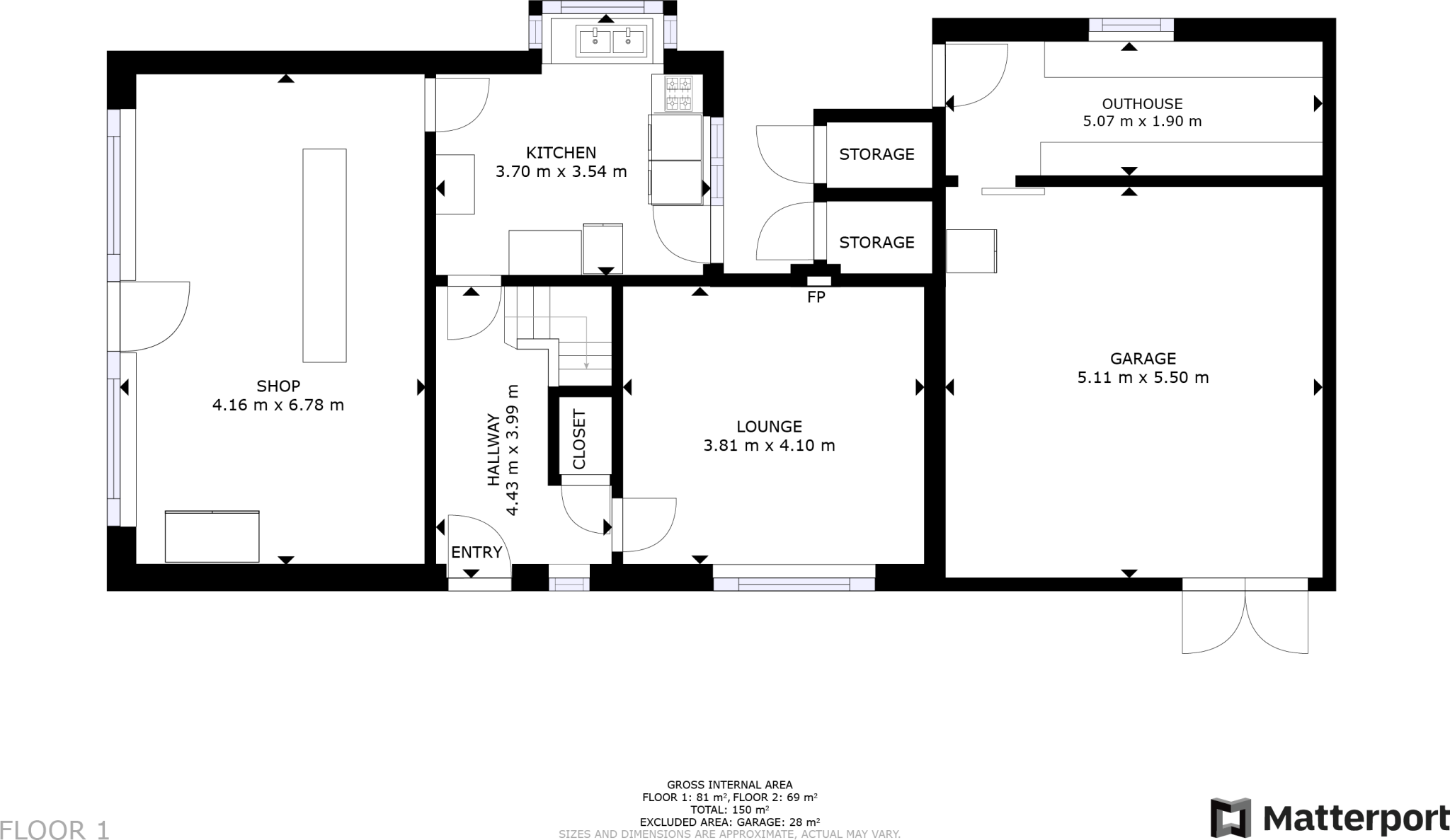
A substantial three-double-bedroom detached property with an integrated commercial unit, positioned on Aston Park Road close to the A494, A55 and A550. The ground floor combines a bright living room, kitchen and the former convenience store offering immediate rental or business potential, while upstairs provides three double bedrooms, a small office and a family bathroom.
The plot includes off-street parking for two vehicles, an attached single garage and rear outbuildings. The garden is largely paved with mature planting and a couple of store rooms, making maintenance straightforward but limiting green space. Broadband and mobile signal are excellent and local schools and leisure facilities are within easy reach.
The house is large (approx. 1,615 sq ft) and presents clear potential for modernisation and enhancement of living space and commercial income. It will suit an investor or buyer who values commuter links and flexible use, but it does require updating throughout and the layout reflects mid-20th century styling rather than contemporary open-plan living.
Note the location sits within an area classified as very deprived, which can affect resale and tenant demand in some market segments. There is no flooding risk and the property is offered freehold with affordable council tax.
3 bedroom semi-detached house for sale in Old London Road, Flint, Flintshire, CH6 — £199,950 • 3 bed • 1 bath • 1031 ft²
3 bedroom detached house for sale in Park Avenue, Hawarden, CH5 — £400,000 • 3 bed • 1 bath • 1464 ft²
3 bedroom detached house for sale in Cornist Road, Flint, CH6 — £155,000 • 3 bed • 1 bath • 1079 ft²
3 bedroom detached house for sale in Avon Court, Mold, CH7 — £269,000 • 3 bed • 1 bath • 1026 ft²
3 bedroom bungalow for sale in Highland Avenue, Queensferry, Deeside, Flintshire, CH5 — £175,000 • 3 bed • 1 bath • 994 ft²
3 bedroom semi-detached house for sale in Deans Place, Connahs Quay, CH5 — £160,000 • 3 bed • 1 bath • 732 ft²










































































































































