Compact, well-presented flat ideal for commuters and first-time buyers.
Top-floor one-bedroom apartment, approx. 379 sq ft
Short walk to Bishop's Stortford mainline station (London/Cambridge links)
Allocated off-street parking plus visitor spaces
Long lease remaining: 147 years
Service charge about £1,631pa; ground rent £240pa
Compact footprint — best for single occupants or couples
Double glazing and gas central heating; loft storage included
Communal gardens maintained externally
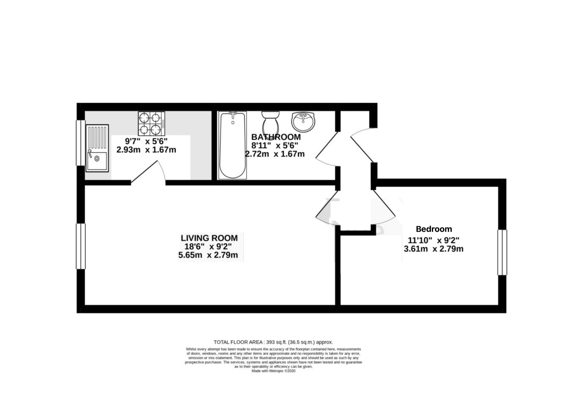
A bright top-floor one-bedroom apartment ideal for a first-time buyer or rail commuter. Positioned a short walk from Bishop's Stortford mainline station, the flat offers an open-plan living area, a large double bedroom with built-in wardrobes and allocated off-street parking.
The accommodation is described as well presented and move-in ready, with a modern fitted kitchen, double glazing and gas central heating. Communal gardens and loft storage add practical benefits for storage and outdoor space without maintenance responsibilities.
Practical considerations include a long lease (147 years remaining) and annual costs: service charge approximately £1,631 and ground rent £240. The apartment is compact (around 379 sq ft), so it suits buyers seeking a manageable, low-maintenance home or a buy-to-let investment close to transport links.
1 bedroom apartment for sale in Red Lion Court, Bishop's Stortford, Hertfordshire, CM23 — £205,000 • 1 bed • 1 bath • 378 ft²
1 bedroom apartment for sale in Hockerill Court, London Road, Bishop's Stortford, CM23 — £215,000 • 1 bed • 1 bath • 421 ft²
1 bedroom apartment for sale in Parsonage Lane, Bishop's Stortford, Hertfordshire, CM23 — £240,000 • 1 bed • 1 bath • 425 ft²
1 bedroom apartment for sale in John Dyde Close, Bishop's Stortford, Town Centre , CM23 — £235,000 • 1 bed • 1 bath • 542 ft²
1 bedroom apartment for sale in Rushes Court, Bishop's Stortford, Hertfordshire, CM23 — £145,000 • 1 bed • 1 bath • 409 ft²
1 bedroom apartment for sale in Hadham Road, Bishop's Stortford, Hertfordshire, CM23 — £175,000 • 1 bed • 1 bath • 323 ft²


































