High-spec new-build with garage, gardens and stamp duty contribution.
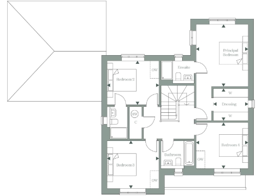
4 double bedrooms with principal bedroom ensuite and fitted wardrobe
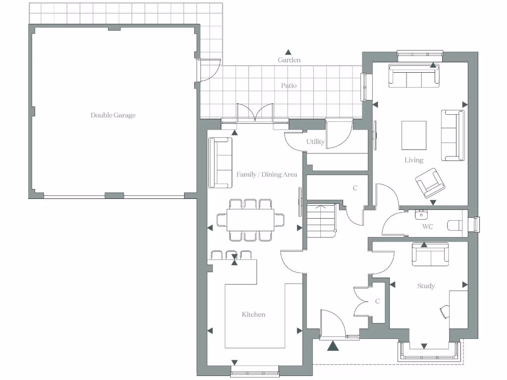
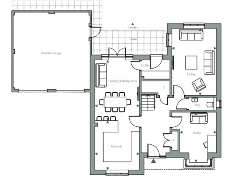
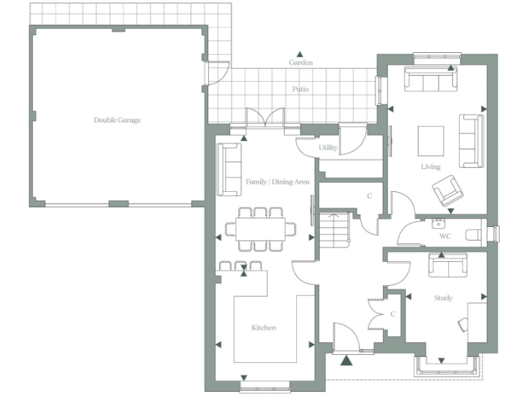
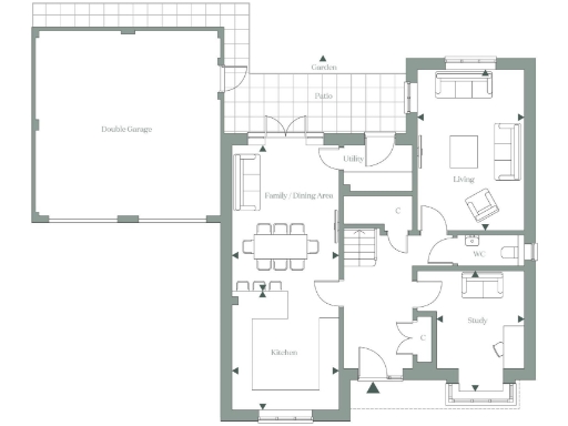
This new-build four-bedroom detached Applehurst offers generous living across 1,814 sq ft with a rare double garage and driveway parking for two cars. The home is finished to a high Fernham specification: Amtico flooring, Bosch integrated kitchen appliances, stone worktops, fitted wardrobes to the principal bedroom and turfed rear garden with Indian Sandstone patio. The developer is contributing £31,000 stamp duty for qualifying homemovers, and the property includes a 10-year Premier Guarantee and two years of customer care.
The ground floor is laid out for family life, with an open-plan kitchen and dining area that opens onto the patio, a separate living room, study and utility. The principal bedroom includes an ensuite and fitted wardrobes; second bedroom is advertised with its own ensuite while remaining bedrooms share the family bathroom. Practical extras include EV charging provision, underfloor heating and garden access from the garage.
Important considerations: the plot is described as small and the development levy/service charge is approximately £327 per annum. The wider area shows higher relative deprivation and the local area classification indicates constrained renting patterns—buyers should check local factors and confirm final internal finishes and exact room/bathroom configuration with legal documents. Overall, this is a well-specified family home in a historic town location, suited to families seeking new-build low-maintenance living and strong warranty protection.
4 bedroom semi-detached house for sale in Love Lane,
Faversham,
Kent,
ME13 8YJ, ME13 — £440,000 • 4 bed • 1 bath • 1262 ft²
4 bedroom detached house for sale in Fernham Homes At Faversham, Love Lane, Faversham, ME13 — £620,000 • 4 bed • 2 bath • 1372 ft²
4 bedroom detached house for sale in Fernham Homes At Faversham, Love Lane, Faversham, Kent, ME13 — £520,000 • 4 bed • 2 bath • 1226 ft²
3 bedroom detached house for sale in Love Lane,
Faversham,
Kent,
ME13 8YJ, ME13 — £445,000 • 3 bed • 1 bath • 953 ft²
3 bedroom semi-detached house for sale in Love Lane,
Faversham,
Kent,
ME13 8YJ, ME13 — £400,000 • 3 bed • 1 bath • 953 ft²
3 bedroom semi-detached house for sale in Fernham Homes At Faversham, Love Lane, Faversham, Kent, ME13 — £417,000 • 3 bed • 2 bath • 1153 ft²














































































