Large renovated family home with huge kitchen and parking.
Five double bedrooms across three floors
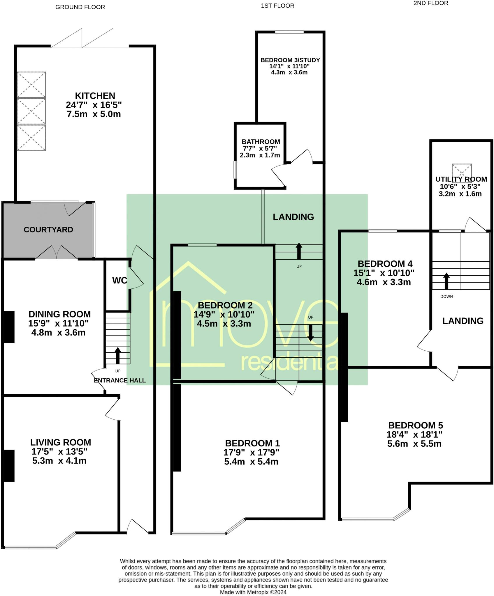
This substantially renovated five-bedroom Edwardian mid-terrace blends period character with contemporary living across three floors. At about 2,064 sq ft the house delivers generous reception rooms, a dramatic extended kitchen-diner with island and skylights, and a large principal bedroom — a strong fit for growing families who value space and entertaining.
Ground floor living is arranged for sociable family life: a roomy lounge with bay window and herringbone flooring, separate dining room, cloakroom and a 7.5m x 5.0m kitchen-diner that opens to a small enclosed town garden via bi-fold doors. The second floor houses two further double bedrooms and a utility area, while three more double bedrooms and a family bathroom sit on the first floor.
Practical positives include freehold tenure, off-street parking to the front and fast broadband plus excellent mobile signal. Local schools rated Good and a wide range of nearby amenities add convenience for everyday family life.
Buyers should note material drawbacks honestly: there is a single family bathroom for five bedrooms, the private outdoor space is small, and the immediate area scores as deprived with above-average crime statistics. The property’s attractive finish reduces immediate work, but prospective purchasers should factor the local social context and limited garden size into their decision.
5 bedroom terraced house for sale in Ampthill Road, Liverpool, L17 — £400,000 • 5 bed • 1 bath • 1797 ft²
5 bedroom end of terrace house for sale in Sandringham Avenue, Waterloo, Merseyside, L22 — £375,000 • 5 bed • 1 bath • 1945 ft²
5 bedroom terraced house for sale in Kenmare Road, Wavertree, Liverpool, L15 — £235,000 • 5 bed • 2 bath • 1293 ft²
5 bedroom semi-detached house for sale in Aysgarth Avenue, Liverpool, L12 — £575,000 • 5 bed • 3 bath • 2301 ft²
5 bedroom terraced house for sale in Connaught Road, Liverpool, L7 8RW, L7 — £249,995 • 5 bed • 3 bath • 1313 ft²
5 bedroom semi-detached house for sale in Walton Park, Liverpool, Merseyside, L9 — £275,000 • 5 bed • 2 bath • 1983 ft²


















































































































































