Auction opportunity with redevelopment potential close to Exmouth seafront.
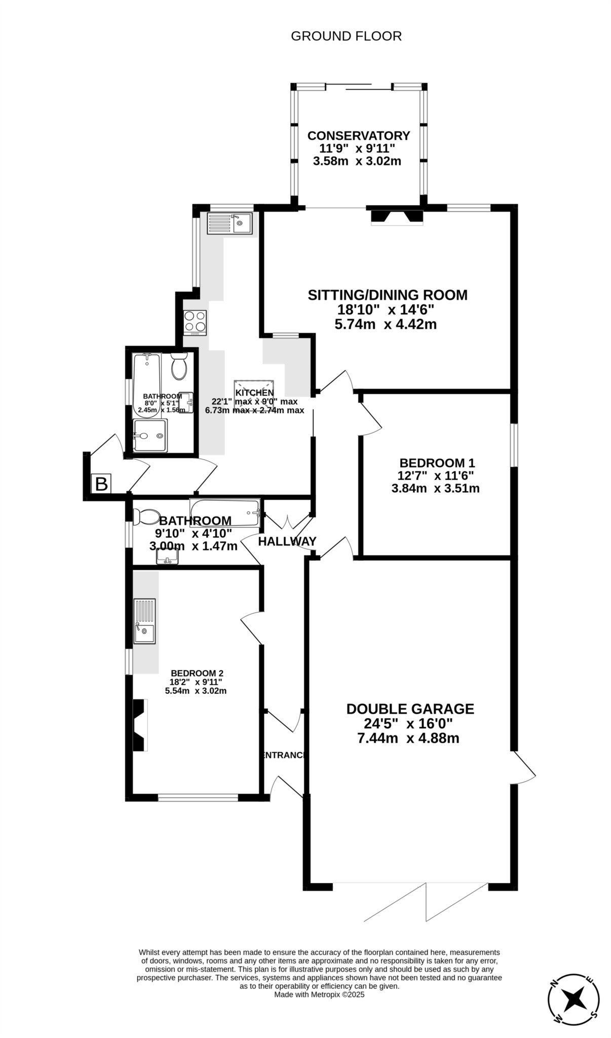
Detached two-bedroom bungalow on a double-width plot
A rare, detached two-bedroom bungalow on a double-width plot in Exmouth, offered with no chain and auction sale. The site is generously sized with a large rear garden, integral garage and double driveway — attractive for buyers seeking space or development potential.
The bungalow requires full modernisation: cosmetic and likely mechanical upgrades are needed (heating, wiring, insulation). Constructed c.1900–1929 with solid brick walls, the property currently has double glazing but an EPC rating of E. Redevelopment into a pair of semi-detached houses is suggested as possible, subject to planning and consents — no permission is granted.
This lot will be sold at auction on 6 November 2025; contracts exchange at the fall of the hammer. Purchasers should review the legal pack, arrange surveys, and check planning and finance before bidding. The location benefits from fast broadband, excellent mobile signal, low local crime, and easy access to Exmouth seafront and Exeter transport links.
2 bedroom semi-detached bungalow for sale in Martins Road, Exmouth, EX8 — £269,950 • 2 bed • 1 bath • 592 ft²
2 bedroom bungalow for sale in Roundhouse Lane, Exmouth, Devon, EX8 — £299,950 • 2 bed • 1 bath • 694 ft²
2 bedroom bungalow for sale in Freelands Close, Exmouth, Devon, EX8 — £425,000 • 2 bed • 2 bath • 1592 ft²
2 bedroom detached bungalow for sale in Richmond Road, Exmouth, EX8 — £391,950 • 2 bed • 1 bath • 850 ft²
2 bedroom detached bungalow for sale in St. Bernards Close, Exeter, EX2 — £260,000 • 2 bed • 1 bath • 950 ft²
2 bedroom detached bungalow for sale in Ash Grove, Exmouth, EX8 3BN, EX8 — £360,000 • 2 bed • 1 bath • 785 ft²


















































