Compact commuter flat with parking and excellent transport links.
No onward chain — ready for quick purchase
This light-filled one-bedroom flat offers a practical first home or buy-to-let in central Redhill. Positioned about 0.5 miles from Redhill station, it delivers excellent commuter access to London and benefits from panoramic views across the town to the North Downs.
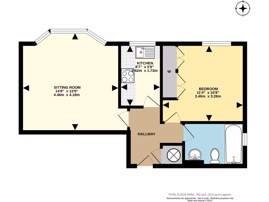
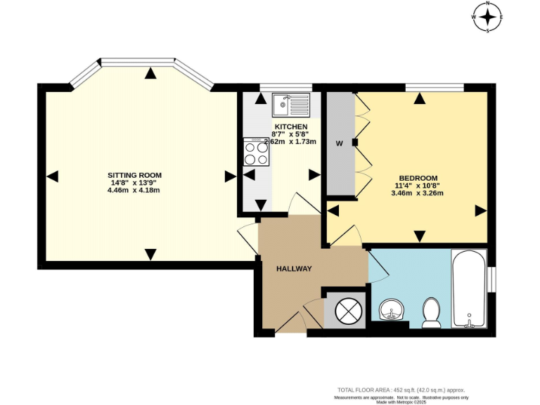
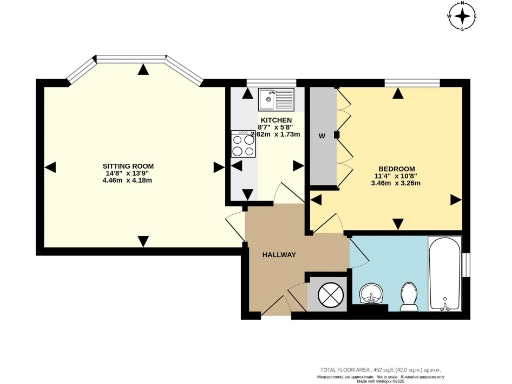
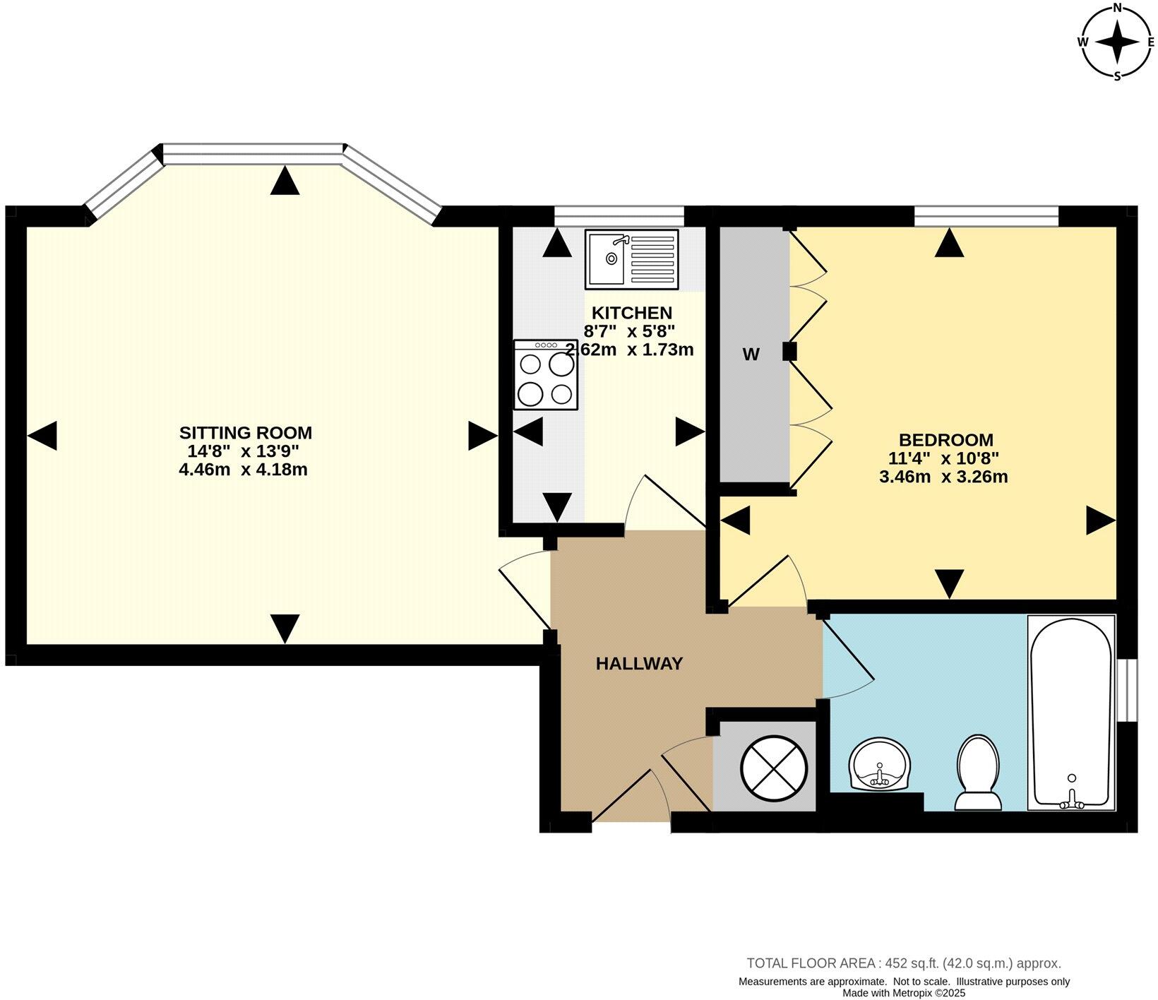
Internally the layout is straightforward: a spacious lounge/diner with bay window, separate fitted kitchen, one double bedroom with built-in wardrobes, bathroom and entrance storage. The property has double glazing, gas central heating and an allocated off-street parking space — useful extras for everyday living and rental appeal.
Important practical facts are stated plainly: the flat is leasehold with 89 years remaining and a small ground rent of £200; the building’s walls are original solid brick with likely limited cavity insulation; the overall footprint is modest at approximately 452 sq ft. The local area registers higher crime statistics, which should be considered by buyers and investors when assessing rental demand and insurance costs.
Offered with no onward chain, this apartment suits a first-time buyer seeking a compact, well-located home or an investor after a straightforward, easy-to-manage unit. While the flat requires no obvious cosmetic overhaul from the description, buyers should allow for potential energy-efficiency improvements and to check the lease terms in full before committing.
1 bedroom flat for sale in Upper Bridge Road, Redhill, Surrey, RH1 — £200,000 • 1 bed • 1 bath • 463 ft²
1 bedroom ground floor flat for sale in Lyndale Road, Redhill, Surrey, RH1 — £210,000 • 1 bed • 1 bath • 496 ft²
1 bedroom flat for sale in Chapel Road, REDHILL, Surrey, RH1 — £240,000 • 1 bed • 1 bath • 487 ft²
1 bedroom ground floor flat for sale in Horley Road, Redhill, RH1 — £200,000 • 1 bed • 1 bath • 549 ft²
1 bedroom flat for sale in Carlton Road, Laton Place Carlton Road, RH1 — £250,000 • 1 bed • 1 bath • 560 ft²
1 bedroom flat for sale in Upper Bridge Road, Redhill, Surrey, RH1 — £132,500 • 1 bed • 1 bath • 463 ft²


































































