**Standout Features:**
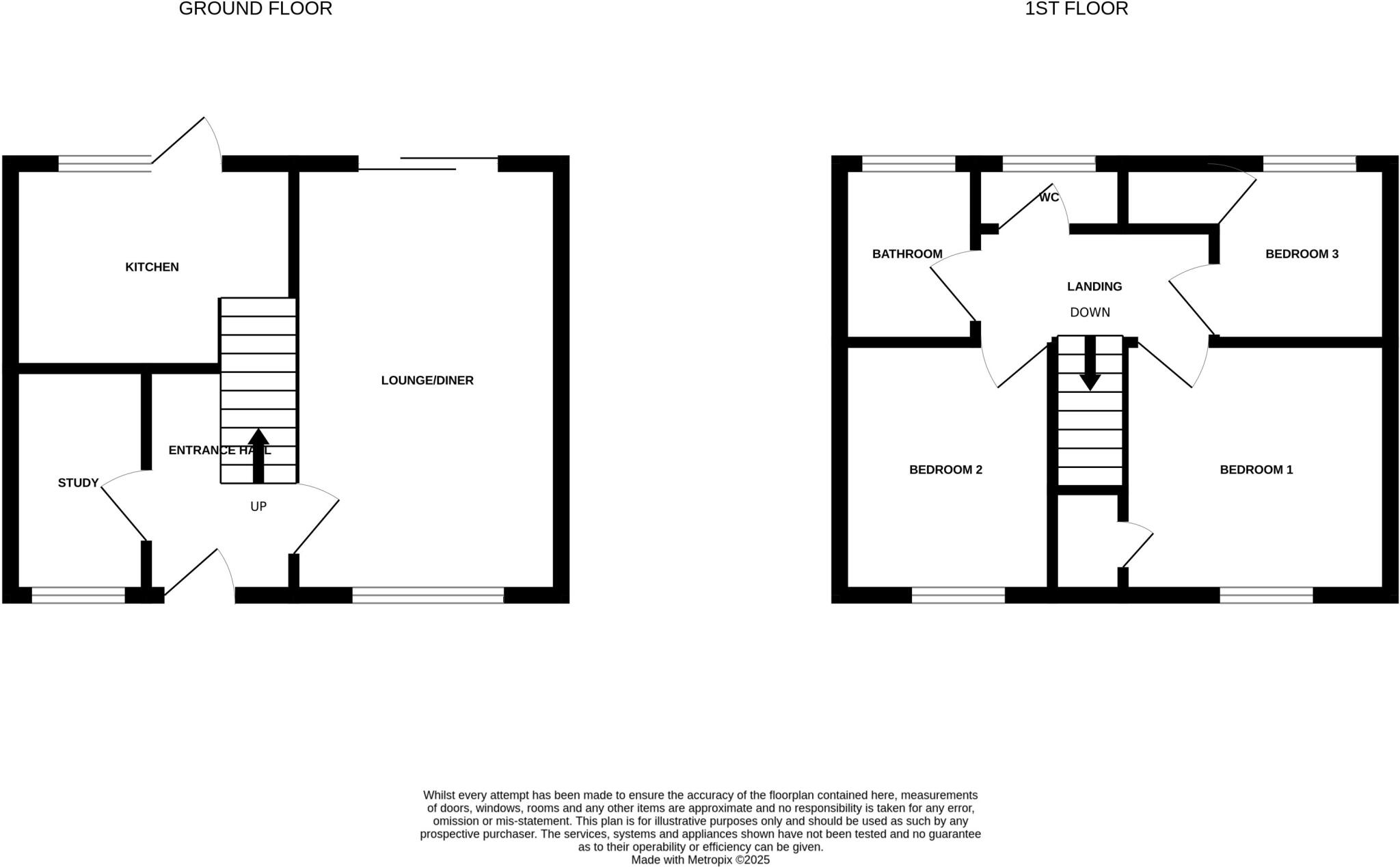
- 3 bedrooms (2 doubles, 1 single)
- Spacious lounge/diner with sliding door access to rear patio
- Well-maintained family bathroom with walk-in shower
- Ample on-street parking available
- Freehold tenure
- Located near various amenities including parks, pubs, and supermarkets
**Potential Concerns:**
- Dated exterior may require maintenance
- Area classified as deprived, which could impact perceptions of the neighborhood
Discover an excellent opportunity with this charming terraced house situated in the sought-after market town of Huntingdon. Perfect for families or investors, this property boasts a spacious lounge/diner that opens up to a private rear patio, inviting you to enjoy outdoor living. The functional kitchen is equipped with a built-in oven and provides ample storage with its base and eye-level units. On the first floor, you’ll find three well-sized bedrooms, including a master with built-in wardrobes, ensuring plenty of storage. The updated family bathroom features a modern walk-in shower, adding further appeal.
While the property is in a great location with convenient access to parks, shops, and the A14, it's important to note the dated exterior may require some cosmetic upgrades. Despite this, the surrounding area offers a rich community vibe and an array of local amenities. With affordable council tax and an abundance of on-street parking, this home presents a unique blend of convenience, comfort, and potential. Don't miss out—schedule a viewing today to envision the possibilities this property holds for you!
3 bedroom terraced house for sale in The Whaddons, Huntingdon, Cambridgeshire, PE29 — £220,000 • 3 bed • 1 bath • 809 ft²
3 bedroom terraced house for sale in Norfolk Road, Huntingdon, PE29 — £240,000 • 3 bed • 1 bath • 953 ft²
2 bedroom terraced house for sale in Saunders Close, Huntingdon, Cambridgeshire, PE29 — £175,000 • 2 bed • 1 bath • 810 ft²
3 bedroom terraced house for sale in West Street, Huntingdon, Cambridgeshire, PE29 — £240,000 • 3 bed • 1 bath • 837 ft²
3 bedroom terraced house for sale in Nene Road, Huntingdon, PE29 — £240,000 • 3 bed • 1 bath • 900 ft²
3 bedroom terraced house for sale in Temple Close, Huntingdon, Cambridgeshire, PE29 — £290,000 • 3 bed • 1 bath • 1048 ft²










































