**Standout Features:**
- Newly built detached houses with stunning sea views.
- 3 bedrooms and 3 bathrooms, each with high-end finishes.
- Open-plan living space designed for maximum natural light.
- Solar panels and electric panel heating for energy efficiency.
- Designated parking with EV charger wiring; low maintenance garden.
- Situated in an Area of Outstanding Natural Beauty.
**Notable Concerns:**
- Occupancy restriction prohibits use as a primary residence.
- Council Tax yet to be determined but estimated at Band F.
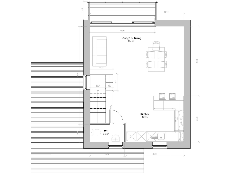
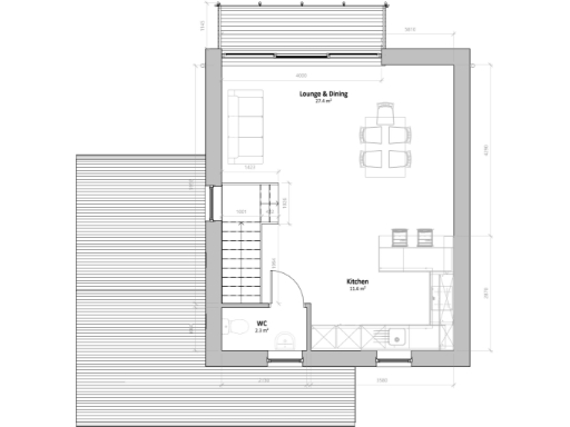
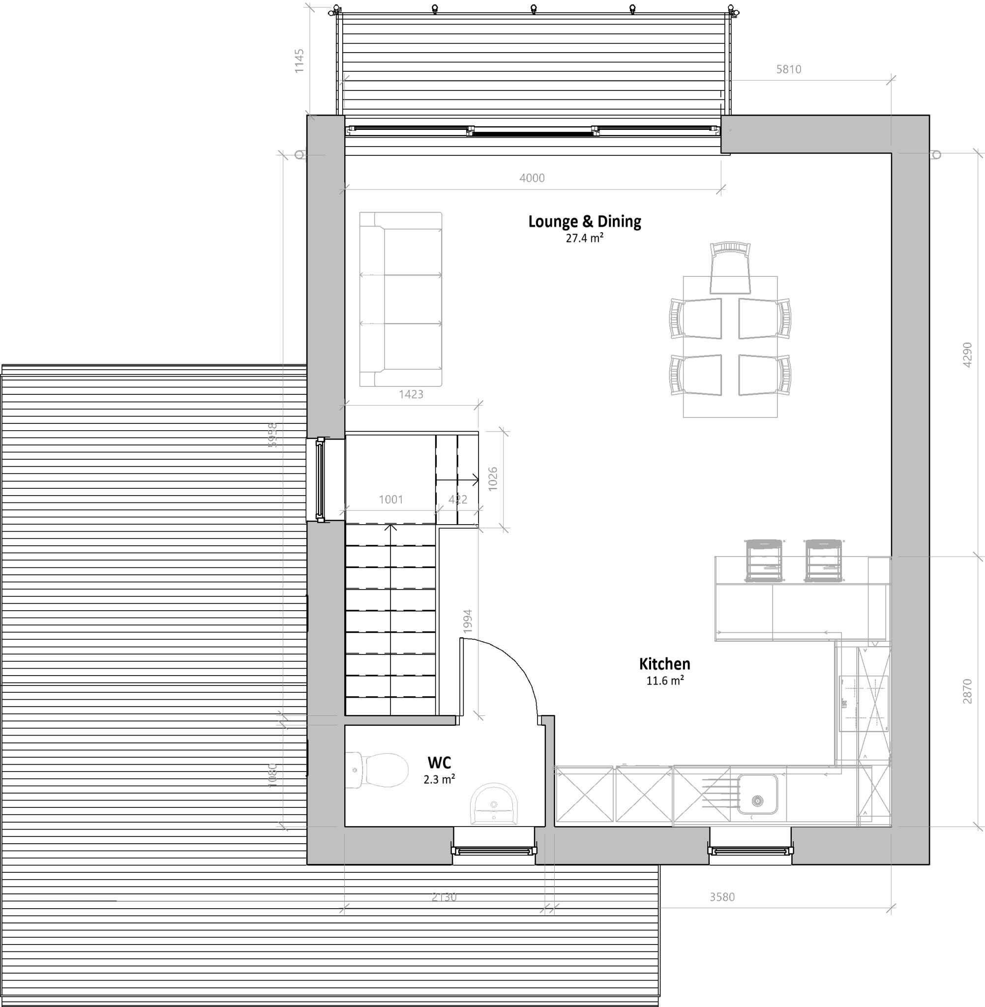
Discover the charm of coastal living in these remarkable new build houses located in Bull Bay on the Isle of Anglesey. Each property features a chic open-plan layout with three spacious bedrooms, all equipped with luxurious en-suites. High-quality finishes include contemporary kitchens with quartz worktops and fully tiled bathrooms, creating a perfect sanctuary for families or those seeking a getaway. A delightful balcony off the living room offers breathtaking views of the sea, ideal for soaking in the coastal atmosphere during summer evenings.
These homes come with energy-efficient solar panels and electric panel heaters, ensuring comfort and sustainability. While designated off-street parking and potential EV charging points enhance convenience, the occupancy restriction may appeal to investors looking for a second home or short-term rental opportunities without council tax implications. With the breathtaking backdrop of Bull Bay and access to picturesque trails, beaches, and local amenities, this property promises an enviable lifestyle amidst an enchanting landscape. Act fast, as this unique opportunity does not last long!
3 bedroom detached house for sale in Tai Porth Llechog, Bull Bay, Isle of Anglesey, LL68 — £425,000 • 3 bed • 3 bath • 776 ft²
3 bedroom detached bungalow for sale in Tai Porth Llechog, Bull Bay, Amlwch, LL68 — £395,000 • 3 bed • 2 bath • 1061 ft²
3 bedroom bungalow for sale in Tai Porth Llechog, Bull Bay, Isle of Anglesey, LL68 — £395,000 • 3 bed • 2 bath • 776 ft²
2 bedroom mews property for sale in Gwel Y Mor, Bull Bay, Amlwch, LL68 — £329,950 • 2 bed • 1 bath • 764 ft²
2 bedroom maisonette for sale in Gwel Y Mor, Bull Bay, Isle of Anglesey, LL68 — £329,950 • 2 bed • 1 bath • 694 ft²
3 bedroom detached house for sale in Parys Uchaf, Bull Bay, Anglesey, Sir Ynys Mon, LL68 — £395,000 • 3 bed • 4 bath • 1246 ft²






















































































