Large detached bungalow on a sunny corner plot, double garage and loft space.
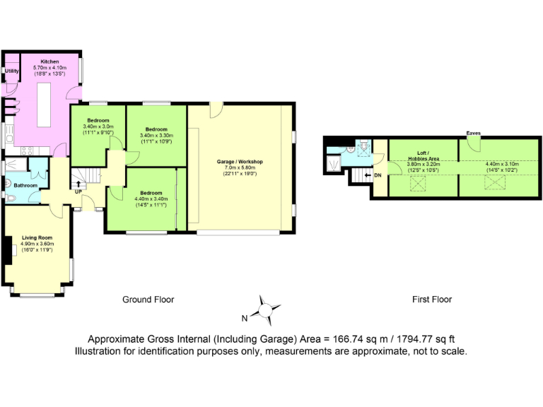
Detached three bedroom bungalow on a large corner plot
This well‑proportioned three‑bedroom detached bungalow sits on a generous corner plot in popular North Lancing. The southerly garden captures plenty of daylight, creating a pleasant outdoor space for family life, while the separate living room and open-plan kitchen/diner provide flexible day-to-day living and entertaining space.
Practical features include a large boarded loft hobbies area, a substantial double garage with workshop space, and off‑road parking for multiple cars — a strong draw for car enthusiasts, home workers and DIYers. The property is freehold, in an affluent neighbourhood with good schools nearby and fast broadband speeds.
Buyers should note the house dates from the 1930–1949 period and likely needs updating in places (living room and some internal finishes). The cavity walls are assumed to have no added insulation, and there is only a single family shower room serving three bedrooms. These factors create scope to improve energy performance and add value through sympathetic refurbishment.
Overall this bungalow will suit families or downsizers seeking substantial single‑storey accommodation with excellent storage, garage/workshop facilities and a sunny garden — and for investors or renovators looking to enhance thermal performance and modernise interiors.
2 bedroom detached bungalow for sale in Norbury Drive, North Lancing, BN15 0QQ, BN15 — £425,000 • 2 bed • 1 bath • 989 ft²
3 bedroom detached bungalow for sale in Manor Way, Lancing, BN15 0QU, BN15 — £370,000 • 3 bed • 1 bath • 921 ft²
4 bedroom detached house for sale in Browning Road, Lancing, BN15 — £600,000 • 4 bed • 2 bath • 1486 ft²
2 bedroom bungalow for sale in Steepdown Road, Sompting, Lancing, West Sussex, BN15 — £375,000 • 2 bed • 1 bath • 672 ft²
2 bedroom detached bungalow for sale in Norbury Drive, Lancing, BN15 — £425,000 • 2 bed • 1 bath • 921 ft²
5 bedroom detached house for sale in Browning Road, Lancing, West Sussex, BN15 — £700,000 • 5 bed • 2 bath • 2015 ft²










































































