Spacious five-bedroom home with landscaped rear outdoor rooms and versatile living over three floors.
Grade II listed Georgian mid-terrace with period features
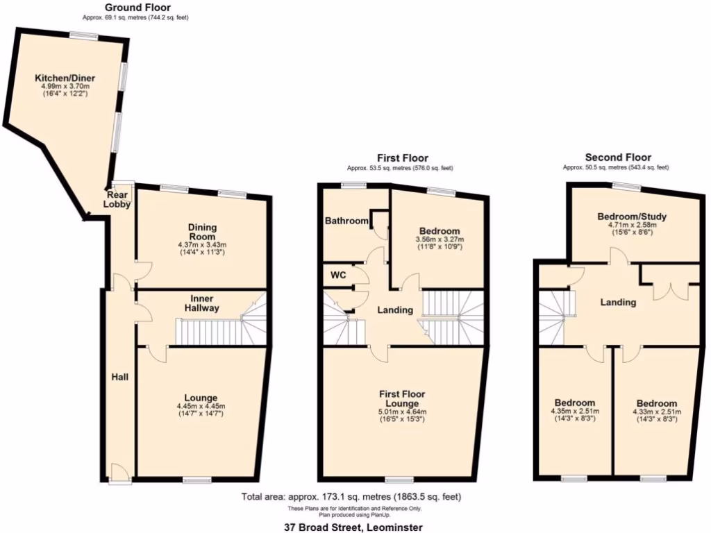
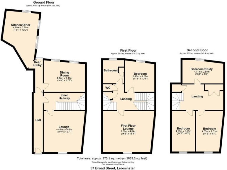
Five bedrooms across three floors; first-floor living room
Single family bathroom plus separate cloakroom
Landscaped rear gardens with gated pedestrian access
Useful cellar providing storage or extra room
Requires timber and damp treatments to lower floors
Timber-frame walls assumed uninsulated; secondary glazing only
EPC rating D (58); medium flood risk on record
A handsome Grade II Georgian mid-terrace offering generous, flexible accommodation across three floors. The house combines period features — sash windows, exposed beams and fireplaces — with practical rooms including a breakfast kitchen, first-floor living room and a useful cellar.
The property has five bedrooms but only one family bathroom and a separate cloakroom, so it suits a larger family or someone looking to create en-suite facilities. The rear plot is a standout: thoughtfully landscaped gardens with specimen planting, seating areas, a water feature and gated pedestrian access provide private outdoor rooms for relaxing and entertaining.
There are some material considerations: the house is listed, so alterations will need listed-building consent and specialist input. Timber and damp treatment works are required to the ground and lower-ground floors; a full report and costings are available. The house has secondary glazing, gas central heating and an EPC rating of 58 (D), but the timber-frame walls are assumed to lack insulation.
Positioned a short walk from Leominster town centre, the location provides shops, markets, schools and transport links. For buyers seeking character and scope to improve a historic town property, this is a roomy, well-located opportunity; those wanting a turnkey modern home should factor in conservation constraints and remediation works.
6 bedroom town house for sale in South Street, Leominster, HR6 — £350,000 • 6 bed • 3 bath • 4392 ft²
4 bedroom town house for sale in Broad Street, Leominster, HR6 — £400,000 • 4 bed • 2 bath • 442 ft²
3 bedroom town house for sale in Church St, Leominster, HR6 — £220,000 • 3 bed • 1 bath • 1131 ft²
4 bedroom terraced house for sale in Lower Broad Street, Ludlow, Shropshire, SY8 — £599,000 • 4 bed • 2 bath • 2100 ft²
3 bedroom house for sale in Corve Street, Ludlow, Shropshire, SY8 — £280,000 • 3 bed • 1 bath • 1017 ft²
5 bedroom detached house for sale in Burgess Street, Leominster, HR6 — £230,000 • 5 bed • 1 bath • 1417 ft²














































