Ready-to-rent city-centre studio with long lease and strong transport links..
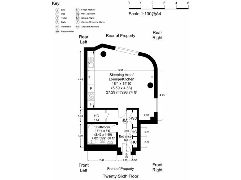
26th-floor studio with panoramic Birmingham city centre views
Set high on the 26th floor of Beetham Tower, this studio delivers striking floor-to-ceiling windows and uninterrupted Birmingham city views. The apartment is offered fully furnished with a designer kitchen and double glazing, making it ready for immediate occupation or short-term rental.
The property sits in a central, highly connected location — minutes from New Street, Moor Street and the Bullring — appealing to investors and first-time buyers seeking rental demand from students and city workers. The long lease (approx. 978 years) removes common long-lease concerns and makes future resale straightforward.
Buyers should consider practical cost and area factors. Annual service charge and ground rent are each listed at around £2,000; the ground rent is particularly high. The wider area is classified as a cosmopolitan, student-focused neighbourhood with very high local crime levels and signs of deprivation, which may influence rental yields and preferred tenant profiles.
Overall, this compact studio offers immediate usability and strong central location benefits, but it is best suited to buyers who accept higher running charges and are comfortable with the surrounding urban environment and associated security considerations.
Studio flat for sale in Beetham Tower, Holloway Circus, Birmingham, B1 — £100,000 • 1 bed • 1 bath • 381 ft²
1 bedroom apartment for sale in Beetham Tower, B1 1BA, B1 — £115,000 • 1 bed • 1 bath
2 bedroom apartment for sale in Beetham Tower, Birmingham, B1 — £199,500 • 2 bed • 2 bath • 840 ft²
2 bedroom apartment for sale in Beetham Tower, 10 Holloway Circus, B1 1BY, B1 — £185,000 • 2 bed • 1 bath • 660 ft²
2 bedroom flat for sale in Beetham Tower, 10 Holloway Circus Queensway, Birmingham, B1 1BA, B1 — £230,000 • 2 bed • 2 bath • 701 ft²
2 bedroom flat for sale in Holloway Circus Queensway, Birmingham, West Midlands, B1 — £480,000 • 2 bed • 1 bath • 1987 ft²






































