Two double bedrooms, garden and standout bathroom close to Weymouth harbour.
Two double bedrooms with feature fireplaces and exposed floorboards
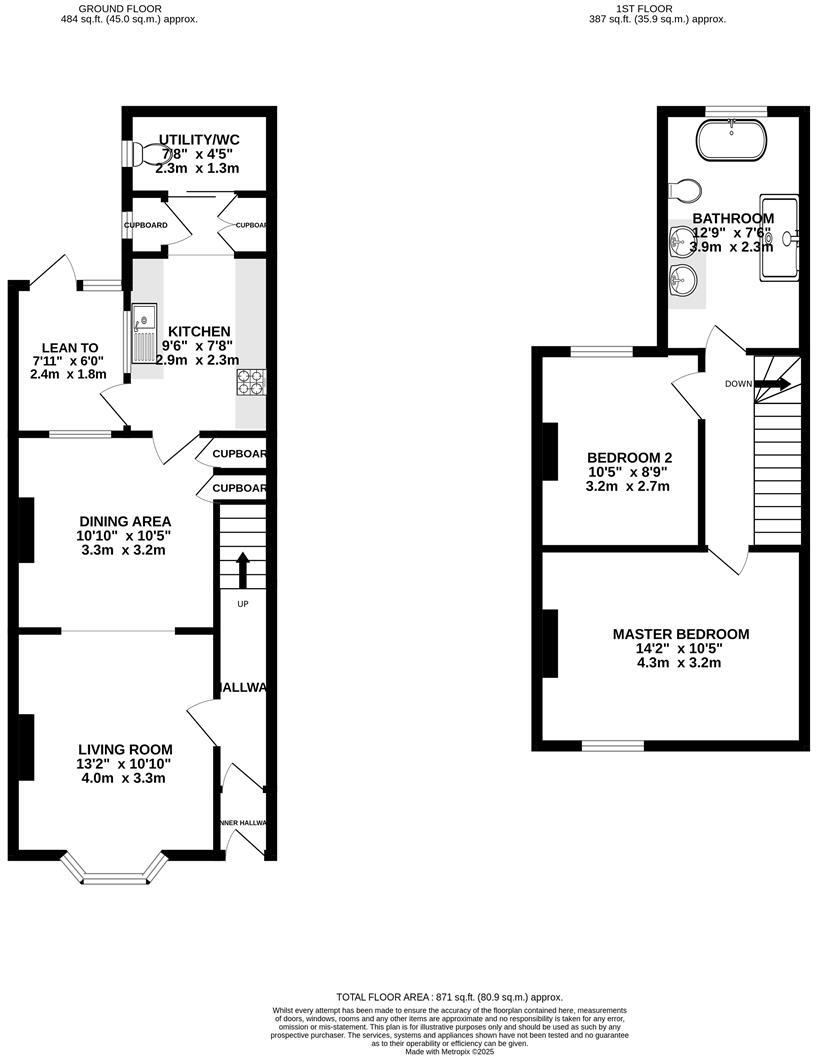
Well-presented two double bedroom Victorian terraced house a short walk from Weymouth harbour and local amenities. The home retains period features including exposed floorboards, bay window and fireplaces, yet offers modern comforts such as a shaker-style kitchen, utility/cloakroom and a striking four-piece bathroom with freestanding roll-top bath.
Living space is arranged over two floors with a bay-fronted sitting room, separate dining room, lean-to and a westerly-facing rear garden with decking and shed. The first floor offers two generous doubles and a landing with loft access that provides scope for further expansion subject to planning (STPP). Fast broadband and mains gas central heating suit modern living.
Practical considerations: the plot is small and the house is a mid-terrace with typical terraced limitations to outdoor space and privacy. The wider local area scores as very deprived and is classified for constrained renters; crime and mobile signal are average. Some original walls are cavity-built with assumed no insulation, so buyers mindful of running costs or thermal upgrades should note retrofit potential.
This freehold property is well suited to first-time buyers or investors seeking a character-rich rental near the seafront. Viewing is recommended to appreciate the interior condition, original features and the convenient harbour-side location.
2 bedroom terraced house for sale in Franchise Street, Rodwell, DT4 — £265,000 • 2 bed • 1 bath • 991 ft²
2 bedroom terraced house for sale in Ferndale Road, Weymouth, Dorset, DT4 — £235,000 • 2 bed • 1 bath
2 bedroom terraced house for sale in Salisbury Road, Weymouth, DT4 — £230,000 • 2 bed • 1 bath • 799 ft²
4 bedroom terraced house for sale in Kempston Road, Rodwell, DT4 — £400,000 • 4 bed • 2 bath • 1572 ft²
3 bedroom house for sale in Kempston Road, Weymouth, DT4 — £485,000 • 3 bed • 2 bath • 1522 ft²
3 bedroom terraced house for sale in Newberry Road, Rodwell, DT4 — £295,000 • 3 bed • 2 bath • 1166 ft²






























































