Spacious three-bedroom village house with parking and garden close to primary school.
Over 1,300 sqft of living space
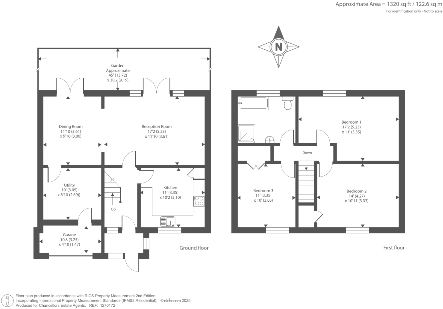
Comfortable three-bedroom family home in the heart of Middle Barton, presented in good order and offering versatile living across more than 1,300 sqft. The open-plan living/dining room and modern fitted kitchen create a practical, sociable ground floor while three double bedrooms upstairs give children generous space. The village primary school is a short walk away, making daily routines straightforward for families.
Practical benefits include off-street parking for multiple vehicles plus garage space, mains gas central heating with a boiler and radiators, double glazing installed since 2002, and fast broadband — all useful for modern family life and home working. The property sits on a decent plot with a garden that has scope for landscaping or play space.
Notable considerations are a single family bathroom serving three double bedrooms and a medium flood risk for the area; buyers should check insurance and local flood guidance. The house dates from the late 1960s–1970s and has cavity walls assumed without added insulation, so there is potential to improve energy efficiency. Overall this is a well-proportioned, well-maintained freehold terraced home suited to growing families looking for village living with good local schools and community ties.
3 bedroom detached bungalow for sale in Middle Barton, Oxfordshire, OX7 — £450,000 • 3 bed • 1 bath • 1316 ft²
4 bedroom detached house for sale in Middle Barton, Oxfordshire, OX7 — £515,000 • 4 bed • 2 bath • 1764 ft²
3 bedroom terraced house for sale in Washington Terrace, Middle Barton, OX7 — £475,000 • 3 bed • 2 bath • 1227 ft²
3 bedroom chalet for sale in Orchard Way, Middle Barton, OX7 — £340,000 • 3 bed • 1 bath • 1122 ft²
3 bedroom end of terrace house for sale in North Street, Middle Barton, Chipping Norton, OX7 — £325,000 • 3 bed • 1 bath • 804 ft²
3 bedroom house for sale in North Street, Middle Barton, Chipping Norton, OX7 — £425,000 • 3 bed • 2 bath • 1122 ft²


















































































