Large family layout with loft and rear extension potential.
Chain free freehold Victorian terraced house, 1,340 sq ft
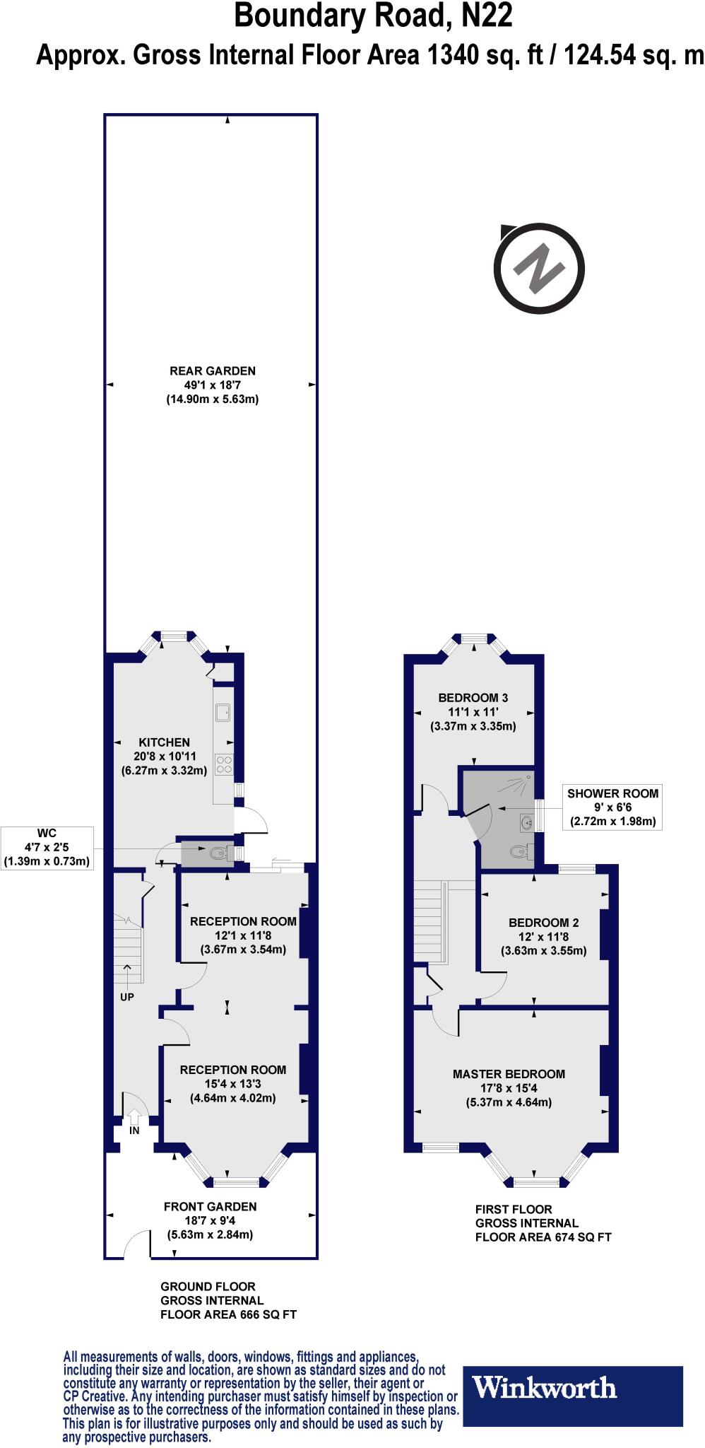
This chain-free Victorian terraced house on Boundary Road offers 1,340 sq ft of flexible family space with strong scope to improve value. The layout includes two reception rooms, a kitchen-diner that opens onto a long rear garden, and three double bedrooms. The property retains period character such as bay windows and high ceilings but requires full modernisation throughout.
Practical benefits include freehold tenure, excellent mobile signal and fast broadband, and good local transport links into Central London. Several well-rated primary and secondary schools are within walking distance, making the house suitable for growing families. There is planning potential to extend into the loft and rear (subject to planning permission), presenting clear upside for buyers wanting to add space or value.
Key drawbacks are the property's renovation requirement and a single bathroom, plus a relatively small plot and an overgrown garden that will need landscaping. The immediate area is inner-city cosmopolitan with average crime and higher local deprivation indicators; buyers should consider ongoing neighbourhood investment when assessing long-term plans.
Overall this is a value-driven purchase for buyers prepared to renovate — either to create a comfortable family home near strong schools and transport, or to realise investment uplift through extension and updating.
3 bedroom terraced house for sale in Boundary Road, London, N22 — £850,000 • 3 bed • 2 bath • 1249 ft²
3 bedroom terraced house for sale in Boundary Road, Wood Green, N22 — £600,000 • 3 bed • 1 bath • 1128 ft²
3 bedroom terraced house for sale in Boundary Road, London, N22 6AJ, Wood Green, London, N22 — £575,000 • 3 bed • 1 bath • 1122 ft²
3 bedroom terraced house for sale in Westbury Avenue, London, N22 — £650,000 • 3 bed • 1 bath • 1363 ft²
2 bedroom terraced house for sale in Conway Road, Harringay, London, N15 — £540,000 • 2 bed • 1 bath • 741 ft²
3 bedroom terraced house for sale in Denmark Street, London, N17 — £450,000 • 3 bed • 1 bath • 904 ft²














































