Sunny layout near Wimbledon Common with strong transport links.
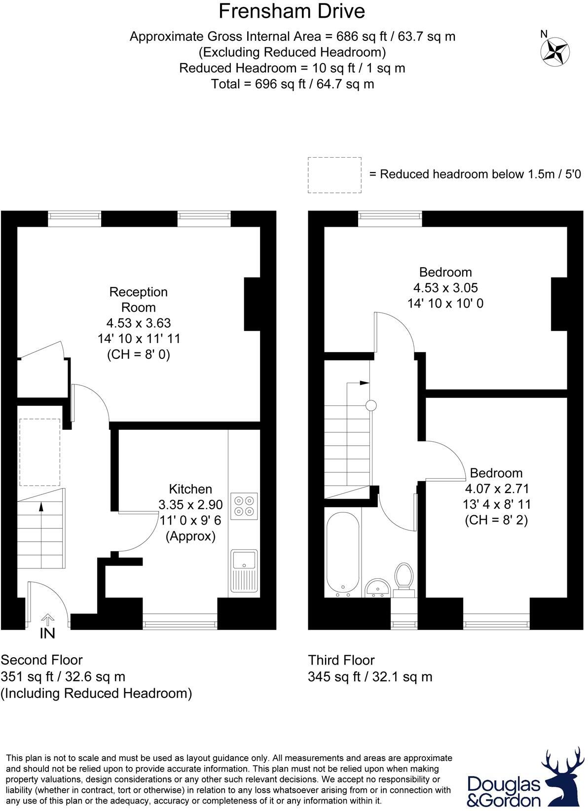
Two double bedrooms and large reception room with good natural light|Separate kitchen flooded with daylight|696 sq ft — average-sized, efficient layout|Short walk to Wimbledon Common and Roehampton Vale amenities|Frequent bus links to Putney and Kingston; fast broadband/mobile|Permit-free on-street parking; convenient for car owners|EPC rating D; built 1950–66, double glazing pre-2002|Leasehold; area shows higher crime and deprivation, some renovation needed
A well-proportioned first-floor maisonette offering comfortable living across an efficient 696 sq ft layout. The apartment has two double bedrooms, a large reception room and a separate kitchen that receives abundant natural light — an appealing blank canvas for a buyer wanting to personalise. Its mid-20th century construction and double glazing (installed before 2002) give basic thermal performance, but the property would benefit from targeted improvements to heating insulation and decor.
Location is a clear strength: a short walk from Wimbledon Common, close to Roehampton Vale amenities and frequent buses to Putney and Kingston. Broadband speeds are fast and mobile signal is excellent, supporting home working and digital needs. Permit-free on-street parking adds convenience for car owners.
Buyers should note material facts plainly: the flat is leasehold, has an EPC rating of D and is in a neighbourhood with higher measured crime and area deprivation. Some internal finishes are dated (carpets, fixtures) and walls are solid brick with assumed no cavity insulation — potential costs to upgrade should be factored in. Overall this maisonette suits a buyer seeking a well-located, affordable starter property with scope to improve and add value.
2 bedroom property for sale in Frensham Drive, London, SW15 — £325,000 • 2 bed • 1 bath • 685 ft²
3 bedroom terraced house for sale in Frensham Drive, London, SW15 — £425,000 • 3 bed • 1 bath • 900 ft²
2 bedroom maisonette for sale in Worple Road, Wimbledon, SW19 — £525,000 • 2 bed • 1 bath • 796 ft²
1 bedroom maisonette for sale in Vale Crescent, London, London, SW15 — £375,000 • 1 bed • 1 bath • 570 ft²
3 bedroom flat for sale in Ibsley Gardens, London, SW15 — £350,000 • 3 bed • 1 bath • 820 ft²
4 bedroom flat for sale in Carlton Drive, London, SW15 — £380,000 • 4 bed • 2 bath • 1077 ft²


































