Modern, chain-free flat with parking and river outlook ideal for first-time buyers.
Riverside first-floor apartment with private balcony and river views
Open-plan kitchen and living area, newly renovated throughout
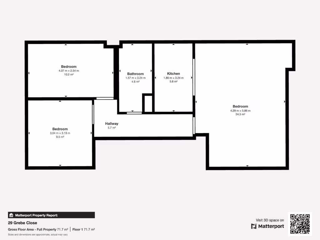
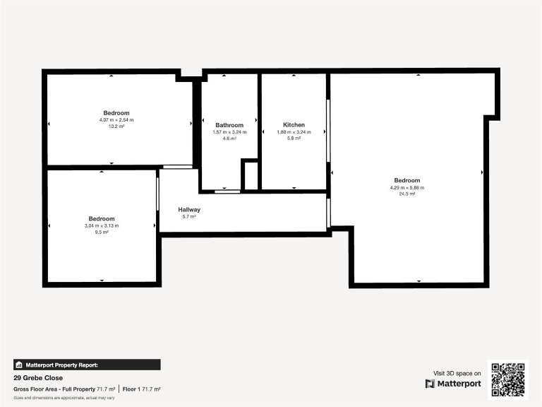
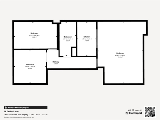
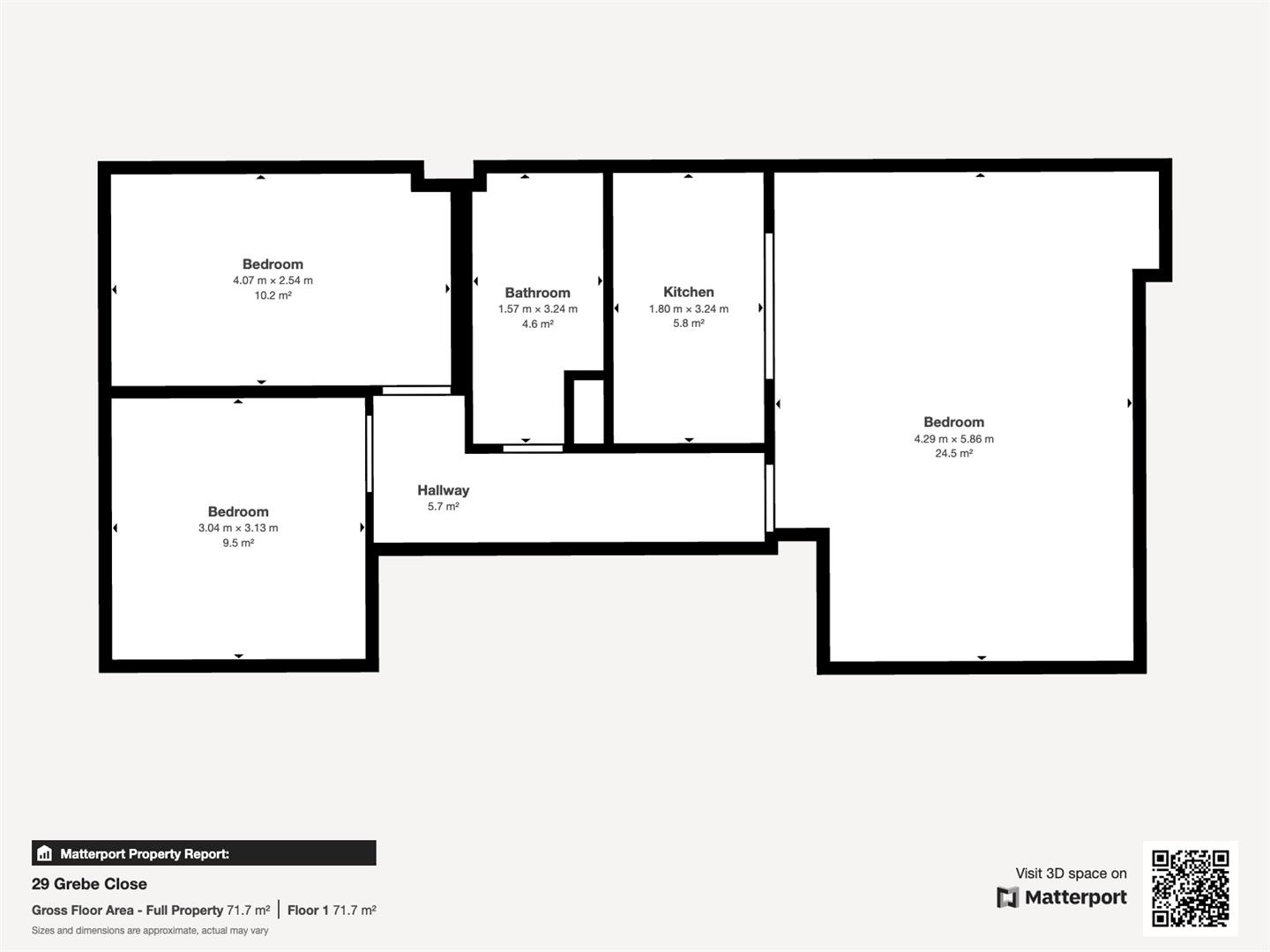
Two double bedrooms, approx. 765 sq ft internal space
Allocated off-street parking included
Long lease (c.978 years) and EPC rating B
Service charge approx. £1,860 per year (leasehold)
Electric storage heating only (no gas central heating)
Area records higher crime levels; consider location suitability
This bright first-floor riverside apartment offers move-in ready accommodation with modern finishes and a private balcony overlooking the river. The open-plan kitchen/living space maximises natural light and the layout suits couples, small families or first-time buyers wanting easy access to transport and local amenities.
Practical strengths include allocated off-street parking, a long lease (approx. 978 years), EPC rating B and council tax band B. The block feels contemporary and the apartment has been recently modernised throughout, with new carpets and clean neutral decor.
Important considerations: the property is leasehold with an average annual service charge of around £1,860, and heating is by electric storage heaters (no gas). The area records higher crime levels and is classed as deprived, so buyers should factor location and local safety into their decision.
Overall this chain-free apartment combines riverside appeal and modern presentation for a buyer seeking a low-maintenance starter home or a rental investment with good transport and broadband connectivity.
2 bedroom flat for sale in Kingfisher Court, Dunston, Gateshead, NE11 — £120,000 • 2 bed • 2 bath • 581 ft²
2 bedroom flat for sale in Kingfisher Court, Gateshead, Tyne and Wear, NE11 — £120,000 • 2 bed • 2 bath • 681 ft²
2 bedroom flat for sale in Grebe Close, Dunston, NE11 — £125,000 • 2 bed • 1 bath • 613 ft²
2 bedroom flat for sale in Davison Courtyard, Winters Pass, The Staithes, Gateshead, NE8 — £135,000 • 2 bed • 1 bath • 559 ft²
2 bedroom apartment for sale in Baltic Quay, Mill Road, Gateshead Quays, NE8 — £150,000 • 2 bed • 2 bath • 926 ft²
2 bedroom apartment for sale in Northside, Gateshead, Tyne And Wear, NE8 — £140,000 • 2 bed • 1 bath • 512 ft²










































































