FY8 1XD - 3 bedroom block of apartments for sale in St Albans Road, L…

View on Property Piper

3 bedroom block of apartments for sale in St Albans Road, Lytham St. Annes, Lancashire, FY8 1XD, FY8

Summary - Flat 1,91 St. Albans Road,LYTHAM ST. ANNES,FY8 1XD FY8 1XD

3 bed 3 bath Block of Apartments

**Key Features:**
- Block of 3 self-contained apartments
- Annual income of £20,400
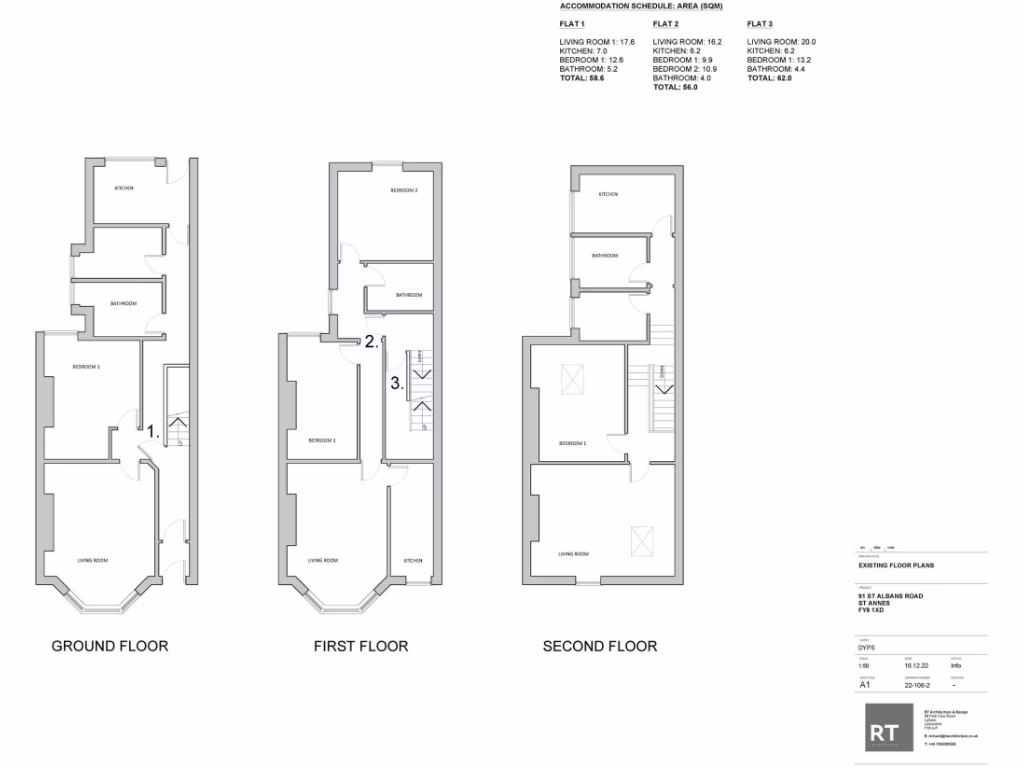
- Ground Floor: Spacious one/two-bedroom apartment
- First Floor: Well-appointed two-bedroom apartment
- Top Floor: Versatile one/two-bedroom apartment
- Located near St. Annes Square with excellent transport links
- Tenure: Leasehold

Located in the desirable area of Lytham St. Annes, this block of apartments presents an enticing investment opportunity with a solid annual income of £20,400. Comprising three distinct self-contained units, the property features a ground-floor apartment that can accommodate flexible living arrangements, alongside a well-appointed two-bedroom unit on the first floor and another versatile one/two-bedroom space on the top floor.

While the property is in a prime location with easy access to a variety of local amenities, including schools rated 'Good' and 'Outstanding', prospective buyers should note the area's higher crime rates and the potential need for interior improvements, specifically in the living areas. With its unique Victorian style—a hallmark of spacious interiors and large windows—this investment offers lucrative rental potential in a market constrained by high demand and limited supply. Given the competitive rental landscape, viewing this property soon is highly recommended as opportunities in such a sought-after location may not last long.

Property Details

Image Descriptions

Textual Property Features

Detected Visual Features

Nearby Schools

Nearest Bars And Restaurants

,,,,}

Nearest General Shops

,,}

Nearest Grocery shops

,,}

Nearest Supermarkets

,,}

Nearest Religious buildings

,,}

Nearest Medical buildings

,,,}

Nearest Leisure Facilities

,,,,}

Nearest Tourist attractions

,,}

Nearest Train stations

,,,,}

Nearest Bus stations and stops

,,,,}

Nearest Hotels

,,}

Tags

Local Market Stats

AirBnB Data

Similar Properties

Meta

High Res Images

Compatible Images

Low res Images

Thumbnails

Raw Images

High Res Floorplan Images

Compatible Floorplan Images

Low res Floorplan Images

FloorplanImages Thumbnail

Raw Floorplan Images