Spacious reception, good schools and short walk to town centre.
Chain-free two-bedroom mid-terrace with Victorian character
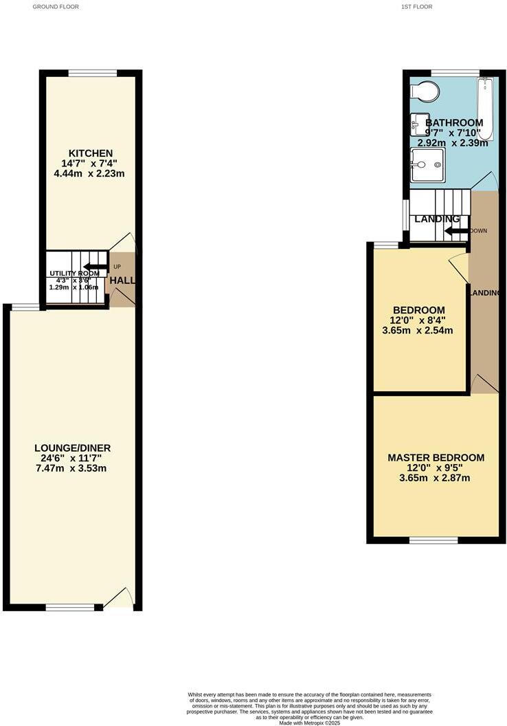
This chain-free, two-bedroom mid-terrace offers a large through reception and a generous rear garden in a well-connected Watford location. The property retains period features such as high ceilings and a bay window while providing practical updates including double glazing and gas central heating.
Accommodation is arranged over two floors with a spacious ground-floor reception, a fitted galley kitchen with utility space, and two first-floor bedrooms served by a fully tiled family bathroom. The layout suits first-time buyers or small families seeking a roomy lounge-led home close to outstanding local schools and town-centre amenities.
Buyers should note the house was constructed before 1900 with solid brick walls and no known cavity insulation, so thermal improvements could be beneficial. The plot is small and parking is on-street by permit. The area records higher-than-average crime levels, which some purchasers may consider when comparing locations.
Overall this property represents straightforward scope for cosmetic modernisation and energy-efficiency upgrades, with clear appeal for buyers wanting a characterful, chain-free home near excellent transport links and schools.
2 bedroom house for sale in Shaftesbury Road, WATFORD, WD17 — £320,000 • 2 bed • 1 bath • 715 ft²
3 bedroom end of terrace house for sale in Kings Avenue, Watford, Hertfordshire, WD18 — £475,000 • 3 bed • 1 bath • 995 ft²
2 bedroom terraced house for sale in Parker Street, Watford, WD24 — £425,000 • 2 bed • 1 bath • 662 ft²
2 bedroom house for sale in Acme Road, Watford, WD24 — £385,000 • 2 bed • 2 bath • 668 ft²
2 bedroom terraced house for sale in Fearnley Street, Watford, WD18 — £382,500 • 2 bed • 1 bath • 840 ft²
2 bedroom terraced house for sale in Banbury Street, Watford, WD18 — £375,000 • 2 bed • 2 bath • 797 ft²






























