Central location near schools, canal and shops for growing families.
- Edwardian semi-detached with period features and bay window
- Open-plan lounge and dining room with log burner
- Detached garage with separate workshop/utility space
- Large private rear garden and off-street driveway parking
- Spacious loft bedroom as fourth bedroom or master retreat
- Single family bathroom serving four bedrooms
- Cavity walls likely uninsulated; upgrade opportunity
- Leasehold with long 901-year term; council tax moderate
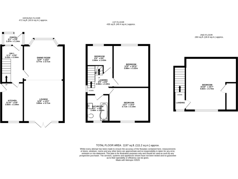
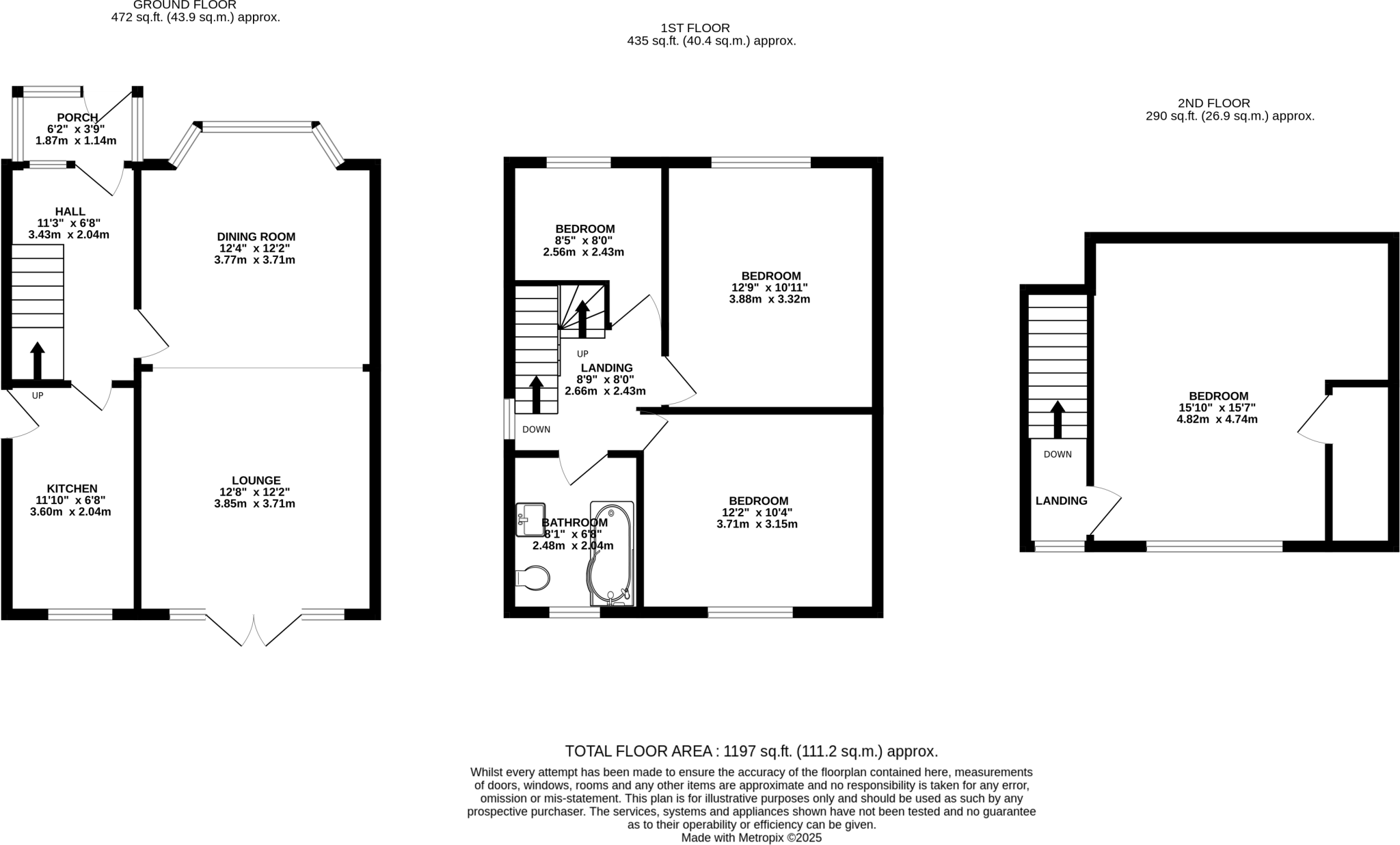
This Edwardian semi-detached house sits in central Marple, arranged over three floors to offer flexible family living. The ground floor delivers a bright open-plan lounge and dining area with a log burner and direct access to a large private rear garden. A separate modern kitchen sits to the side, and there is driveway parking plus a detached garage with workshop space.
Upstairs are three well-proportioned bedrooms and a family bathroom; a spacious loft bedroom on the top floor provides a private master or teenage retreat. The house totals about 1,197 sq ft — an average-sized family footprint with scope to reconfigure or extend (subject to permissions).
Practical points to note: the property is leasehold with a very long remaining term (901 years), has cavity walls likely without added insulation, and a single bathroom for four bedrooms. These are straightforward issues that can be addressed through insulation upgrades and bathroom reconfiguration if required.
Located in the heart of Marple, the home sits within walking distance of multiple well-rated primary and secondary schools, local shops, pubs, and the Peak Forest Canal, making it convenient for family life and daily commuting.
4 bedroom semi-detached house for sale in Cross Lane, Marple, Stockport, Greater Manchester, SK6 — £385,000 • 4 bed • 1 bath • 1183 ft²
4 bedroom semi-detached house for sale in OPEN Event Sat 18th | Elmfield Dr, Marple, SK6 — £525,000 • 4 bed • 2 bath • 1542 ft²
3 bedroom semi-detached house for sale in Shirley Avenue, Marple, Stockport, Greater Manchester, SK6 — £375,000 • 3 bed • 1 bath • 841 ft²
5 bedroom semi-detached house for sale in Fairview Drive, Marple, Stockport, Greater Manchester, SK6 — £400,000 • 5 bed • 1 bath • 1236 ft²
4 bedroom semi-detached house for sale in Links Road, Marple, Stockport, Cheshire, SK6 7NX, SK6 — £490,000 • 4 bed • 1 bath • 1328 ft²
4 bedroom detached house for sale in Manor Road, Marple, SK6 — £845,000 • 4 bed • 3 bath • 2554 ft²






































































