Low‑cost freehold land with redevelopment potential near local schools.
• 0.07 acre freehold plot (approx. 3,049 sq ft)
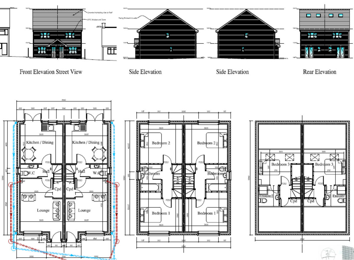
• Expired planning consent for two semi‑detached houses
• Sold at auction 1 December 2025; pre‑auction offers considered
• No identified flood risk; fast broadband and average mobile signal
• Located in a very deprived / hampered neighbourhood classification
• Close to several primary and secondary schools, including an Outstanding college
• Requires fresh planning consent for development; planning risk applies
• Small/compact site — limited unit yield potential
A compact vacant freehold plot of approximately 0.07 acres (circa 3,049 sq ft) on Flash Lane, ST4 5QZ. The site previously had planning consent for two semi‑detached houses which has now expired, offering a starting point for redevelopment subject to fresh planning approval. The plot is in a city-centre suburban area with fast broadband and average mobile signal.
This parcel suits investors or small builders seeking a low‑cost land opportunity in Stoke-on-Trent. It will be offered for sale at auction on 1 December 2025, with pre-auction offers invited. There is no identified flood risk and the tenure is freehold, simplifying transaction mechanics compared with leasehold sites.
Buyers should note the location sits within a very deprived / hampered neighbourhood classification, which may affect sales values and lettings comparables. The previous consent has expired, so purchasers must factor in planning risk and associated costs if pursuing residential development or alternative uses. The site is best considered a speculative acquisition with redevelopment potential rather than a turn‑key project.
Land for sale in Land Between Lloyd Sreet And Locketts Lane, Longton, Stoke-On-Trent, Staffordshire, ST3 4JQ, ST3 — POA • 1 bed • 1 bath • 1975 ft²
Land for sale in Stonor Street, Cobridge, Stoke On Trent, ST6 3HJ, ST6 — £1,000,000 • 53 bed • 53 bath • 1125 ft²
Land for sale in Milton Crescent, Stoke on Trent, ST7 — £35,000 • 1 bed • 1 bath
Land for sale in Stonehouse Road, Stoke on Trent, ST9 — £25,000 • 1 bed • 1 bath • 9148 ft²
Property for sale in Allerton Road, Trentham, Stoke-On-Trent, Staffordshire, ST4 — £180,000 • 1 bed • 1 bath
Land for sale in 34 Station Road, Stoke-on-Trent, ST7 — £20,000 • 1 bed • 1 bath










































