Characterful rural home with income potential and flexible outbuildings near Newcastle.
Georgian farmhouse with four double bedrooms and generous reception rooms
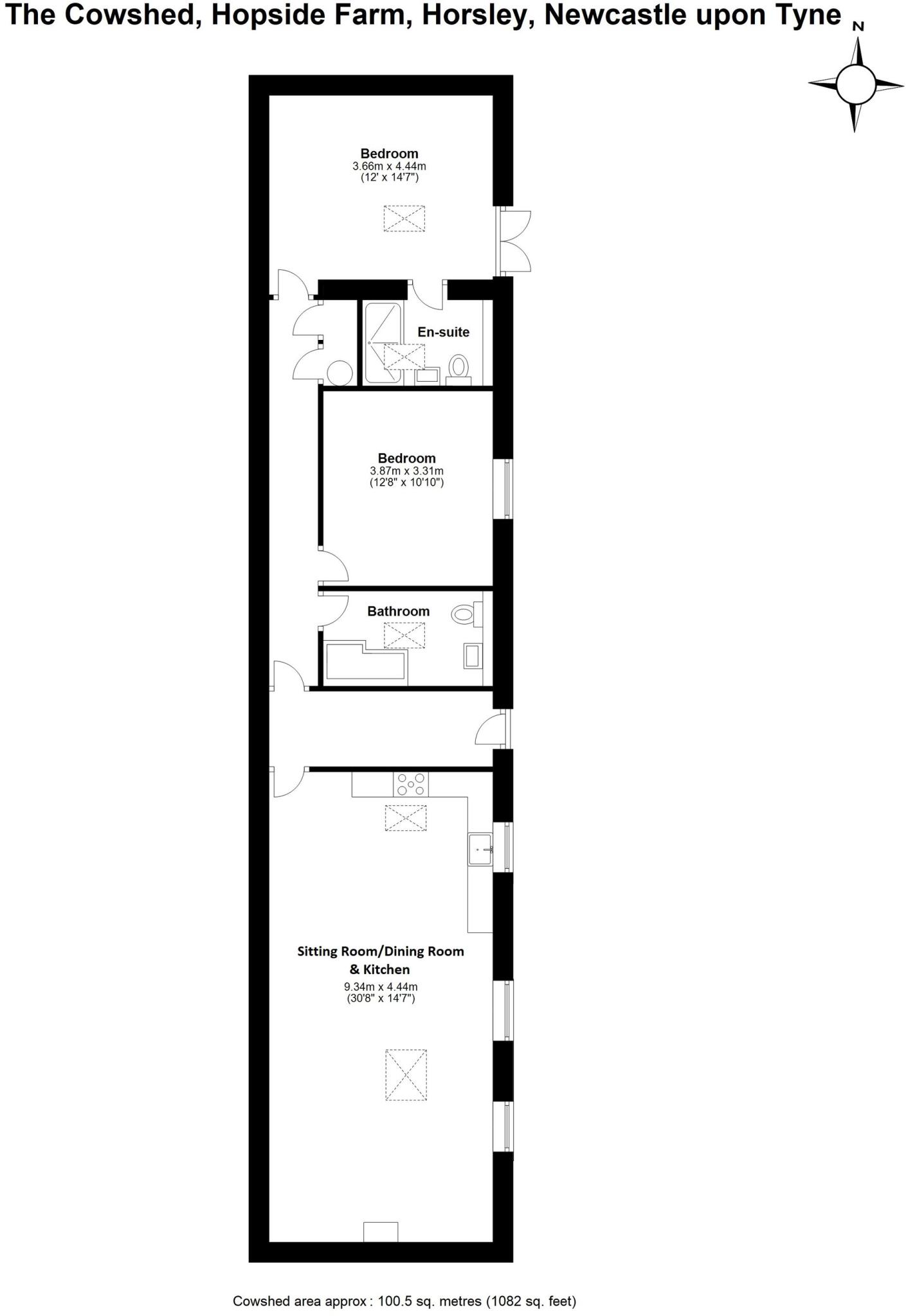
Separate two-bedroom Cowshed annexe with independent access and holiday-let track record
Large plot, south-facing front garden, gravel driveway and twin garage
Range of stone outbuildings offering development potential (subject to planning)
Air source heat pump with underfloor heating listed; services note also mentions oil heating — verify
Paddock (~0.27 acres) currently rented at £150/year; not owned outright
EPC rated D; council tax described as expensive
Recently renovated but within a Conservation Area — planning constraints likely
Hopside Farmhouse is a striking 1842 Georgian farmhouse that combines retained period character with recent sympathetic renovation. The main house offers generous reception rooms, four double bedrooms and contemporary bathroom fittings, while double glazing and underfloor heating (air source heat pump) provide modern comfort. The adjoining Cowshed is a high-quality, independently accessed two-bedroom annexe with vaulted ceilings and proven holiday-let income potential.
Set in a large secluded plot in the desirable commuter village of Horsley, the property includes a south-facing cottage garden, gravelled driveway, twin garage and a courtyard of stone outbuildings. Those outbuildings currently house an office, games room, boiler room, kennel, gardener’s WC and woodshed — presenting clear potential for conversion to additional lets or ancillary space subject to planning permission.
Notable practical points are factual: there is an existing paddock of around 0.27 acres rented from a local landowner (annual fee currently £150), the EPC rating is D, and council tax is described as expensive. The listing also refers to oil-fired central heating in the services section; the displayed main heating is an air source heat pump with underfloor heating — buyers should verify the heating systems and service history during due diligence.
This home will suit buyers seeking characterful, flexible rural living — especially families or multi-generational households — and purchasers interested in income from holiday lets or further development. Planning checks and confirmation of services, energy performance and any outstanding wayleaves or easements are recommended prior to offer.
4 bedroom farm house for sale in Hopside Farm, Horsley, Northumberland, NE15 — £675,000 • 4 bed • 2 bath • 2626 ft²
4 bedroom detached house for sale in West House, Horsley, NE15 — £625,000 • 4 bed • 3 bath • 2715 ft²
4 bedroom farm house for sale in The Farmhouse, East Wallhouses, Northumberland, NE18 — £550,000 • 4 bed • 2 bath • 1716 ft²
4 bedroom detached house for sale in Horsley, Newcastle Upon Tyne, NE15 — £400,000 • 4 bed • 2 bath • 1473 ft²
4 bedroom house for sale in South East Farm, Newcastle Upon Tyne, Northumberland, NE15 — £475,000 • 4 bed • 2 bath • 1299 ft²
3 bedroom detached house for sale in Horsley Banks Farm, Horsley, Newcastle upon Tyne, Tyne and Wear NE15 0NS, NE15 — £175,000 • 3 bed • 2 bath • 1108 ft²


















































































































