Well‑presented terraced house near hills, ready for family life.
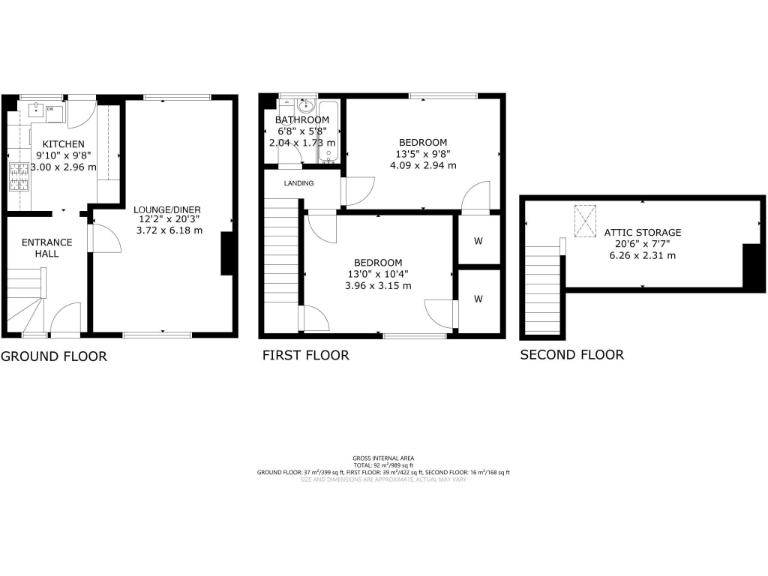
Two double bedrooms plus floored attic room with Velux window
Combined lounge/diner and fitted kitchen with appliances included
Gas central heating and double glazing; EPC C
Monobloc driveway for off-street parking; enclosed rear garden
Average footprint — rooms are small-to-moderate in size
Attic has limited headroom; best for occasional use or storage
Tenure not specified — buyers should confirm before offer
Closing date fixed Wednesday 1st October at 12 noon
Bright and well-presented mid-terraced house in Currie, arranged over three floors and ready for immediate occupation. The ground floor offers a lounge/diner that flows to a fitted kitchen with several integrated appliances included, while two double bedrooms and a family bathroom occupy the first floor. A carpeted staircase from bedroom one leads to a floored attic room with a Velux window, useful as a home office, occasional bedroom or storage space despite limited headroom.
Outside, the property benefits from a monobloc driveway for off-street parking and an enclosed rear garden with lawn, patio and shed – low-maintenance outdoor space suited to family life. Practical features include gas central heating, double glazing and an EPC rating of C, supporting year-round comfort and reasonable running costs; council tax is described as cheap.
The house sits in a well-connected village location with easy access to walking routes in the Pentland Hills, good bus and rail links, nearby shops, schools and larger retail at Gyle/Hermiston Gate. That accessibility makes this a convenient choice for commuters, families and buyers seeking a compact, manageable home with scope for modest cosmetic updates. Note: the tenure is not stated and the property is set for a fixed closing date of Wednesday 1st October at 12 noon.
3 bedroom semi-detached house for sale in Stewart Crescent, Currie, EH14 — £275,000 • 3 bed • 2 bath • 1055 ft²
3 bedroom semi-detached house for sale in 73 Curriehill Road, Currie, Edinburgh, EH14 5PT, EH14 — £310,000 • 3 bed • 1 bath • 774 ft²
3 bedroom detached house for sale in 83 Currievale Drive, Currie, Edinburgh, EH14 5RW, EH14 — £350,000 • 3 bed • 2 bath • 1076 ft²
2 bedroom semi-detached house for sale in 93 Muir Wood Road, Currie, EH14 5HE, EH14 — £290,000 • 2 bed • 1 bath • 884 ft²
3 bedroom semi-detached villa for sale in 18 Thomson Road, Currie, EH14 5HW, EH14 — £335,000 • 3 bed • 1 bath • 1058 ft²
3 bedroom semi-detached house for sale in 7 Bryce Crescent, Currie, EH14 5LN, EH14 — £325,000 • 3 bed • 1 bath • 926 ft²


















































































































