Large plot with garage and renovation potential, five minutes from the beach.
Chain-free, freehold detached bungalow near Sandown beach
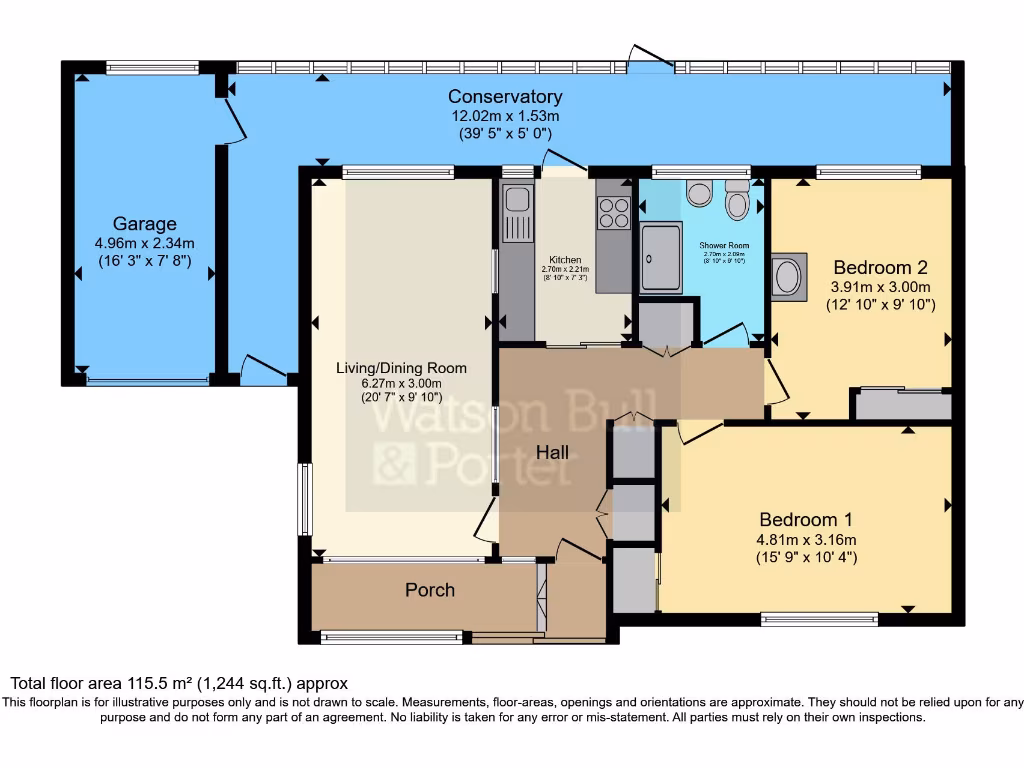
Chain-free, detached bungalow in a sought-after Sandown spot, just a five-minute walk from the sandy beach. The single-storey layout and large rooms suit buyers seeking easy, one-level living and scope to personalise. Offered freehold, the property includes a garage, driveway parking for 2–3 cars and a substantial rear garden.
The bungalow requires renovation and upgrading throughout, making it ideal for downsizers who want to tailor a home or investors seeking improvement potential. Practical upgrades have been started: double glazing (post-2002) and solar panels are fitted, and the gas boiler with radiators provides mains gas heating.
Location benefits include excellent mobile signal, fast broadband, nearby bus links and easy beach access for walks. Local primary and secondary schools are rated Good. Buyers should note the local area has higher crime levels and relative deprivation; the house’s renovation requirement and surrounding context are important considerations.
Overall this is a spacious, mid‑century detached bungalow on a large plot with seaside access and clear scope to modernise. It will suit purchasers wanting a single-level home to update near the coast, or investors aiming to add value through refurbishment.
3 bedroom bungalow for sale in Coxs Green, Sandown, Isle of Wight, PO36 — £250,000 • 3 bed • 1 bath • 877 ft²
3 bedroom bungalow for sale in Fairview Crescent, Sandown, Isle of Wight, PO36 — £250,000 • 3 bed • 1 bath • 778 ft²
3 bedroom bungalow for sale in Grayswood Close, Sandown, PO36 — £325,000 • 3 bed • 1 bath • 1094 ft²
2 bedroom bungalow for sale in Whites Mead, Sandown, Isle of Wight, PO36 — £275,000 • 2 bed • 1 bath • 798 ft²
2 bedroom detached bungalow for sale in Perowne Way, Sandown, Isle of Wight, PO36 — £270,000 • 2 bed • 1 bath • 549 ft²
3 bedroom bungalow for sale in Central Way, Sandown, Isle of Wight, PO36 — £280,000 • 3 bed • 2 bath • 1090 ft²






























































