Large energy-efficient family home with bi-fold doors and double garage in tranquil Wynyard Estate.
Large new-build detached house, approx. 3,234 sq ft
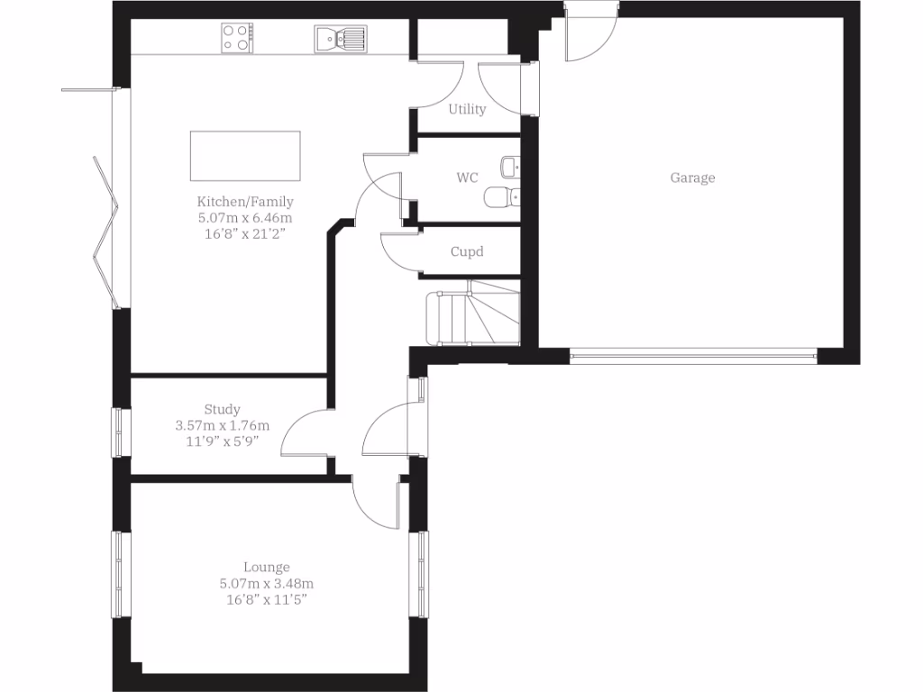
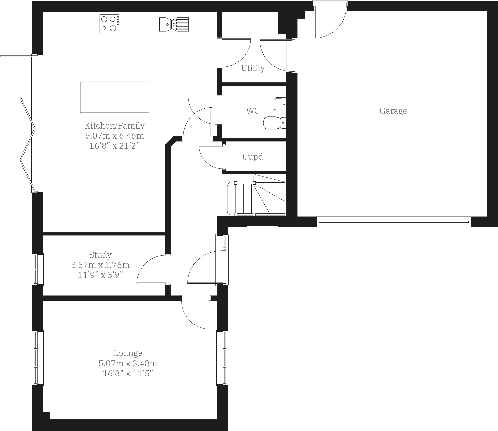
Set within the peaceful Wynyard Estate, this substantial new-build five-bedroom detached home extends to about 3,234 sq ft on a large plot. The Oxwich layout puts family life at the centre: a generous open-plan kitchen/family room with bi-fold doors for easy indoor/outdoor entertaining, a separate lounge and study, and an integral double garage with useful utility and storage cupboards. Two principal bedrooms include dressing rooms and en suites, while three further bedrooms provide flexible space for children, guests or a home office.
Energy-efficient construction and modern fittings are part of the package, offering lower running costs and less immediate maintenance than an older house. Broadband speeds and mobile signal are strong, and there’s no recorded flood risk. The property sits in an affluent, countryside setting close to outstanding primary and well-regarded independent schools—appealing for families seeking space and good schooling.
Practical points to check: the listing data records a single bathroom despite floorplans and text referring to en suites and a family bathroom — buyers should confirm the final bathroom count and internal specification. Council tax banding is not yet set until post-occupation. The hamlet/isolated settlement offers privacy and woodland views but may feel remote for those wanting frequent town amenities or public transport links.
Overall this is a spacious, contemporary family home with high-specification rooms and strong energy credentials, best suited to buyers wanting rural calm without sacrificing modern conveniences. Confirm final internal layout, bathroom provision and council tax before proceeding.
5 bedroom detached house for sale in Wynyard Woods,
Wynyard,
Billingham,
TS22 5UG, TS22 — £469,950 • 5 bed • 1 bath • 3990 ft²
5 bedroom detached house for sale in Wynyard Woods,
Wynyard,
Billingham,
TS22 5UG, TS22 — £449,950 • 5 bed • 1 bath • 5094 ft²
5 bedroom detached house for sale in Wynyard Woods,
Wynyard,
Billingham,
TS22 5UG, TS22 — £489,950 • 5 bed • 1 bath • 5233 ft²
4 bedroom detached house for sale in Wynyard Woods,
Wynyard,
Billingham,
TS22 5UG, TS22 — £464,950 • 4 bed • 1 bath • 749 ft²
3 bedroom semi-detached house for sale in Wynyard Woods,
Wynyard,
Billingham,
TS22 5UG, TS22 — £299,950 • 3 bed • 1 bath • 1619 ft²
5 bedroom detached house for sale in Wynyard Woods,
Wynyard,
Billingham,
TS22 5UG, TS22 — £474,950 • 5 bed • 1 bath • 2660 ft²






























































