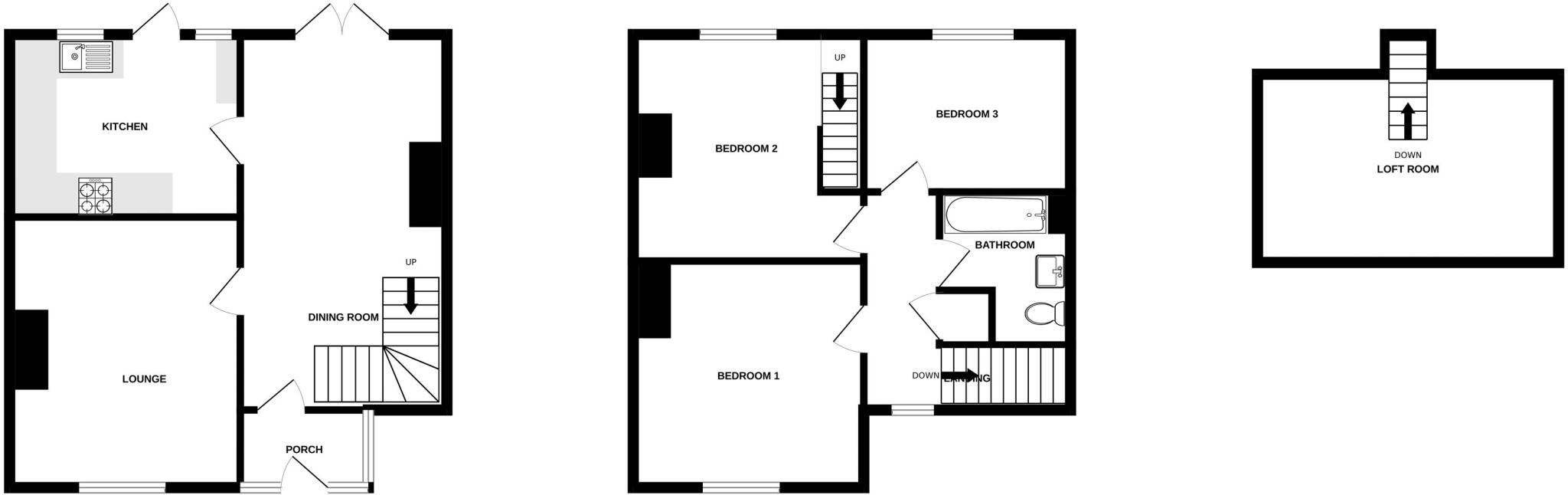
Three generous bedrooms plus loft room (access via principal bedroom)
This attractive 1930s semi-detached home offers straightforward family living in a popular Winnington location. The house presents three generous bedrooms plus a loft room accessed from the principal bedroom, two reception rooms and a modern breakfast kitchen ready for everyday use. The large, enclosed rear garden and two-car driveway provide outdoors space and practical parking for a growing household.
Practical positives include double glazing (post-2002), mains gas central heating with boiler and radiators, fast broadband and very low local crime. The property is freehold, chain-free and positioned within reach of good local schools, shops and commuter routes (A556/A49) — useful for families and business travellers.
Honest points to note: the EPC is rated E and the original solid brick walls likely lack cavity insulation, which could mean higher energy bills and scope for improvement. There is a single family bathroom and the loft room is reached via stairs from the main bedroom, so consider privacy and layout for larger families. Minor modernisation or insulation work would add value and comfort.
Overall, this roomy, well-proportioned semi offers immediate livability with clear potential to increase efficiency and market value through insulation or updating work. It suits buyers looking for a family-friendly home in an affluent, established suburb with straightforward commuting options.



























































































