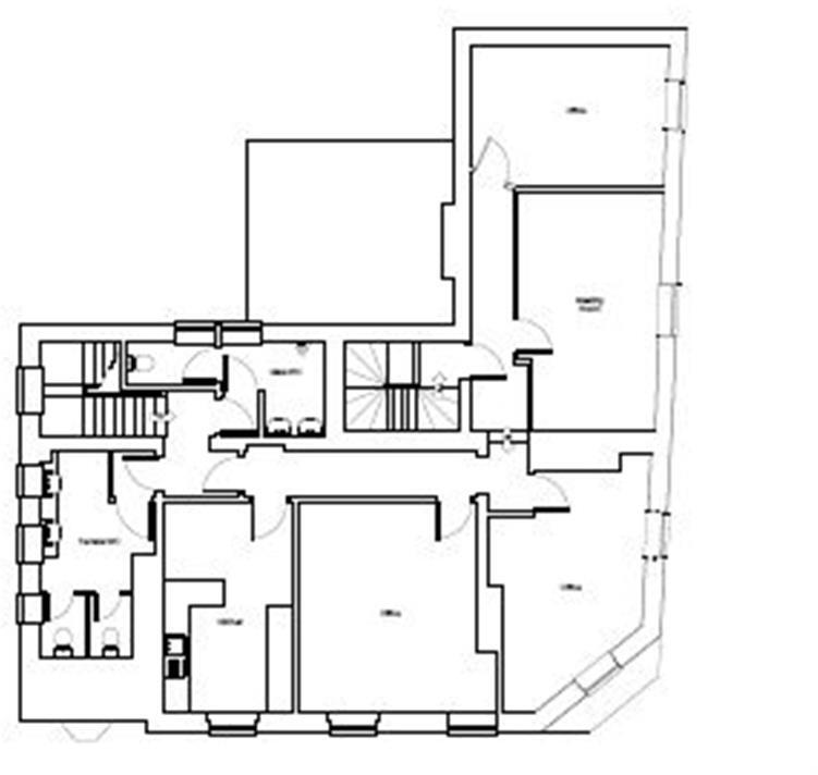
**Standout Features:**
- Large former bank building with historic Victorian and Edwardian architecture.
- Multiple office spaces and high ceilings, providing adaptability for various uses.
- Enclosed parking area at the rear for added convenience.
- Potential for redevelopment with flexible planning options—no prior applications made.
- Excellent natural light in all rooms, creating a bright working environment.
- Close proximity to major amenities, schools, and transport links.
**Overview:**
Discover the immense potential in this expansive former bank building, ideally situated for redevelopment in New Ferry. This property boasts multiple large office spaces adorned with period features, high ceilings, and an abundance of natural light. With its historic charm and sizable enclosed parking area, it offers the perfect foundation for creating a bespoke vision, whether it be office, residential, or mixed-use conversion.
Currently needing renovation, this freehold property does not have any planning permissions in place, allowing you the freedom to bring your unique concept to life. The building’s three floors and basement area provide flexibility, while the corner location ensures excellent visibility. Given the growing area’s needs and limited re-development opportunities, early viewing is highly advised. Don’t miss out on the chance to transform this substantial property into a thriving space that meets community demands—your vision awaits!
Commercial property for sale in 2-8 Liscard Village & 290 Liscard Way, Wallasey, Merseyside, CH45 — £400,000 • 1 bed • 1 bath • 8229 ft²
Commercial development for sale in 31-35 Wallasey Road, Wallasey, Merseyside, CH45 4NS, CH45 — £140,000 • 1 bed • 1 bath • 4500 ft²
Commercial property for sale in Victoria Road, Wallasey, CH45 — £160,000 • 1 bed • 1 bath • 849 ft²
Office for sale in Cleveland Street, Birkenhead, CH41 — £350,000 • 1 bed • 1 bath
Commercial property for sale in Charing Cross, Wirral, CH41 — £85,000 • 1 bed • 1 bath • 660 ft²
3 bedroom terraced house for sale in Bedford Road, Rock Ferry, Birkenhead, CH42 — £80,000 • 3 bed • 1 bath • 899 ft²














































