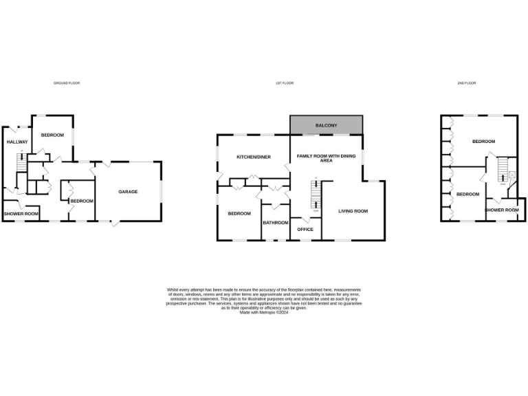
### Standout Features:
- Spacious 5-bedroom, 2.5-storey Swiss-style detached home
- Tranquil elevated position with stunning views of Loch Carron and the Inner Sound
- Generous 1-acre sloping garden grounds, ideal for outdoor activities
- Attached garage/workshop with additional potential for a secret room
- Versatile accommodation layout, offering income potential
### Potential Concerns:
- Average EPC Rating of E (54), may require energy efficiency improvements
- Broadband speeds are notably slow, posing connectivity challenges
- Expensive Council Tax band (F) may influence ongoing costs
**Summary:**
Discover Achnandarach Lodge, a remarkable Swiss-style 5-bedroom detached property nestled in a serene hamlet close to the coastal village of Plockton. This bespoke family home boasts versatile accommodation spread across three levels, making it an ideal investment for families and those looking to generate rental income. With captivating views of Loch Carron and expansive 1-acre garden grounds, outdoor enthusiasts will relish the idyllic surroundings.
Inside, the property offers a practical layout including an en-suite bedroom, spacious living areas, and ample storage, complemented by gas central heating and double glazing for comfort. The property does present some challenges, such as its mediocre energy performance and expensive council tax, but these can be viewed as opportunities for new owners to personalize and improve the space.
This exceptional home combines security, comfort, and future potential, making it a must-see for buyers looking for a slice of rural charm. Envision your family thriving in this unique setting, where nature and tranquility meet convenience—act quickly, as opportunities like this rarely last long!
6 bedroom detached house for sale in Camus An Arbhair, Plockton IV52 8TS, IV52 — £595,000 • 6 bed • 4 bath • 2584 ft²
3 bedroom semi-detached house for sale in Harbour Street, Plockton IV52 8TG, IV52 — £325,000 • 3 bed • 2 bath • 1002 ft²
4 bedroom detached house for sale in Carn Ruairidh, Croft Road, Lochcarron, IV54 8YA, IV54 — £380,000 • 4 bed • 2 bath • 1648 ft²
6 bedroom detached house for sale in Duisdalemore, Isle Ornsay, Isle of Skye, Highland, IV43 — £599,000 • 6 bed • 4 bath • 2856 ft²
3 bedroom bungalow for sale in Alavik Lodge & Cottage, 6 Tokavaig, Teangue, Isle of Skye, IV44 — £380,000 • 3 bed • 3 bath • 1430 ft²
4 bedroom detached house for sale in Lochcarron, Strathcarron, Ross-Shire, IV54 — £650,000 • 4 bed • 4 bath • 1402 ft²


















































































































































































