Large single-storey plot with extension potential near Audlem village centre.
Large 80ft frontage with open countryside views to the rear
Spacious single-storey layout with large living/dining room
Double garage, multiple parking spaces and long driveway
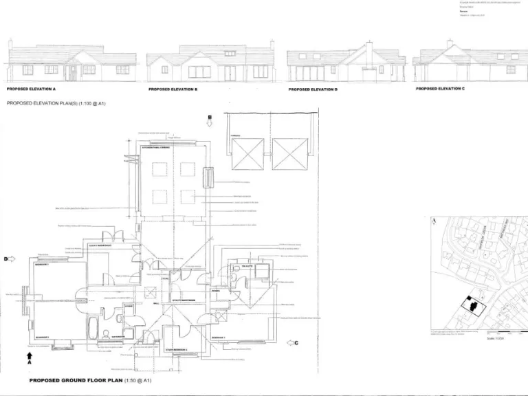
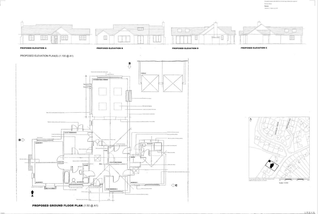
Indicative permitted development plans for substantial enlargement
Requires full renovation and internal modernisation throughout
Oil-fired central heating — potential for heating system upgrade
Council Tax Band F — relatively high ongoing cost
Chain free sale, freehold tenure
Set on an exceptionally large plot with an 80ft frontage, this detached two-bedroom bungalow occupies a prominent position just 450 yards from Audlem village centre. The house offers generous single-storey accommodation including a large living/dining room, garden/utility room, double garage and extensive parking — ideal for someone seeking headroom to extend or reconfigure. Indicative plans for substantial enlargement under permitted development rights are included in the particulars.
The property requires renovation throughout, offering a blank canvas to modernise finishes, kitchen and bathroom, and improve energy performance. Heating is by an oil-fired boiler with radiators and windows are uPVC double glazed; replacement or upgrade of services and internal finishes will be needed to realise full value. Council Tax is Band F, which should be factored into ongoing costs.
Outside, mature lawns, borders and a long driveway provide private, flexible outdoor space and a lovely open outlook over rolling countryside to the rear. The double garage (power and light) and multiple parking areas add practical appeal for families, hobbyists or buyers wanting room for vehicles and storage.
This bungalow is offered freehold and chain free, making it suitable for downsizers wanting single-level living with scope to personalise, or buyers and investors seeking a renovation project in an affluent, low-crime village close to transport links (Crewe station and the M6 within reasonable driving distance).
2 bedroom detached bungalow for sale in Windmill Close, Buerton, Crewe, CW3 — £325,000 • 2 bed • 1 bath • 1000 ft²
3 bedroom bungalow for sale in Hillary Drive, Audlem, CW3 — £290,000 • 3 bed • 2 bath • 1313 ft²
2 bedroom semi-detached bungalow for sale in Tollgate Drive, Audlem, CW3 — £270,000 • 2 bed • 1 bath • 786 ft²
3 bedroom detached bungalow for sale in Parkfield View, Woore Road, Buerton, Crewe, CW3 — £465,000 • 3 bed • 3 bath • 1653 ft²
2 bedroom detached bungalow for sale in Tollgate Drive, Audlem, CW3 — £310,000 • 2 bed • 1 bath • 797 ft²
3 bedroom detached bungalow for sale in Old School Lane, Hankelow, Cheshire, CW3 — £550,000 • 3 bed • 2 bath • 1428 ft²


























































































