Large secluded plot with versatile family accommodation and parking for many vehicles.
Approximately 0.7 acre mature private gardens and orchard
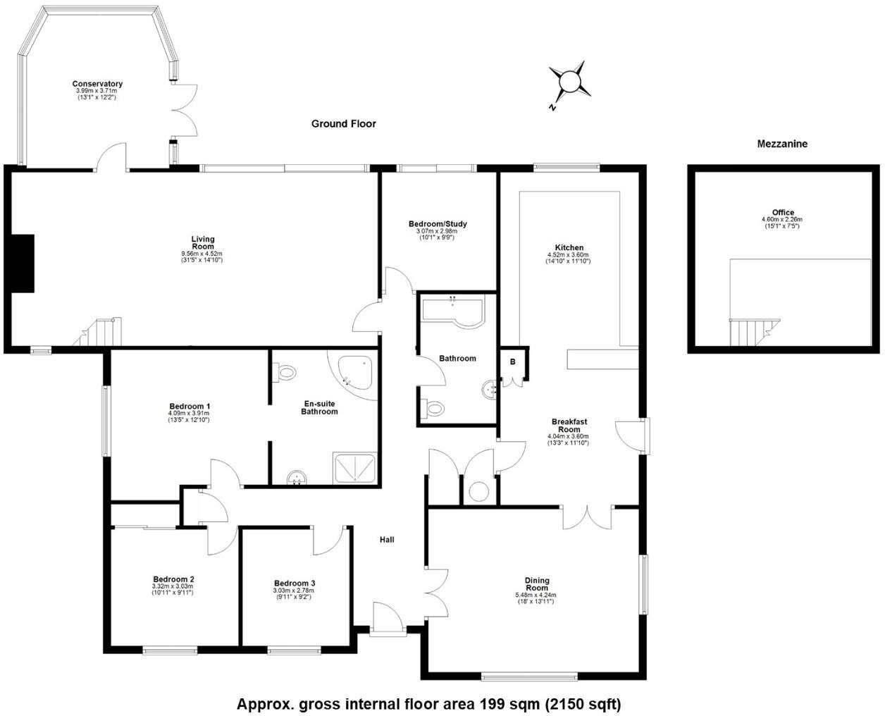
Set well back from a quiet no-through road, this extended 1960s detached bungalow sits within mature, private grounds of about 0.7 acres — ideal for families seeking space and seclusion in a popular village. The house offers generous, flexible living with three reception rooms, a large kitchen/breakfast/family area and four good-sized bedrooms, including an en-suite master.
Outside, the sweeping gravel driveway provides parking for six to eight vehicles and leads to a variety of useful outbuildings: workshop, greenhouse and garden stores. Lawns, specimen trees, a small orchard and a fenced wildlife pond create a private, child-friendly garden and provide scope for further landscaping or garden projects.
Buyers should note a few material points: heating is oil-fired to radiators and the EPC is rated E/54, which may mean higher running costs. There is a recorded historical subsidence issue where one corner was underpinned before 1982; the vendor reports no movement since. Walls are timber-frame as-built with no known added insulation (assumed), so the house would benefit from updating and insulation improvements.
The property is offered freehold and chain free, with straightforward road access to Cambridge (about nine miles) and nearby commuter links. There is clear potential to modernise or enlarge the accommodation subject to planning consent, making this a strong proposition for a family looking for space now and scope to add value over time.
3 bedroom detached house for sale in High Street, Little Eversden, CB23 — £600,000 • 3 bed • 2 bath • 1778 ft²
4 bedroom detached house for sale in High Street, West Wratting, Cambridge, CB21 — £1,000,000 • 4 bed • 3 bath • 2663 ft²
3 bedroom detached bungalow for sale in Trinity Close, Haslingfield, Cambridge, CB23 — £450,000 • 3 bed • 1 bath • 1125 ft²
5 bedroom detached bungalow for sale in Oakington Road, Girton, CB3 — £900,000 • 5 bed • 3 bath • 2735 ft²
3 bedroom detached house for sale in Mailes Close, Barton, CB23 — £700,000 • 3 bed • 1 bath • 1345 ft²
4 bedroom bungalow for sale in Comberton Road, Harlton, Cambridge, CB23 — £1,000,000 • 4 bed • 2 bath • 1768 ft²






































































































































