Bright two-bedroom Maida Vale apartment with loft extension potential and period charm.
Top-floor Victorian apartment with high ceilings and large windows
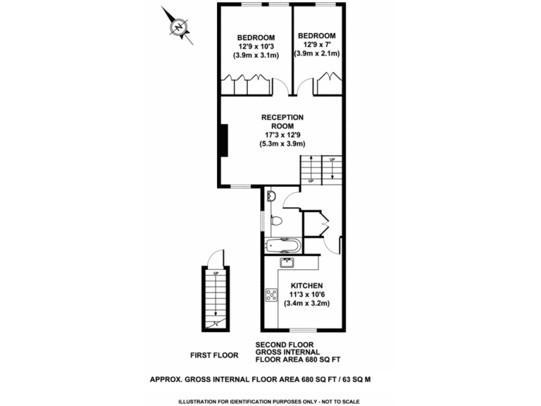
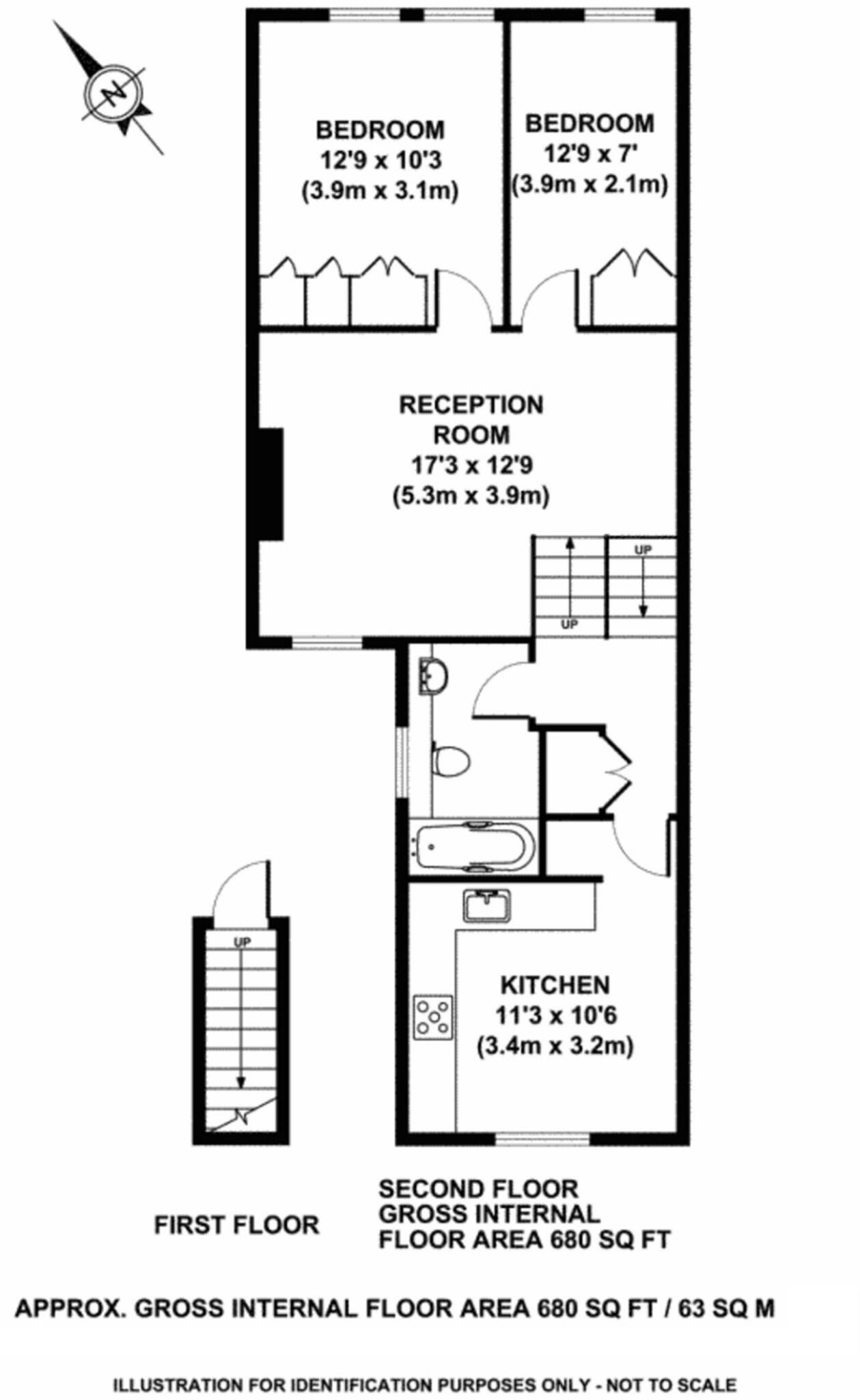
Top-floor, two-bedroom apartment in sought-after Saltram Crescent, Maida Vale, blending Victorian character with contemporary fittings. High ceilings, large windows and oversized doors create a bright, airy interior; the well-equipped eat-in kitchen sits to the rear for quieter living. The primary bedroom includes floor-to-ceiling built-in wardrobes and generous proportions.
Practical features include underfloor heating (gas/water) and a mains gas boiler with radiators. The lease includes the loft demise, presenting a genuine opportunity to extend into habitable accommodation subject to planning — a clear value-add for buyers wanting more space. Total size is c.680 sq ft, an average-sized apartment for the area.
Important considerations: the building is a Victorian property with solid brick walls likely without modern cavity insulation, and the Energy Performance Certificate is rated E. Tenure details list leasehold (documents also reference share of freehold) — buyers should confirm exact ownership structure and remaining lease length. There is one bathroom and top-floor location means stairs; damp or structural issues are not reported but buyers should commission full surveys.
Positioned on a tranquil stucco-fronted crescent with excellent local amenities, fast broadband and good mobile signal, this apartment suits families or professional couples seeking character, light and scope to add value through loft conversion or further refurbishment.
2 bedroom apartment for sale in Maida Vale, 13 Alexandra Court, London, W9 — £749,900 • 2 bed • 1 bath • 950 ft²
1 bedroom apartment for sale in Shirland Road, London, W9 — £445,000 • 1 bed • 1 bath • 550 ft²
2 bedroom apartment for sale in Saltram Crescent, Maida Vale, London. W9 — £625,000 • 2 bed • 1 bath • 635 ft²
2 bedroom apartment for sale in Saltram Crescent, Maida Vale, London, W9 — £475,000 • 2 bed • 1 bath • 631 ft²
5 bedroom terraced house for sale in Saltram Crescent, Maida Vale, W9 — £1,500,000 • 5 bed • 2 bath • 1664 ft²
2 bedroom flat for sale in Elgin Avenue, London, W9 — £750,000 • 2 bed • 1 bath • 739 ft²










































































