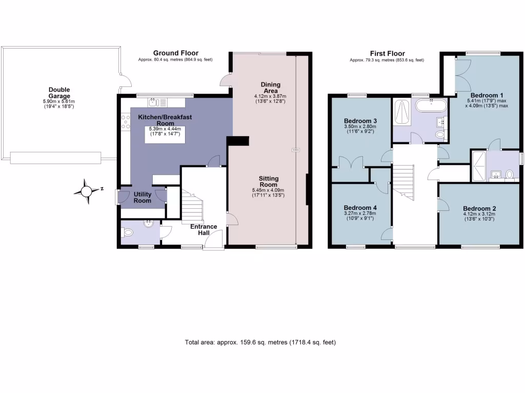
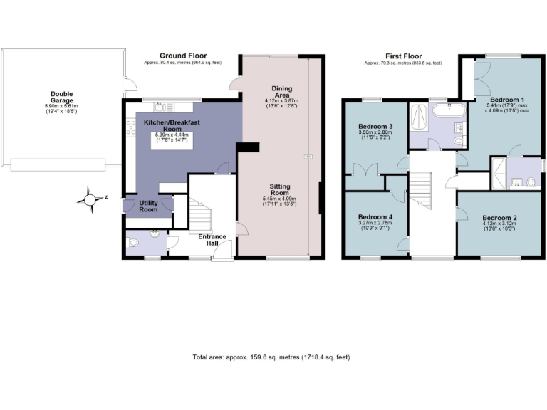
Spacious, energy-efficient four-bedroom detached home with garage and large garden on award-winning development..
- Four double bedrooms including ensuite principal bedroom
- Open-plan living and contemporary kitchen breakfast room
- EPC A with solar panels, EV charging and underfloor heating
- Double garage plus ample off-street parking
- Large private garden and terrace with afternoon sun
- Built 2021; low maintenance new-build construction
- Council tax band described as expensive
- Several nearby primary schools currently rated "Requires Improvement"
This stylish four-bedroom detached home on Edmunds Way offers contemporary, energy-efficient family living close to Exeter city amenities. Built in 2021 to high standards and measuring 1,718 sq ft, the open-plan ground floor and well-proportioned bedrooms provide flexible space for everyday life and entertaining.
Sustainability is a clear strength: EPC A, solar panels, EV charging, and underfloor heating reduce running costs and appeal to eco-conscious buyers. The property sits on a large plot with a lawned garden, terrace, double garage and off-street parking — practical for families and hobbyists alike.
Positioned on the award-winning Heritage Homes development beside Exeter Golf & Country Club, the location balances suburban calm with easy access to the city centre, transport links and outdoor pursuits. Broadband and mobile signal are excellent and local crime levels are very low.
Buyers should note this is a relatively new build on a prestigious development, but council tax is described as expensive. Several nearby primary schools have recent Ofsted ratings of "Requires Improvement," though local secondary options include Good-rated schools. Overall, this is a modern, low-maintenance detached family home with strong sustainability credentials.
 3 bedroom detached house for sale in Exeter, Devon, EX2 — £775,000 • 3 bed • 2 bath • 1657 ft²
 3 bedroom detached house for sale in Exeter, Devon, EX2 — £775,000 • 3 bed • 2 bath • 1657 ft² 4 bedroom detached house for sale in Holland Park, Exeter, EX2 — £895,000 • 4 bed • 3 bath • 1880 ft²
 4 bedroom detached house for sale in Holland Park, Exeter, EX2 — £895,000 • 4 bed • 3 bath • 1880 ft² 4 bedroom detached house for sale in Topsham, Exeter, Devon, EX3 — £850,000 • 4 bed • 1 bath • 1614 ft²
 4 bedroom detached house for sale in Topsham, Exeter, Devon, EX3 — £850,000 • 4 bed • 1 bath • 1614 ft² 5 bedroom detached house for sale in Regency Drive, Exeter, Devon, EX2 — £1,400,000 • 5 bed • 4 bath • 3585 ft²
 5 bedroom detached house for sale in Regency Drive, Exeter, Devon, EX2 — £1,400,000 • 5 bed • 4 bath • 3585 ft² 4 bedroom detached house for sale in Exeter, Devon, EX2 — £850,000 • 4 bed • 2 bath • 1827 ft²
 4 bedroom detached house for sale in Exeter, Devon, EX2 — £850,000 • 4 bed • 2 bath • 1827 ft² 3 bedroom detached house for sale in Exeter, Devon, EX2 — £625,000 • 3 bed • 2 bath • 1405 ft²
 3 bedroom detached house for sale in Exeter, Devon, EX2 — £625,000 • 3 bed • 2 bath • 1405 ft²


























































































