**Standout Features:**
- Modern, newly built apartment block
- Excellent connectivity via A1(M) and A19
- Chain-free, leasehold property
- Ideal for investment with potential immediate rental returns
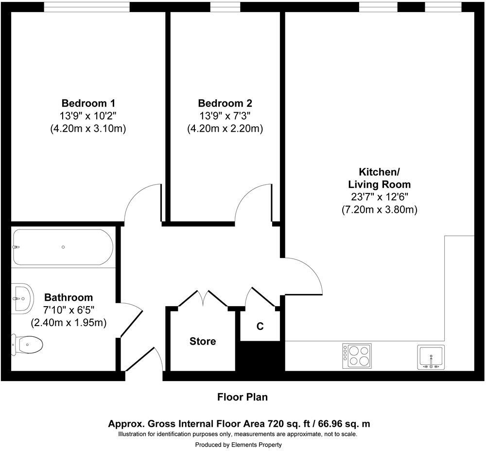
- Average-sized 2-bedroom layout with white goods included
- Low Council Tax and affordable pricing starting at £112,000
**Notable Concerns:**
- Broadband speeds are very slow
- Crime rate is average for the area
**Summary Description:**
Discover an exciting investment opportunity at Parsons House, a contemporary apartment block set in the vibrant area of Washington, NE37 1EY. This stylish new build features modern apartments with sleek white facades, designed for urban living and convenience. Ideal for first-time buyers or savvy investors, the development includes 40 units with 24 already leased for immediate rental income, boasting gross yields around 8%.
Coupled with excellent transport links to major economic hubs, a variety of local amenities, and a selection of schools with good Ofsted ratings nearby, this property represents an attractive option for families or renters alike. The area, undergoing significant regeneration, balances urban convenience with suburban peace, perfect for those who appreciate a dynamic living environment with growth potential. Don’t miss your chance to secure this promising investment—call now for a viewing!
2 bedroom apartment for sale in Parsons Road, Washington, NE37 — £112,000 • 2 bed • 1 bath • 628 ft²
Studio flat for sale in Parsons Road, Washington, NE37 — £80,500 • 1 bed • 1 bath • 481 ft²
1 bedroom flat for sale in Waterloo Walk, ., Washington, Tyne and Wear, NE37 3EL, NE37 — £20,000 • 1 bed • 1 bath • 377 ft²
Studio flat for sale in Kenilworth Court, Washington, NE37 — £36,000 • 1 bed • 1 bath • 668 ft²
2 bedroom property for sale in The Avenue, Washington, Tyne and Wear, NE38 — £120,000 • 2 bed • 1 bath • 681 ft²
2 bedroom flat for sale in Drumaldrace, Blackfell, Washington, Tyne and Wear, NE37 — £78,000 • 2 bed • 1 bath • 410 ft²










































































































































































































































































