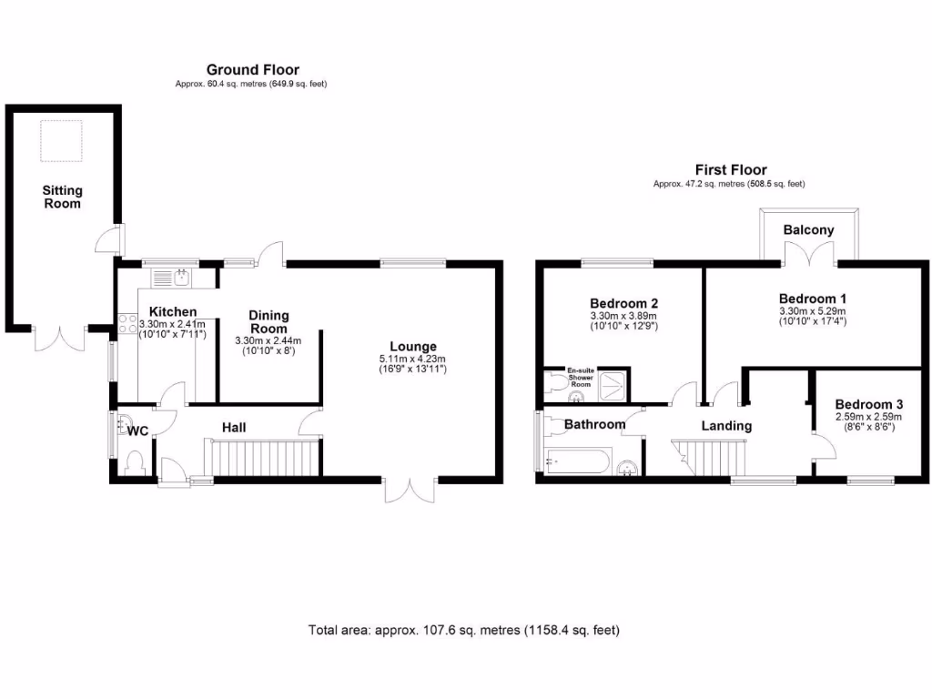
**Standout Features:**
- Three double bedrooms and two bathrooms.
- Three versatile reception rooms including a garage conversion.
- Generous private driveway and potential for additional off-street parking.
- Substantial rear garden with already granted planning permission for a detached two-bedroom property.
- Located in the charming village of St Brides Major, close to the coast and abundant outdoor activities.
**Potential Concerns:**
- Overall size is average; the property may feel snug for larger families.
- Maintenance of the lawn area may require regular upkeep.
Discover the perfect blend of comfort and opportunity in this well-presented three-bedroom detached home, situated in the picturesque village of St Brides Major. The inviting property features spacious living areas, including a cozy lounge and a versatile garage conversion ideal for a home office or guest room. With modern amenities throughout and generous outdoor seating spaces, it is perfect for hosting family gatherings or enjoying peaceful evenings.
The standout feature is the large rear garden, which not only provides ample space for outdoor activities but also comes with granted planning permission to build a detached two-bedroom property—ideal for potential rental income or an investment project. With the coast, charming walking trails, and village amenities just minutes away, this property is a family-friendly haven that combines leisure with opportunity. Don't miss out on this rare find; schedule a viewing and envision the possibilities today!
4 bedroom detached house for sale in Bryncerdd, Ewenny Road, St. Brides Major, The Vale of Glamorgan CF32 0SB, CF32 — £495,000 • 4 bed • 1 bath • 2147 ft²
4 bedroom detached bungalow for sale in St. Brides Major, Vale of Glamorgan, CF32 0SD, CF32 — £469,950 • 4 bed • 3 bath • 1809 ft²
3 bedroom detached house for sale in Lon Yr Eglwys, St. Brides Major, Bridgend, CF32 — £535,000 • 3 bed • 2 bath • 1687 ft²
3 bedroom detached house for sale in Hafod Wen, Heol Sant Bridget, St Brides Major, The Vale of Glamorgan CF32 0SL, CF32 — £465,000 • 3 bed • 2 bath • 1022 ft²
3 bedroom detached house for sale in 26 Lon Yr Eglwys, St. Brides Major, The Vale of Glamorgan CF32 0SH, CF32 — £399,950 • 3 bed • 1 bath • 1307 ft²
4 bedroom detached house for sale in Heol Yr Ysgol, St. Brides Major, Bridgend, CF32 — £425,000 • 4 bed • 1 bath • 1286 ft²










































































































