**Standout Features:**
- Beautifully presented three-bedroom semi-detached bungalow.
- Spacious open-plan lounge/diner, modern fitted kitchen.
- Off-street parking for two cars and low maintenance garden with bar and shed.
- Located within walking distance to the beach in an affluent, low-crime area.
**Potential Downsides:**
- Property condition is not detailed explicitly but appears well-maintained.
- No mention of any recent renovations or issues.
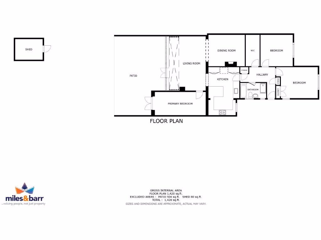
Introducing a charming three-bedroom semi-detached bungalow nestled on the desirable Botany Road, just a short stroll from pristine sandy beaches and essential transport links. This immaculate property features an open-plan lounge and dining area flooded with natural light, along with a stylishly modern kitchen, perfect for both relaxation and entertaining. The generously sized bedrooms promise comfort, while the sleek four-piece bathroom adds a touch of luxury.
Ideal for families or first-time buyers, this home offers off-street parking for two vehicles and a tranquil, low-maintenance rear garden that includes a bar – an entertainer's dream! With local amenities, high-rated schools, and recreational options nearby, this bungalow combines convenience with coastal charm. Don’t miss out on this fantastic opportunity to embrace seaside living; properties like this are rare in such sought-after locations.
3 bedroom detached bungalow for sale in Botany Road, Broadstairs, CT10 3SE, CT10 — £550,000 • 3 bed • 1 bath • 1561 ft²
3 bedroom detached bungalow for sale in Linden Avenue, Broadstairs, CT10 — £445,000 • 3 bed • 1 bath • 1163 ft²
2 bedroom bungalow for sale in Botany Road, Broadstairs, CT10 — £350,000 • 2 bed • 1 bath • 1046 ft²
3 bedroom bungalow for sale in Staplehurst Avenue, Broadstairs, CT10 — £420,000 • 3 bed • 1 bath • 1057 ft²
2 bedroom bungalow for sale in Northwood Road, Broadstairs, Kent, CT10 — £300,000 • 2 bed • 1 bath • 1189 ft²
2 bedroom bungalow for sale in Freda Close, Broadstairs, CT10 — £375,000 • 2 bed • 1 bath • 805 ft²














































































