Roomy family home close to good schools and commuter links with large garden.
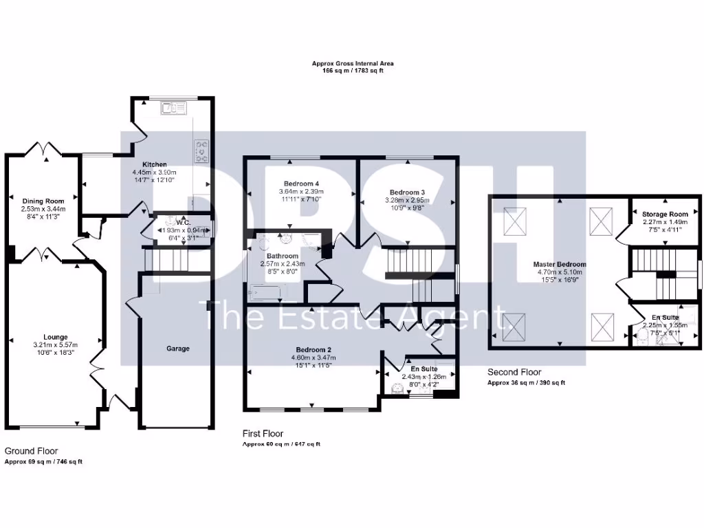
Spacious 4 double bedrooms, including large master with dressing and en‑suite
Over 1,700 sq ft (196 m²) living space across three floors
Large enclosed rear garden and patio for family use
Generous lounge with separate dining room and bright breakfast kitchen
Integral garage plus driveway providing ample off‑street parking
Two en‑suites, family bathroom, guest WC — flexible for busy households
Built post‑2007, double glazed, mains gas central heating, EPC in band C
Council Tax Band E; area records average crime levels
This substantial four-bedroom detached house in Middleton’s New Forest Village delivers flexible family living across three floors. The property offers a large master suite with dressing area and en‑suite, two further en‑suites, a spacious lounge with adjoining dining room, and a generous breakfast kitchen — all set within a large enclosed rear garden and integral garage with driveway parking. A virtual tour is available for an immediate walkthrough.
Designed for family life, the layout provides versatile space for children, homework or home working with multiple reception rooms and a walk-in storage room on the top floor. The home is modern-built (post‑2007), double-glazed and gas‑central heated, benefiting from energy performance in the C band and fast broadband and mobile signal — useful for commuters and remote workers.
Location is a clear strength: walking distance to several well-rated primary and secondary schools, nearby green spaces and easy access to commuter routes (M1, M62, Leeds ring road). The plot feels generous for a suburban detached home, offering a safe, enclosed lawn for children and outdoor entertaining.
Notable practical points: council tax is above average (Band E) and the area records average crime levels. While the house is presented well internally, buyers should confirm any specific finish preferences and check the garage and driveway sizing for their vehicles. Overall, this is a roomy, contemporary family home in an established, family-oriented neighbourhood.
4 bedroom link detached house for sale in The Oaks, Leeds, West Yorkshire, LS10 — £360,000 • 4 bed • 3 bath • 994 ft²
3 bedroom detached house for sale in Ring Road, Middleton, Leeds, LS10 — £325,000 • 3 bed • 1 bath • 1066 ft²
3 bedroom detached house for sale in Hillthorpe Court, Leeds, West Yorkshire, LS10 — £269,950 • 3 bed • 2 bath • 846 ft²
4 bedroom detached house for sale in Ibbetson Oval, Churwell, Leeds, LS27 — £475,000 • 4 bed • 3 bath • 1498 ft²
4 bedroom detached house for sale in Poppleton Road, Tingley, Wakefield, West Yorkshire, WF3 — £385,000 • 4 bed • 2 bath • 1230 ft²
3 bedroom end of terrace house for sale in New Forest Way, Leeds, LS10 — £250,000 • 3 bed • 2 bath • 1227 ft²






































































































