DH1 1LR - 3 bed spacious detached home in City Of Durham, DH1 1LR

View on Property Piper

3 bedroom detached house for sale in Wantage Road, Carrville, DH1

Summary - 72, Wantage Road DH1 1LR

3 bed 1 bath Detached

Chain-free detached house with large wraparound garden and garage — renovation opportunity in Carrville.
Chain-free three-bedroom detached house on corner plot
Set on a large corner plot in sought-after Carrville, this chain-free three-bedroom detached house offers a flexible, spacious layout and substantial outdoor space. The property has scope to be refreshed throughout, making it suitable for growing families or buyers seeking a renovation project with clear value-add potential. A boarded loft and generous storage above the garage add useful capacity for belongings or conversion subject to consent.

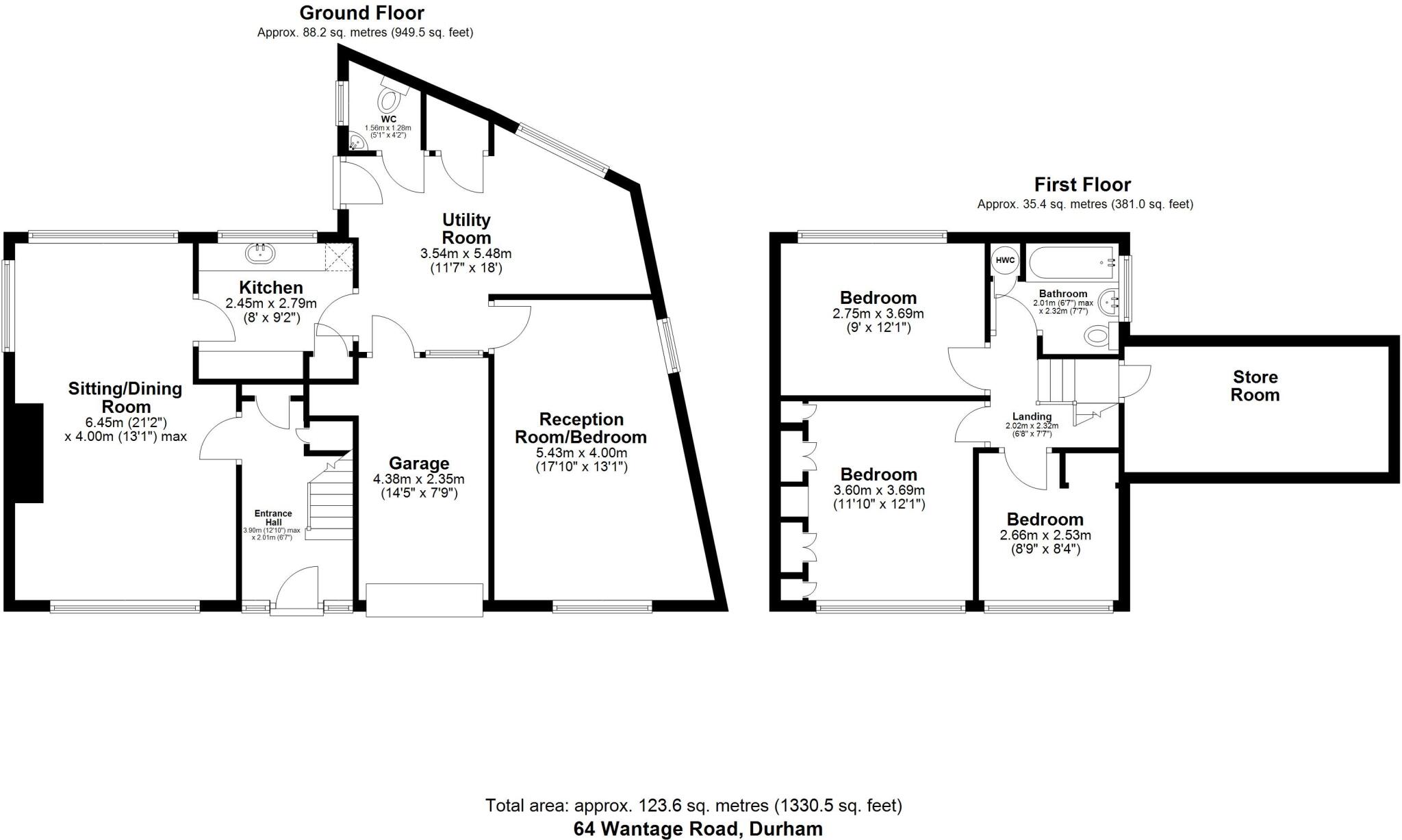
Inside, the ground floor provides an open-plan living and dining area, a separate second reception room (suitable as a family room, study or fourth bedroom), a fitted kitchen with utility space, rear lobby and ground-floor WC. Upstairs are two double bedrooms, a good single bedroom and one family bathroom. The home's layout is adaptable and will reward a buyer willing to update fittings, finishes and systems.

Outside, mature wraparound gardens, lawn, patio areas and fruit trees are a major feature, together with driveway parking for several cars and an attached garage with power and lighting. Practical local advantages include excellent mobile signal, fast broadband, convenient road links and a range of well-rated primary and secondary schools close by.

Notable matters: the property needs renovation and presents dated decor and some retro fixtures throughout. EPC rating D and cavity walls without insulation (assumed) indicate thermal improvements would be beneficial. Tenure is not confirmed in the supplied details. These factors should be considered when budgeting for works and running costs.

Property Details

Image Descriptions

Floorplan Description

Rooms

Textual Property Features

Target Audience

AI Tags

Detected Visual Features

EPC Details

Nearby Schools

Nearest Bars And Restaurants

,,,,}

Nearest General Shops

,,}

Nearest Grocery shops

,,}

Nearest Supermarkets

,,}

Nearest Religious buildings

,,}

Nearest Medical buildings

,,,}

Nearest Leisure Facilities

,,,,}

Nearest Tourist attractions

,,}

Nearest Train stations

,,,,}

Nearest Bus stations and stops

,,,,}

Nearest Hotels

,,}

Tags

Local Market Stats

AirBnB Data

Similar Properties

Meta

High Res Images

Compatible Images

Low res Images

Thumbnails

Raw Images

High Res Floorplan Images

Compatible Floorplan Images

Low res Floorplan Images

FloorplanImages Thumbnail

Raw Floorplan Images