SE16 3UH - 3 bedroom maisonette for sale in Amina Way, Bermondsey, Lon…

View on Property Piper

3 bedroom maisonette for sale in Amina Way, Bermondsey, London, SE16

Summary - 99, Amina Way SE16 3UH

3 bed 1 bath Maisonette

Spacious 3-bed, roof terrace, long lease — ideal for families or investors.
Large reception room with separate dining area
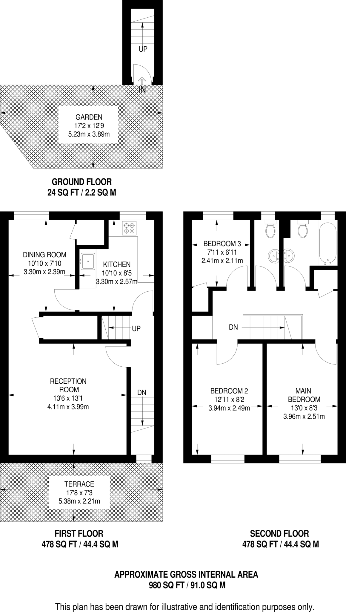
Set across three floors, this 3-bedroom maisonette offers generous living space and a private roof terrace in the heart of Bermondsey. The large reception room and separate kitchen with dedicated dining area create clear living and entertaining zones, while three well-arranged bedrooms suit family life or sharers. At about 980 sq ft, the layout feels spacious for an inner-city home.

Practical details include a long lease (102 years remaining) and a low reported ground rent (£10). The property is served by a community heating scheme and benefits from excellent mobile signal and fast broadband—useful for remote working. Local amenities are strong: nearby Bermondsey Spa Gardens, good primary and secondary schools (including Outstanding-rated options), frequent transport links, and a range of shops and leisure services.

Buyers should note material points that may require attention. The building dates from the late 1960s/early 1970s and is likely system-built with little to no wall insulation; this could mean higher heating costs and further works for energy improvements. The garden/outdoor space is described as unkempt and will need maintenance or refurbishment. There is a single bathroom serving three bedrooms, and the local area records average crime levels and higher area deprivation indices.

This maisonette will suit a family or buyer seeking sizeable accommodation in a well-connected, inner-city location who is happy to carry cosmetic or retrofit improvements. The roof terrace and flexible internal layout provide clear upside for those looking to add value or personalise a city home.

Property Details

Image Descriptions

Floorplan Description

Rooms

Textual Property Features

Target Audience

AI Tags

Detected Visual Features

EPC Details

Nearby Schools

Nearest Bars And Restaurants

,,,,}

Nearest General Shops

,,}

Nearest Grocery shops

,,}

Nearest Supermarkets

,,}

Nearest Religious buildings

,,}

Nearest Medical buildings

,,,}

Nearest Airports

,,}

Nearest Leisure Facilities

,,,,}

Nearest Tourist attractions

,,}

Nearest Train stations

,,,,}

Nearest Bus stations and stops

,,,,}

Nearest Hotels

,,}

Tags

Local Market Stats

AirBnB Data

Similar Properties

Meta

High Res Images

Compatible Images

Low res Images

Thumbnails

Raw Images

High Res Floorplan Images

Compatible Floorplan Images

Low res Floorplan Images

FloorplanImages Thumbnail

Raw Floorplan Images