PO22 0EL - 2 bedroom terraced house for sale in Elm Grove South, Barnh…

View on Property Piper

2 bedroom terraced house for sale in Elm Grove South, Barnham, West Sussex, PO22

Summary - 28 ELM GROVE SOUTH BARNHAM BOGNOR REGIS PO22 0EL

2 bed 1 bath Terraced

Bright two-bedroom terrace with conservatory and garage, ideal for first-time buyers or investors.
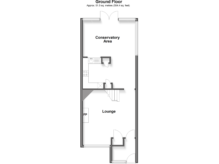
Freehold two-bedroom end-terrace, approx. 739 sq ft
This two-bedroom end-terrace in central Barnham offers a practical starter home or buy-to-let in a well-connected location. The house feels bright and spacious with a generous lounge, modern kitchen and a conservatory that overlooks a private, low-maintenance rear garden with decking. A nearby single garage in an en-bloc compound adds secure parking and storage.

Built in the 1970s and benefitting from double glazing and mains gas central heating, the property is presented for immediate occupation but shows signs of mid-century fittings in places and would reward modest updating. The walls are cavity construction with assumed lack of insulation, so buyers should consider potential energy-efficiency improvements. Room sizes are comfortable for the footprint (approximately 739 sq ft) and the layout will suit first-time buyers, downsizers and investors.

Practical considerations are clear: the plot is small, and the garage is not on-plot. The area records higher-than-average crime and is classified locally as ageing rural, so buyers should factor local community and security into their decision. Flood risk is low and the property is freehold with affordable council tax.

Overall this house offers commuter convenience, straightforward living space and clear potential to add value through targeted refurbishment and insulation works. Viewing is recommended for those seeking a tidy, well-located home with scope to personalise.

Property Details

Image Descriptions

Floorplan Description

Rooms

Textual Property Features

Target Audience

AI Tags

Detected Visual Features

EPC Details

Nearby Schools

Nearest Bars And Restaurants

,,,,}

Nearest General Shops

,,}

Nearest Grocery shops

,,}

Nearest Supermarkets

,,}

Nearest Religious buildings

,,}

Nearest Medical buildings

,,,}

Nearest Leisure Facilities

,,,,}

Nearest Tourist attractions

,,}

Nearest Train stations

,,,,}

Nearest Bus stations and stops

,,,,}

Nearest Hotels

,,}

Tags

Local Market Stats

AirBnB Data

Similar Properties

Meta

High Res Images

Compatible Images

Low res Images

Thumbnails

Raw Images

High Res Floorplan Images

Compatible Floorplan Images

Low res Floorplan Images

FloorplanImages Thumbnail

Raw Floorplan Images