Single‑storey living with driveway, garage and a generous rear garden — chain free..
Semi‑detached bungalow with two generous bedrooms
Recently installed modern kitchen; comfortable lounge space
Driveway parking plus single garage for storage/parking
Generous rear garden; fenced and mainly lawned
Single shower room only; no full bathroom
Modest room sizes — efficient but not large proportions
Freehold, vacant possession and no onward chain
EPC rating C; low flood risk, fast broadband
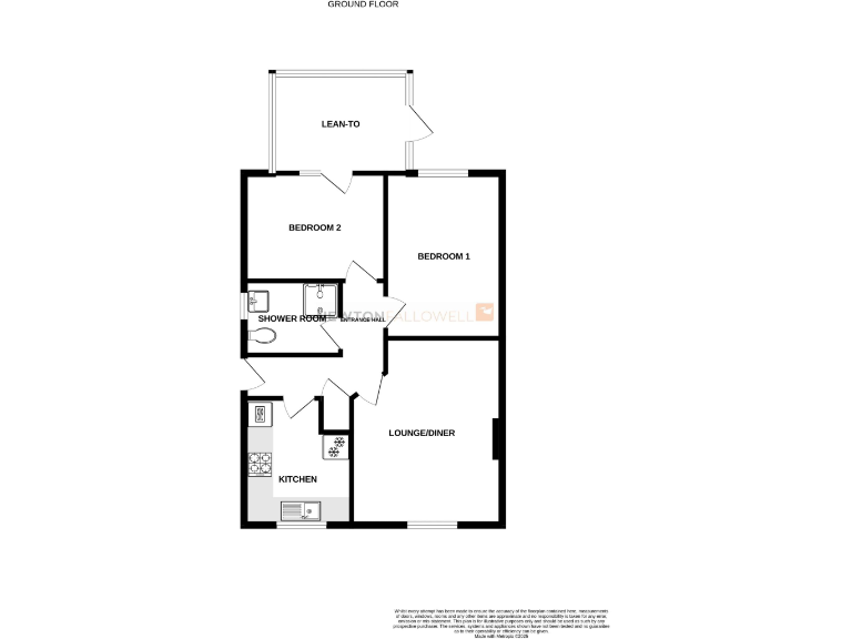
Set on a popular residential street to the west of Grantham town centre, this semi‑detached bungalow offers single‑storey living with practical parking and outside space. The recently fitted kitchen and spacious lounge create comfortable day‑to‑day living, while two generous bedrooms suit a couple or downsizer wanting simple, level accommodation.
The property is freehold and offered with no onward chain, vacant possession and a C EPC rating. Driveway parking and a single garage give secure vehicle storage and useful extra storage; the rear garden is a good size, mostly lawned and fenced for privacy.
Layout is traditional and efficient, with an entrance hall, living room, kitchen, two bedrooms and a shower room. Room sizes are sensible rather than expansive and there is a lean‑to providing sheltered space or storage. Buyers should note the property is presented in good order but has modest room proportions and a single shower room only.
This home suits buyers seeking easy single‑level living — downsizers, small families or those relocating closer to Grantham town. Low flood risk, fast broadband and excellent mobile signal add practical appeal, while nearby schools and local amenities keep daily journeys straightforward.
2 bedroom detached bungalow for sale in Stephenson Avenue, Gonerby Hill Foot, Grantham, NG31 — £250,000 • 2 bed • 1 bath • 668 ft²
2 bedroom bungalow for sale in Saltersford Road, Grantham, NG31 — £280,000 • 2 bed • 1 bath
2 bedroom semi-detached bungalow for sale in Maltings Lane, Gonerby Hill Foot, Grantham, NG31 — £260,000 • 2 bed • 1 bath • 732 ft²
2 bedroom detached bungalow for sale in St Albans Close, Grantham, NG31 — £250,000 • 2 bed • 2 bath • 668 ft²
2 bedroom detached bungalow for sale in Hawksdale Close, Grantham, NG31 — £280,000 • 2 bed • 1 bath • 1154 ft²
2 bedroom semi-detached bungalow for sale in Harrowby Lane, Grantham, NG31 — £192,500 • 2 bed • 1 bath • 469 ft²


































































