Charming one-bed cottage with woodland garden and proven holiday-let potential..
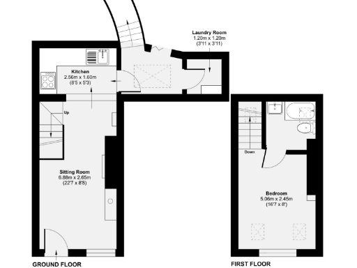
- Characterful one-bedroom cottage with vaulted bedroom and en suite
- Open-plan living with cosy fireplace and compact kitchen
- Private courtyard with laundry/store; elevated woodland garden with valley views
- Proven holiday-let with income and lifestyle appeal
- Small overall size (approx. 377 sq ft) suited to single or couple
- High flood risk for the property and surroundings
- Likely no wall insulation; built before 1900 in granite stone
- Main heating by wood logs and room heaters; double glazing unknown age
Tucked on the edge of Dulverton, this characterful one-bedroom cottage is small but striking. The open-plan living room centres on a cosy fireplace and bold, creative interiors; a compact kitchen leads to a private courtyard with laundry/store. Upstairs, a vaulted double bedroom with four skylights and an en suite feels light and surprisingly spacious for the footprint.
A true highlight is the elevated woodland garden reached by steep stone steps. It delivers framed valley views and quiet seating spots — ideal for a studio, home office, or simple retreat (any new structure would need usual consents). The property has an established holiday-let record, making it attractive as an income-producing bolt-hole or weekend escape.
Important practical points: the cottage is small (c.377 sq ft), sits within Exmoor National Park, and was built before 1900 in traditional granite stone with assumed no insulation. Main heating is by room heaters and a wood-burner; glazing is double but install date is unknown. There is a high flood risk for this location. Tenure is not stated. The surrounding area records above-average crime and relative deprivation, and local primary schools are mixed in Ofsted outcomes.
This home suits someone seeking character, countryside lifestyle and proven holiday-let potential rather than a large family residence. Buyers should be prepared for basic heating, potential energy-efficiency improvements, and flood-risk considerations when budgeting next steps.
3 bedroom terraced house for sale in Town Marsh, Dulverton, TA22 — £320,000 • 3 bed • 1 bath • 1015 ft²
2 bedroom terraced house for sale in High Street, Dulverton, Somerset, TA22 — £375,000 • 2 bed • 1 bath • 720 ft²
3 bedroom terraced house for sale in Cutcombe, Minehead, Somerset, TA24 — £285,000 • 3 bed • 1 bath
2 bedroom terraced house for sale in Church Lane, Dulverton, TA22 — £255,000 • 2 bed • 1 bath • 872 ft²
3 bedroom end of terrace house for sale in Chapel Street, Dulverton, Somerset, TA22 — £370,000 • 3 bed • 1 bath • 1180 ft²
2 bedroom semi-detached house for sale in Exebridge, Dulverton, TA22 — £335,000 • 2 bed • 1 bath • 677 ft²


























































