Quiet cul‑de‑sac location with garage and easy commuter access.
Three double bedrooms, one with en‑suite shower room
Large conservatory extending the living space
Garage plus allocated parking space with gated rear access
Small, low‑maintenance rear garden and front courtyard
Double glazing and gas central heating throughout (pre‑2002 glazing)
Built early 1990s; mid‑terrace townhouse with average overall size
Conservatory has polycarbonate roof (lower insulation than glass)
Freehold tenure; council tax described as affordable
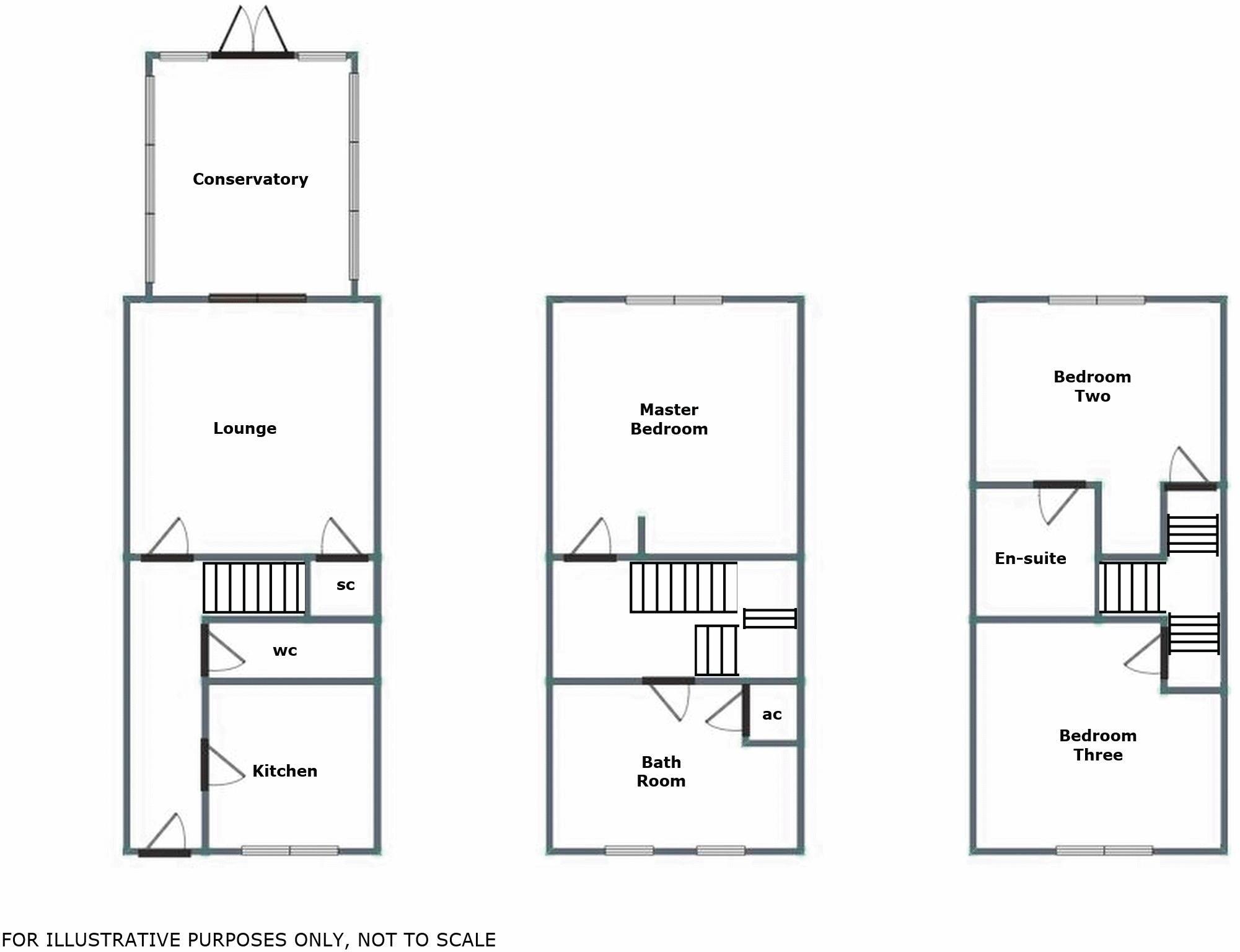
This three-storey, three-bedroom town house on Gullick Way offers practical family living across three floors. The layout includes a modern fitted kitchen, a rear lounge opening into a large conservatory and a principal bedroom plus two further double bedrooms (one with en‑suite), giving flexible sleeping and living space for children or home working.
Externally the property benefits from a small, low‑maintenance front courtyard, a charming rear garden with patio and gated access to a rear parking area with a garage and an allocated parking space. The location sits in comfortable suburbia with good local shops, several primary schools rated Good, nearby leisure facilities and straightforward commuter links to the motorway network.
Notable practical points: the conservatory has a polycarbonate roof (less insulating than glass), the glazing was installed before 2002 so window frames may be older, and the rear plot is modest in size. Overall the house presents as a well‑proportioned family home in a quiet cul‑de‑sac with established heating (gas boiler and radiators) and double glazing already in place.
3 bedroom town house for sale in Richardson Way, Rugeley, WS15 — £240,000 • 3 bed • 2 bath • 756 ft²
3 bedroom town house for sale in Colliers Way, Huntington, Cannock, WS12 — £259,950 • 3 bed • 2 bath • 813 ft²
3 bedroom town house for sale in Windrush Close, Pelsall, Walsall, WS3 — £240,000 • 3 bed • 2 bath • 1186 ft²
3 bedroom semi-detached house for sale in Cannock Road, Chadsmoor, Cannock, Staffordshire, WS11 — £248,500 • 3 bed • 2 bath • 1023 ft²
3 bedroom terraced house for sale in St. Johns Close, Burntwood, WS7 1QD, WS7 — £250,000 • 3 bed • 2 bath
3 bedroom terraced house for sale in Meadow Croft, Huntington, Cannock, WS12 — £180,000 • 3 bed • 1 bath


































































































