Chain-free family home with garden and strong school options nearby.
- Freehold, chain-free three-bedroom Victorian terrace
- Two reception rooms and two shower rooms for flexibility
- Kitchen opens to a well-maintained rear garden
- About 1,119 sq ft; rooms generally small to medium
- Very low flood risk; excellent mobile and fast broadband
- Served by several good and Outstanding nearby schools
- Small plot size; not suited for large outdoor projects
- Local crime and deprivation levels are average
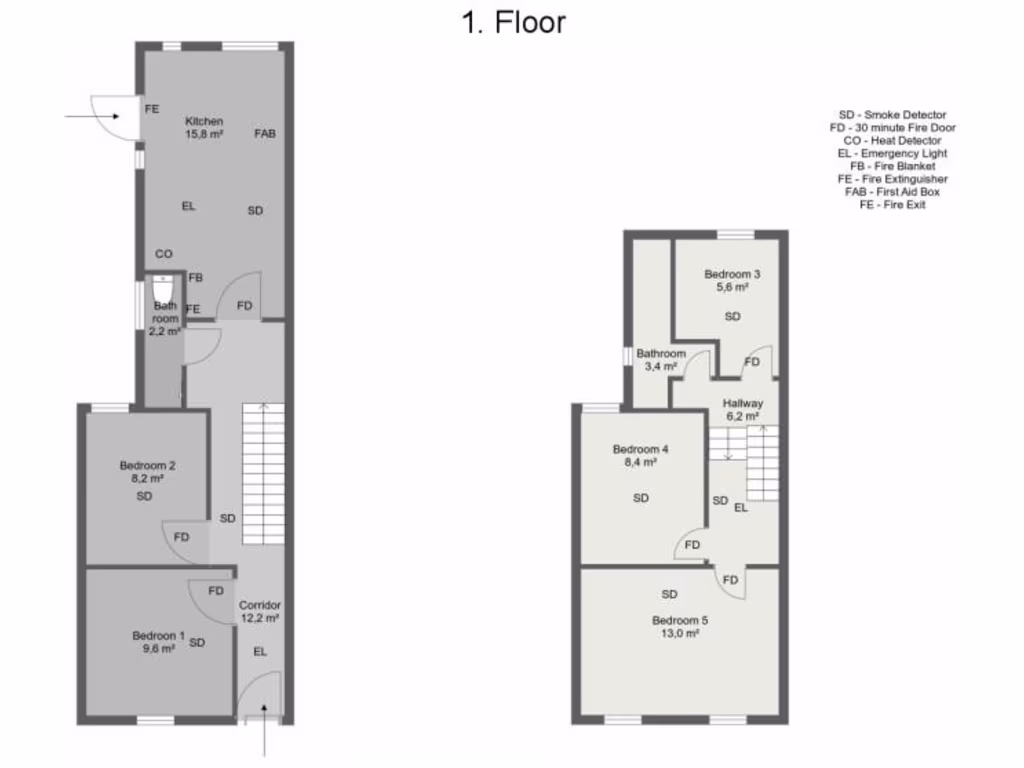
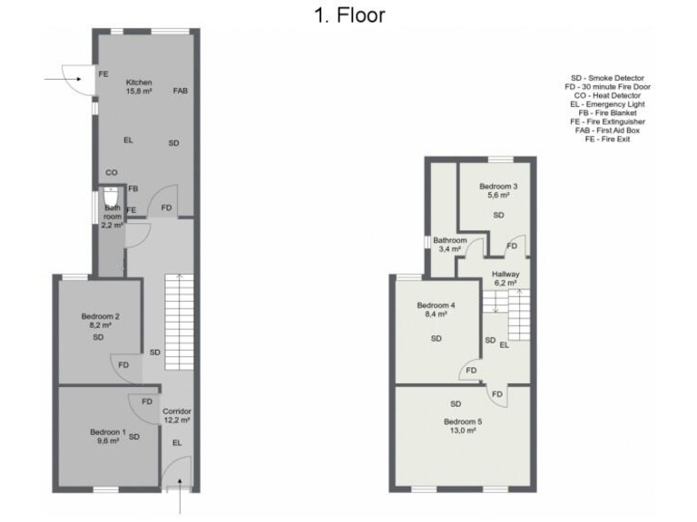
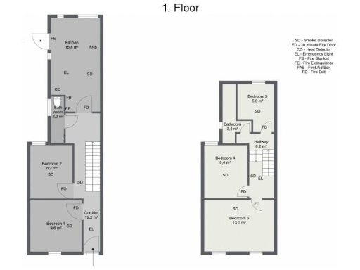
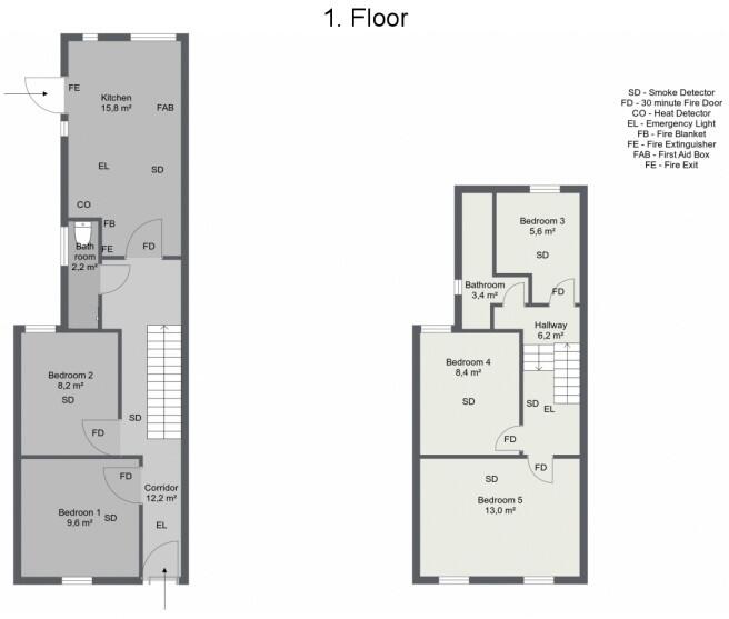
A well-located Victorian terraced home on Lynton Road offering three double bedrooms, two reception rooms and two shower rooms across about 1,119 sq ft. The freehold, chain-free sale makes this a straightforward purchase for a family seeking space and convenience in Bermondsey.
The house presents flexible living: two reception rooms currently used as bedrooms, a bright kitchen that opens onto a well-maintained rear garden, and a ground-floor shower room for everyday convenience. Room sizes are generally small to medium, so the layout suits a young family or buyers wanting practical, city-centre living rather than expansive interiors.
Practical strengths include very low flood risk, fast broadband and excellent mobile signal, plus strong nearby schools (including two Outstanding-rated primaries). The property has a history as a rental investment, underlining its demand and lettability in this inner-city location.
Buyers should note the plot is small and the house is average-sized for the area; rooms are not large. Local crime and area deprivation are both average, reflecting typical inner-city living. Overall, this is a comfortable, characterful home with clear scope for personalisation and steady long-term appeal in a well-connected part of SE1.
3 bedroom terraced house for sale in Lynton Road, London, SE1 — £1,100,000 • 3 bed • 1 bath • 1310 ft²
3 bedroom end of terrace house for sale in Lynton Road, Bermondsey, SE1 — £750,000 • 3 bed • 2 bath • 1027 ft²
3 bedroom terraced house for sale in Longley Street, Bermondsey, London, SE1 — £935,000 • 3 bed • 1 bath • 1065 ft²
3 bedroom house for sale in Wrigglesworth Street, London, SE14 — £925,000 • 3 bed • 1 bath • 1302 ft²
3 bedroom terraced house for sale in Fort Road, Bermondsey, SE1 — £850,000 • 3 bed • 1 bath • 1245 ft²
3 bedroom end of terrace house for sale in Lynton Road, Bermondsey, SE1 — £750,000 • 3 bed • 2 bath • 1027 ft²






































