**Standout Features:**
- Stunning sea views from both the lodge and private deck
- Spacious open-plan living area with triple aspect windows
- Two comfortable bedrooms, including a master suite with en-suite WC
- Access to on-site facilities: café, gym, outdoor swimming pool, and children's park
- Off-street parking with EV charging available
**Potential Concerns:**
- Leasehold tenure
- Above-average service charge of £5,660
- Slow broadband speed
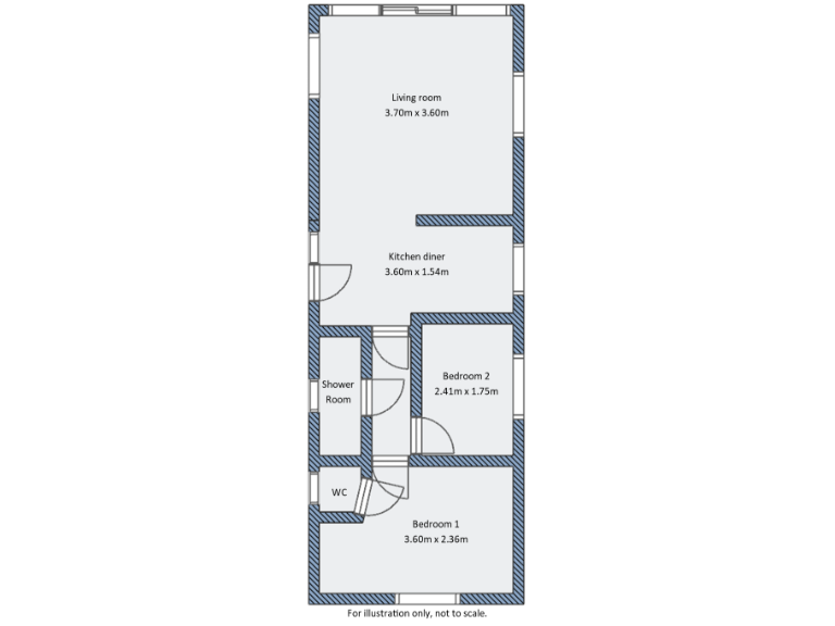
Embrace coastal living in this charming two-bedroom lodge located in the sought-after Sea View holiday park of Boswinger. Priced affordably at £45,000, this modern retreat boasts breathtaking sea and country views from its south-facing private deck—perfect for relaxation or entertaining guests. The open-plan living area is bathed in natural light, featuring a well-equipped kitchen, comfortable dining, and a cozy lounge that leads directly to the deck, offering an inviting space to unwind.
The lodge accommodates four guests comfortably, with a spacious master suite and a versatile twin bedroom, both benefiting from well-finished interiors, including a modern shower room. Within the park, you'll find fantastic facilities such as a heated outdoor pool, sports areas, and a dedicated BBQ spot, all easily accessible for family fun or social gatherings. Located just a mile away from the beautiful Hemmick Beach and the stunning Cornish coastal path, this retreat is perfect for families, investors, or those seeking a serene getaway—don't miss the opportunity to make this unique seaside lodge your own!
3 bedroom lodge for sale in Bay view, Sea View, Boswinger, Cornwall, PL26 — £265,000 • 3 bed • 2 bath • 687 ft²
2 bedroom lodge for sale in Seaview Gorran Haven Holiday Park, Boswinger, PL26 6LL, PL26 — £64,995 • 2 bed • 1 bath
2 bedroom lodge for sale in Sealawns 31, Seaview Gorran Haven, PL26 6LL, PL26 — £93,995 • 2 bed • 1 bath
2 bedroom lodge for sale in Seaview Holiday Park, Boswinger, PL26 — £140,000 • 2 bed • 2 bath • 618 ft²
3 bedroom lodge for sale in Boswinger, near Hemmick Beach, PL26 — £160,000 • 3 bed • 2 bath • 804 ft²
3 bedroom lodge for sale in Sealawns 40, Seaview Gorran Haven, PL26 6LL, PL26 — £69,000 • 3 bed • 2 bath


















































































































