IP30 0JE - 3 bedroom chalet for sale in Cockfield, Bury St. Edmunds, I…

View on Property Piper

3 bedroom chalet for sale in Cockfield, Bury St. Edmunds, IP30

Summary - Phoenix Farm,Bullswood Lane,COCKFIELD,IP30 0JE IP30 0JE

3 bed 1 bath Chalet

**Standout Features:**
- **Spacious Property:** Approximately 1.8 acres with 3 bedrooms (2 upstairs, 1 ground floor).
- **Versatile Layout:** Ideal for family living, work-from-home, or guest accommodations.
- **Heated Swimming Pool:** Perfect for inviting family and friends during warm days.
- **Expansion Potential:** Annex potential subject to planning (STP) and commercial outbuilding registered for flexible use.
- **Serene Location:** Set in a quiet village surrounded by picturesque countryside, yet excellent transport links to Bury St Edmunds, Sudbury & Lavenham.
- **Environmental Features:** Equipped with solar panels for energy efficiency.

**Summary:**
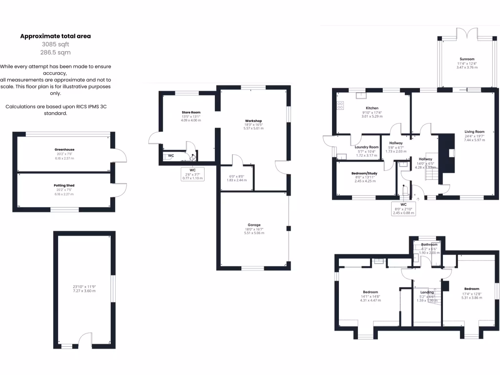
Discover Phoenix Farm, a rare opportunity nestled in the tranquil village of Cockfield, where rural charm meets modern functionality. This expansive estate offers a versatile layout across a generous 3,085 sqft, featuring three bedrooms—making it perfect for families or those needing space for guests or home offices. The heart of the home centers around a bright living room with a cozy wood burner, flowing into a charming sunroom and an inviting kitchen, designed for both entertaining and everyday living.

Step outside to enjoy the sprawling grounds, home to a heated swimming pool and several outbuildings offering potential for personal or commercial use. The property delivers not just on outdoor amenities but also boasts impressive privacy and security, backed by lovely countryside views. With excellent local amenities and schools nearby, this property combines exclusivity and comfort. Don’t miss your chance to explore Phoenix Farm at the open day on August 16th—this unique gem is not expected to last long in today’s market!

Property Details

Brochure Descriptions

Image Descriptions

Floorplan Description

Rooms

Textual Property Features

Detected Visual Features

Nearby Schools

Nearest Bars And Restaurants

,,,,}

Nearest General Shops

,,}

Nearest Grocery shops

,,}

Nearest Supermarkets

,,}

Nearest Religious buildings

,,}

Nearest Medical buildings

,,,}

Nearest Leisure Facilities

,,,,}

Nearest Tourist attractions

,,}

Nearest Train stations

,,,,}

Nearest Bus stations and stops

,,,,}

Nearest Hotels

,,}

Tags

Local Market Stats

Similar Properties

Meta

High Res Images

Compatible Images

Low res Images

Thumbnails

Raw Images

High Res Floorplan Images

Compatible Floorplan Images

Low res Floorplan Images

FloorplanImages Thumbnail

Raw Floorplan Images