Rare private country home with paddock and panoramic rural outlooks.
Panoramic open countryside views from garden room and many windows
Separate fenced paddock approx. one acre with water trough for grazing
Large wrap-around gardens, pond, patio and mature planting
Double garage and ample driveway parking; potential conversion subject to consent
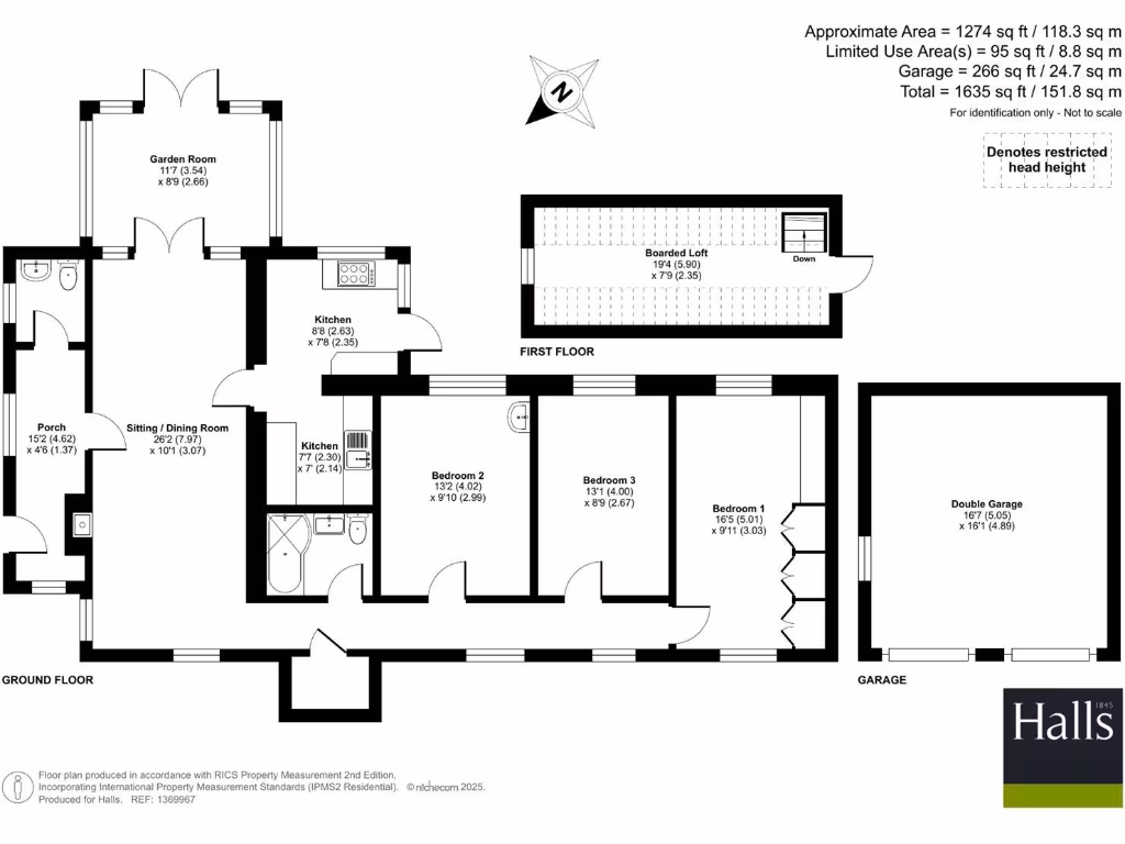
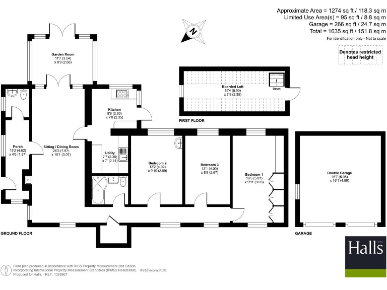
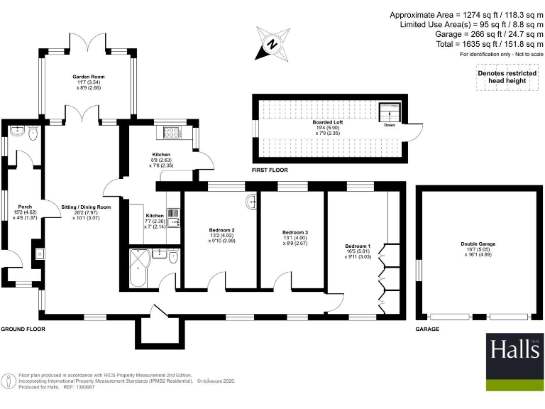
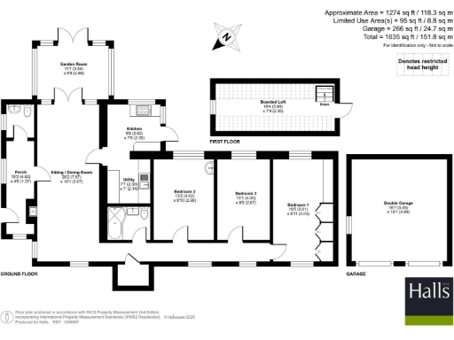
Three double bedrooms plus boarded loft room offering extra space
Requires renovation and modernisation throughout; scope for reconfiguration
Private drainage (septic tank) — maintenance and replacement possible expense
Very slow broadband and average mobile signal in this rural location
Croft Cottage is a rare detached country bungalow set in an elevated, highly private position overlooking open farmland. The house offers generous, flexible ground-floor living with a large sitting/dining room, a light-filled garden room framing panoramic countryside views, three double bedrooms and a useful boarded loft room. The large wrap-around gardens, pond, paved patio and long private drive deliver true rural living, with a separate fenced paddock of approximately one acre ideal for grazing or hobby farming.
The property has considerable scope for modernisation and reconfiguration; well-positioned features such as the double garage and boarded loft offer conversion potential (subject to consent). Practical updates are needed throughout — the cottage currently requires renovation — but benefits already in place include double glazing, air-source heat pump with radiators, mains electricity and a substantial driveway with extensive parking.
Buyers should note material practicalities: the property is served by private drainage (septic tank), broadband speeds are very slow and mobile signal is average. These factors, together with the need for refurbishment, are important when planning upgrades. Offered freehold and chain free, this is a strong opportunity for those seeking a character rural home with land, or buyers wanting a smallholding or equestrian base within easy reach of Oswestry and local amenities.
5 bedroom detached house for sale in Maesbrook, Oswestry., SY10 — £599,950 • 5 bed • 4 bath • 3193 ft²
3 bedroom cottage for sale in Valeswood, Little Ness, Shrewsbury, SY4 — £495,000 • 3 bed • 3 bath • 1400 ft²
5 bedroom link detached house for sale in Pentre, St Martins, SY11 3EA., SY11 — £595,000 • 5 bed • 2 bath • 2623 ft²
3 bedroom house for sale in Ifton Heath, St. Martins, SY11 3DH., SY11 — £359,950 • 3 bed • 1 bath • 1978 ft²
2 bedroom cottage for sale in Selattyn, SY10 — £249,950 • 2 bed • 1 bath • 606 ft²
5 bedroom detached house for sale in Hengoed, Oswestry, Shropshire, SY10 — £389,000 • 5 bed • 2 bath • 1883 ft²














































































































