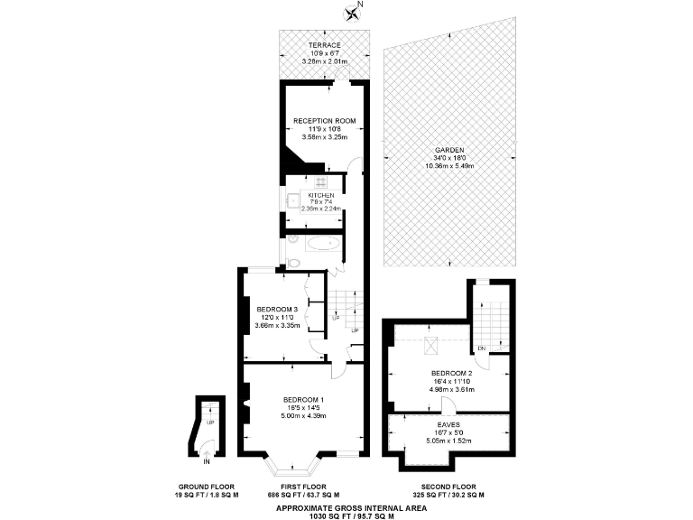
Two-flat layout with garden and scope to extend ideal for growing households.
Freehold semi-detached Victorian house, 1,535 sqft across two flats
Five bedrooms arranged as 2-bed ground flat and 3-bed upper split-level
Decent rear garden; direct access from ground-floor flat
Excellent broadband: FTTP and Virgin Media available
Close to East Dulwich station, buses, parks and Lordship Lane amenities
Scope to extend and convert subject to planning permissions
Solid brick walls likely without cavity insulation; energy performance moderate
Double glazing installed before 2002; EPC around C/D
This freehold semi-detached house on Upland Road offers flexible living across 1,535 sqft, currently arranged as two well-presented flats — a ground-floor two-bedroom with garden access and a three-bedroom split-level upper flat. The property sits in a sought-after SE22 neighbourhood with excellent transport links: East Dulwich station and several Overground options nearby, plus frequent buses to central London.
Families will value proximity to highly regarded schools, parks including Peckham Rye and Dulwich Park, and the independent shops, cafés and restaurants along Lordship Lane. The house benefits from mains gas heating, double glazing (installed before 2002), FTTP full-fibre broadband and a decent rear garden — practical everyday features for modern family life.
There is scope to extend and remodel (subject to planning), offering potential to reintegrate the two flats into a single family home or to create added value. Buyers should note the property’s older construction: solid brick walls likely lack modern cavity insulation and the glazing and EPC indicate moderate energy efficiency (EPC C/D). The layout currently provides two bathrooms for five bedrooms.
Overall, Upland Road presents a rare freehold opportunity in East Dulwich for purchasers seeking location, schooling and flexible accommodation. Immediate occupation as separate flats or a renovation project to create a larger family house make this suitable for owner-occupiers or investors comfortable with modest retrofit works.
2 bedroom apartment for sale in Upland Road, East Dulwich, London, SE22 — £550,000 • 2 bed • 1 bath • 734 ft²
4 bedroom terraced house for sale in Upland Road, London, SE22 — £1,650,000 • 4 bed • 3 bath • 2019 ft²
4 bedroom end of terrace house for sale in Upland Road, London, East Dulwich, SE22 — £1,300,000 • 4 bed • 1 bath • 1479 ft²
2 bedroom flat for sale in Upland Road, London, SE22 — £625,000 • 2 bed • 2 bath • 754 ft²
5 bedroom semi-detached house for sale in Underhill Road, London, SE22 — £1,950,000 • 5 bed • 3 bath • 2262 ft²
5 bedroom house for sale in Crystal Palace Road, East Dulwich, SE22 — £1,475,000 • 5 bed • 2 bath • 1580 ft²














































































