Chain-free city pad with concierge and strong transport links.
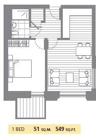
549 sq ft modern one-bedroom apartment with private balcony
This second-floor one-bedroom apartment in Thanet Tower offers 549 sq ft of bright, modern living with a private balcony and floor-to-ceiling windows. The open-plan living and kitchen area feels contemporary and airy, finished to a high standard and suited to single professionals or couples seeking a low-maintenance city base.
Residents benefit from on-site concierge, a landscaped podium courtyard and a communal roof terrace — useful extras for socialising and secure parcel deliveries. Excellent transport links from nearby Canning Town (DLR and Jubilee Line) put Canary Wharf and central London within easy reach, supporting strong rental demand and commuter convenience.
Important practical details: the property is leasehold and sold chain free. Annual service charge is approximately £2,544 and ground rent about £400; heating is provided via a community scheme. The local area scores as deprived overall, which may affect resale and long-term amenity levels despite nearby improvements.
Overall this apartment suits a first-time buyer or investor seeking a turn-key, well-connected home with immediate rental potential. Buyers should budget for the ongoing service charge, ground rent and the limitations that come with community heating and leasehold ownership.
1 bedroom apartment for sale in Bramwell Way, London, E16 — £350,000 • 1 bed • 1 bath • 458 ft²
1 bedroom apartment for sale in Centurion Tower, 5 Caxton Street North, London, E16 — £365,000 • 1 bed • 1 bath • 545 ft²
1 bedroom apartment for sale in Hoola East Tower, 5 Tidal Basin Road, Canary Wharf, London, E16 — £395,000 • 1 bed • 1 bath • 594 ft²
1 bedroom flat for sale in Katie Court, E16, Docklands, London, E16 — £300,000 • 1 bed • 1 bath • 493 ft²
1 bedroom apartment for sale in Centurion Tower, 5 Caxton Street North, London, E16 — £375,000 • 1 bed • 1 bath • 545 ft²
1 bedroom flat for sale in Caxton Street North, Canning Tower, London, E16 — £350,000 • 1 bed • 1 bath • 607 ft²


































